Социальное жилье в бывшем комплексе инженерной школы Télécom Paris. Здание A
Фото © Antoine Mercusot
Социальное жилье в бывшем комплексе инженерной школы Télécom Paris. Здание A
Фото © Antoine Mercusot
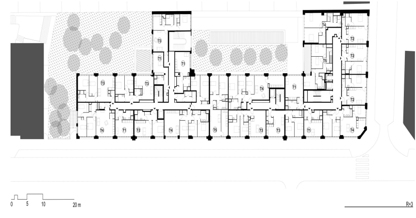
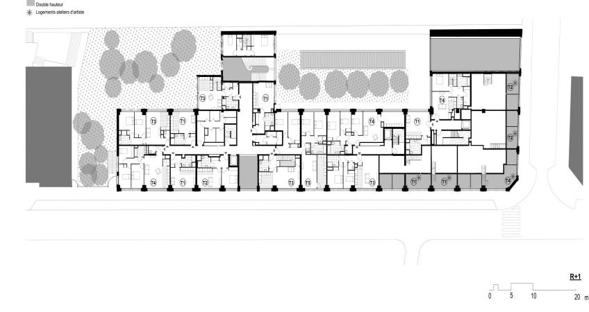
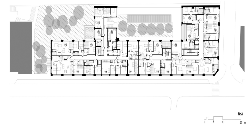
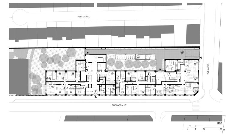
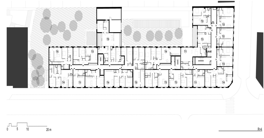
Корпус А был изначально возведен самой инженерной школой как студенческое общежитие в 1960-х, а затем использовался для размещения ее администрации, учебных мастерских и лабораторий. Его стиль был для своего времени несколько старомодным, напоминая о первых послевоенных годах, но Philéas Architecture считают здание очень элегантным и постарались сохранить его исторический облик. Изначальная функция общежития сделала реконструкцию сравнительно легкой задачей. Кроме обычных квартир, в цоколе устроены двухъярусные жилища, выходящие в сад во внутреннем дворе. Всего здесь 22 «промежуточные» квартиры (рассчитанные на семьи с невысоким достатком, но более состоятельные, чем кандидаты на получение социального жилья; речь идет об арендной плате на 15–20% ниже рыночной).
Социальное жилье в бывшем комплексе инженерной школы Télécom Paris. Здание C
Фото © Antoine Mercusot
Социальное жилье в бывшем комплексе инженерной школы Télécom Paris. Здание C
Фото © Antoine Mercusot
Социальное жилье в бывшем комплексе инженерной школы Télécom Paris. Здание C
Фото © Antoine Mercusot
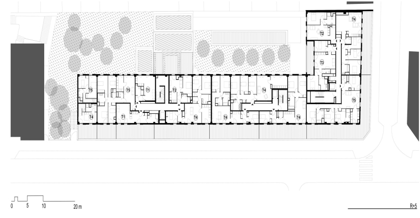
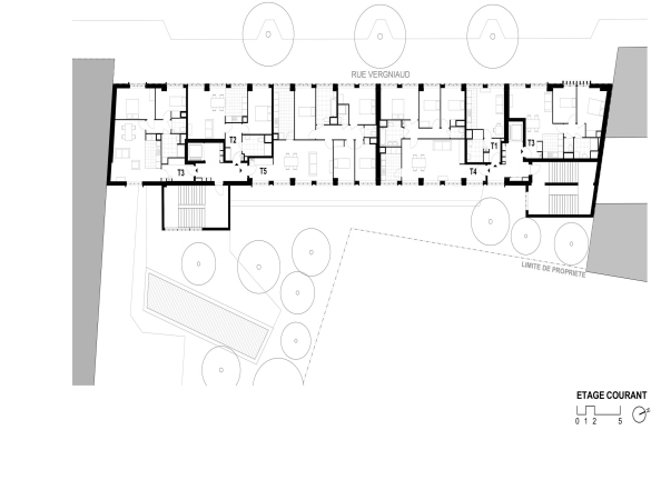
Корпус С, тоже довольно старомодный для своего времени, возвели в начале 1920-х как текстильную перчаточную фабрику фирмы Neyret, а в 1934 он вместил учебные помещения инженерной школы. Несколько перестроек, а также добавленный в 1970-х сверху этаж для студенческой столовой значительно исказили изначальный облик в духе ар нуво. Но высокие потолки позволили устроить здесь практически уникальные по своим качествам квартиры с огромными окнами, а на первом этаже – 10 «социальных» художественных мастерских. Надстройку со столовой заменили на жилой этаж; он напоминает о предшественнице, но выглядит гораздо благороднее благодаря фасадам из эмалита (прежние было необходимым заменить из-за содержания асбеста). Всего здесь расположено 95 социальных квартир, включая 10 мастерских, и 3 «промежуточные».
На кровле корпуса А создан сад для поддержания биоразнообразия (входа жителям туда нет), а на крыше здания С – «городская ферма» с теплицами и вазонами, которые рассчитаны на использование жильцами.
Социальное жилье в бывшем комплексе инженерной школы Télécom Paris. Здание C
Фото © Antoine Mercusot
