СТУДЕНТЫ: Мария Апостолова, Элина Вершинина, Григорий Воронин, Георгий Гнилорыбов, Михаил Ильин, Алина Козонова, Тимофей Кузнецов, Ольга Легостаева, Евгения Мью, Тимофей Никольский, Алина Погорянская, Полина Тимощенко, Мария Торбенко, Лада Федорина, Георгий Чернышов, Елисавета Чувилкина
Описание брифа
Студия работала над архитектурными решениями для Баренцбурга – российского поселка на архипелаге Шпицберген. Программу поддержал трест «АрктикУголь», а в центре внимания оказались объекты культурного наследия: старая столовая, дом Плисецкого, музей науки и техники, жилые дома-финки. Студенты изучали особенности жизни в арктическом климате и создавали проекты реновации с учетом экстремальных условий, ограниченных ресурсов и туристического потенциала.
Курс включал теоретические исследования, мастер-планирование, проработку архитектурных и интерьерных решений, детализацию узлов, макетирование. Ключевой составляющей стал полевой выезд в Мурманск и Шпицберген, чтобы сопоставить гипотезы с реальным контекстом. Итоговые работы превратились в размышление о том, как может выглядеть современная интервенция в сложившуюся застройку среди хрупкой арктической природы.
Фотография: Абдуллах Ахмедов
Комментарий кураторов, Наталья Пирогова:
«Любопытно, что сами кураторы также получают бриф от директора школы – почти как студенты. Никита Владимирович обозначил задачу предельно ясно: он ожидает от нас «живую студию» с реальным кейсом и участием третьей стороны или заказчика. Совместно с партнёрами – Абдуллахом Ахмедовым и Полиной Вороховой – мы нашли по-настоящему сильную тему благодаря Ксении Голубевой, руководителю проектного отдела ДОМ.РФ и одному из разработчиков мастер-плана посёлков на Шпицбергене. Предложенная тема сочетала в себе исследовательскую глубину, прикладную значимость через взаимодействие с локальными стейкхолдерами и исключительный контекст. Мы приняли решение взять её в работу.
Перед студентами была поставлена задача комплексного анализа – градостроительного, климатического, исторического и антропологического. Результатом этого этапа стал формат дебатов о перспективах развития посёлка Баренцбург. На его основе студенты сформулировали гипотезы ревитализации четырёх объектов «Старого города» Баренцбурга и представили их заказчику: Метеостанции, Домов-финок, дома Плисецкого и Старой столовой. Все объекты имеют различную типологию, конструктив, один объект имеет статус ОКН.
После утверждения концепций и технических заданий участники перешли к углублённому архитектурному проектированию, разработке технического и инженерного разделов, визуализаций проектных решений, применяя все навыки 4 курса в Студии. Итогом работы стали интересные и актуальные для современной Арктики варианты ревитализации зданий. Прошли две защиты: академическая и рабочая презентация генеральному директору треста Ильдару Неверову. В ходе второй мы получили приглашение посетить Шпицберген и организовать выставку – и это уже другая история.
Фотография: Абдуллах Ахмедов
В августе 2025 мы вместе со студентами, архитекторами и эконом-географами отправились в экспедицию на Шпицберген. Это стало важным итогом студии, который помог студентам в рефлексии над проектными решениями. Еще одним приятным и неожиданным результатом студии стала выставка, которую мы при помощи Треста смогли организовать в Баренцбурге. Это самая северная выставка МАРШ (предыдущий рекорд принадлежал выставке на Новой Земле).
Мы с партнёрами искренне гордимся результатами студентов и самим форматом студии, который расширяет границы взаимодействия, восприятия и ответственности – выводя образовательный процесс за пределы школы, вплоть до удалённого арктического посёлка».
Метеостанция
Мария Апостолова, Алина Козонова, Полина Тимощенко, Елисавета Чувилкина
Метеостанция
Мария Апостолова, Алина Козонова, Полина Тимощенко, Елисавета Чувилкина
Метеостанция
Мария Апостолова, Алина Козонова, Полина Тимощенко, Елисавета Чувилкина
Проект возвращает заброшенную метеостанцию в городской контекст ― здание получает новую функцию центра морского сообщества и становится точкой притяжения для местных жителей и яхтсменов.
Главный архитектурный жест – восстановление утраченной башни: теперь она работает как навигационная вертикаль и визуальный маркер побережья. Следуя принципам бережной реставрации с приспособлением, авторы избегают исторической стилизации – все добавления считываются как современные.
Открытая планировка внутри деревянного каркаса подчёркивает идею доступности и совместного использования для тех, кто приходит с моря, и тех, кто живёт на берегу.
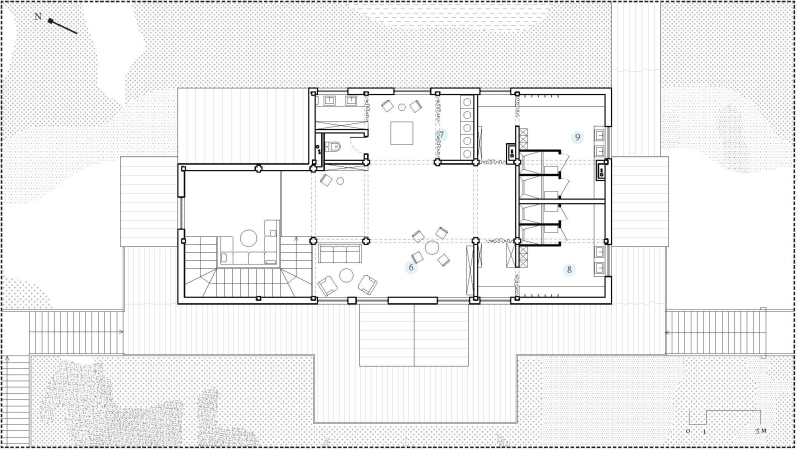
Дом Плисецкого
Георгий Гнилорыбов, Григорий Воронин, Ольга Легостаева, Евгения Мью
Дом Плисецкого
Георгий Гнилорыбов, Григорий Воронин, Ольга Легостаева, Евгения Мью
Дом Плисецкого
Георгий Гнилорыбов, Григорий Воронин, Ольга Легостаева, Евгения Мью
Авторы работали со зданием, где в 1930-х жила семья первого директора треста «Арктикуголь», включая его дочь – будущую балерину Майю Плисецкую. Анализируя потребности Баренцбурга, студенты предложили создать дом приёмов для делегаций, которые регулярно посещают посёлок.
Первый этаж отведён под рабочие группы, требующие камерных пространств для совещаний. Второй этаж – трансформируемый зал для официальных событий: от научных лекций до дебатов между норвежской и российской сторонами.
Архитектурное решение сохраняет деревянную обшивку фасадов, дополняя её резными орнаментами с традиционными северными мотивами. Радикальным жестом становится медная кровля сложной формы, отвечающая рельефу и направлению ветров – она создаёт световые эффекты в полярный день.
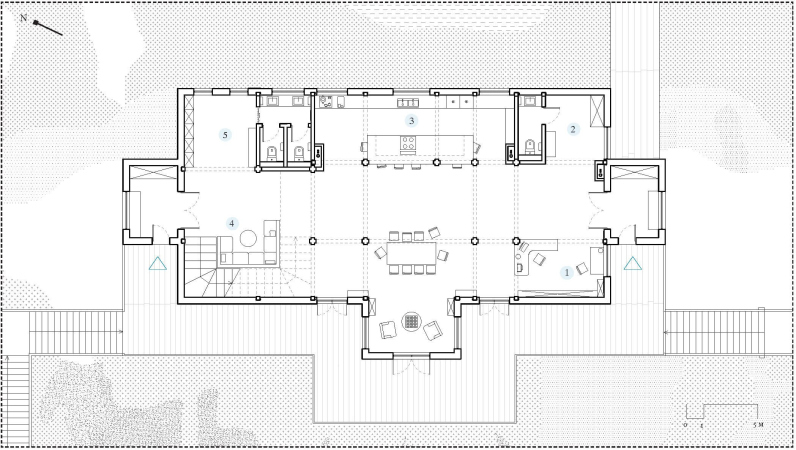
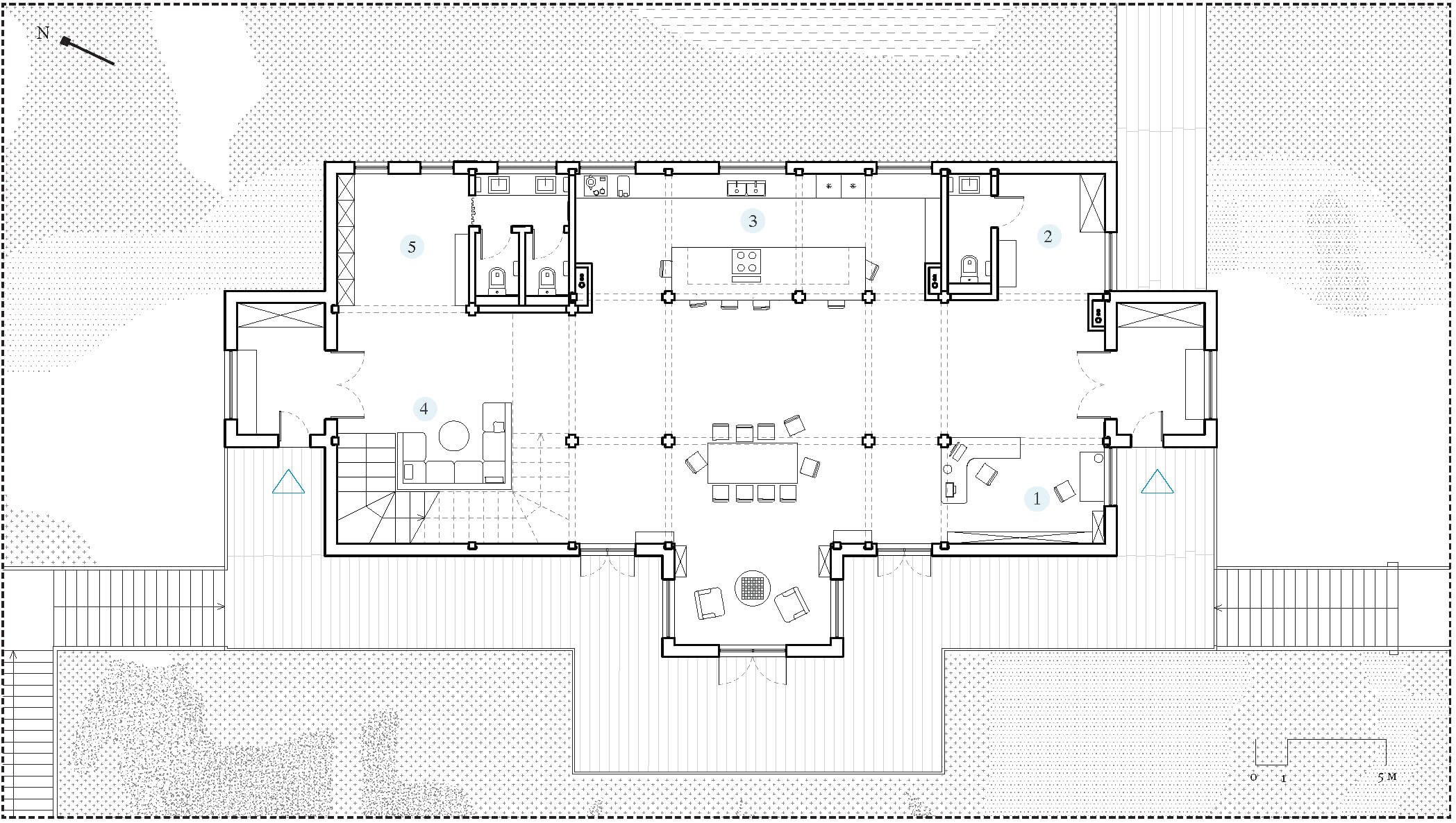
Старая столовая
Элина Вершинина, Михаил Ильин, Алина Погорянская, Георгий Чернышов
Старая столовая
Элина Вершинина, Михаил Ильин, Алина Погорянская, Георгий Чернышов
Старая столовая
Элина Вершинина, Михаил Ильин, Алина Погорянская, Георгий Чернышов
В центре Баренцбурга стоит столовая – памятник культурного наследия, утративший социальную роль в жизни арктического поселения. Стратегическое расположение на главном маршруте от порта к жилым зонам сохраняет потенциал для новых общественных сценариев.
Концепция основана на создании зелёного атриума, который становится сердцем возрождённой постройки. Этот приём создаёт драматический контраст между суровой средой Шпицбергена и неожиданно тёплым интерьером, где растения обретают особое символическое значение.
Архитектурное решение бережно сохраняет исторический облик здания. Центральный атриум пронизывает все уровни, а вокруг располагаются зоны питания, отдыха и релаксации. Проект возвращает памятнику роль социального центра, предлагая место для встреч и общения, защищённое от непогоды.
Дома-финки
Тимофей Кузнецов, Тимофей Никольский, Мария Торбенко, Млада Федорина
Дома-финки
Тимофей Кузнецов, Тимофей Никольский, Мария Торбенко, Млада Федорина
Дома-финки
Тимофей Кузнецов, Тимофей Никольский, Мария Торбенко, Млада Федорина
Проект реконструкции исторических домов-финок превращает последние оставшиеся в посёлке образцы финской строительной традиции в гостиничный комплекс, основанный на образе временного жилья для шахтёров.
Концепция опирается на суровую утилитарность арктического быта. Авторы сохраняют деревянный каркас из сосны – основу идентичности «финок», дополняя его мансардами и вторым светом.
Красная деревянная обшивка подчёркивает норвежское наследие, а металлическая фальцевая кровля отсылает к индустриальному характеру посёлка. Панорамные окна главных фасадов связывают интерьер с суровым ландшафтом.
Проект пытается привлечь внимание туристов к идентичности Баренцбурга – угледобыче, сохранив историю через архитектурную форму.
Экспедиция
Летом 2025 года студенты 4-го курса бакалавриата архитектурной школы МАРШ отправились в экспедицию, чтобы увидеть Баренцбург, провести полевые исследования, пообщаться с жителями и организовать выставку на 78 градусе широты в местном Доме Культуры. На ней они показали проекты реконструкции объектов, над которыми работали в течение семестра.
Фотография: Абдуллах Ахмедов
Фотография: Абдуллах Ахмедов
