Небольшой загородный бутик-отель расположен на живописном участке в частно секторе Солнечногорска. С юго-запада территория отгорожена лесом и ручьем, вдоль которого утром и вечером пасется стадо лошадей, а с северо-запада соседствует с полем крупного фермерского хозяйства. Участок, таким образом, можно условно разделить на две видовые зоны: спуск к ручью с видом на лес и открытые просторы злаковых полей с живописными закатами, что и определило концепцию отеля.
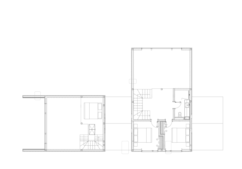
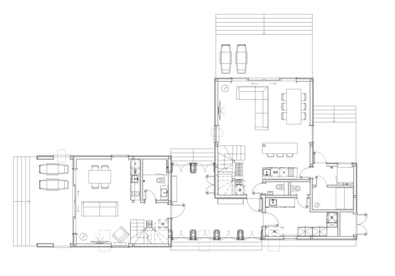
Дом спроектирован таким образом, чтобы в нем могли одновременно разместиться две независимые компании гостей. Каждый жилой модуль ориентирован на собственный задний двор с отдельной террасой и зоной барбекю, где благодаря обильной растительности можно почувствовать себя уединенно. Два дома соединены крытой террасой, которая может служить дополнительной общей зоной, если отель полностью арендует одна большая компания.
В первом модуле расположены кухня-гостиная и спальня на антресоли – он предназначен для отдыха пары или семьи. Второй модуль более просторный: в нем две полноценные спальни и большая двусветная гостиная, рассчитанная на размещение шести гостей. Благодаря панорамному остеклению удалось визуально объединить интерьер с окружающим пейзажем и наполнить пространство естественным светом.
Интерьер дома получился легким и светлым, при этом все поверхности тактильно приятны: стены покрыты бархатистой белой штукатуркой, в отделке использовано много дерева и черного матового металла.
