Дуплекс в Солнечногорске
Фотография © Сергей Волокитин / предоставлена DO buro
Дуплекс в Солнечногорске
информация:
-
статус
реализовано -
даты
2021 — 2023 / 2023 -
место
Солнечногорск Пешковский с.о., Новинки 29 -
координаты
56.068243, 37.045893 -
функция
Туризм/здравоохранение / Отель -
теги
send.project -
площадь застройки
210 м2 -
общая площадь
380 м2 -
этажность
2

Александр Казаченко
Россия
Вероника Давиташвили
Россия
Алексей Агарков
РоссияDO buro
Россияавторский коллектив
Архитектор: Александр Казаченко, Вероника Давиташвили, Агарков Алексей
партнеры, заказчики, смежники
награды:
- Победитель FAMA Awards 2023
Дуплекс в Солнечногорске
Фотография © Сергей Волокитин / предоставлена DO buro
Архи.ру об этом объекте:
Солнечный дуплекс
Небольшой отель в Солнечногорске, рассчитанный на автономное размещение двух компаний, построен по проекту DO buro. В сценарий здания заложена как возможность уединения, так и совместного времяпрепровождения: у каждого жилого модуля свой двор и гостиная с панорамным окном, а объединяет их терраса, которую можно использовать в качестве дополнительной площадки для отдыха.
Описание предоставлено архитекторами Небольшой загородный бутик-отель расположен на живописном участке в частно секторе Солнечногорска. С юго-запада территория отгорожена лесом и ручьем, вдоль которого утром и вечером пасется стадо лошадей, а с се... читать дальшеДуплекс в Солнечногорске
Фотография © Сергей Волокитин / предоставлена DO buro
история проекта:
Постоянный заказчик, с которым мы реализовали множество проектов и продолжаем сотрудничество. Поступил запрос на разработку участка и проектирование двух домов. Мы предложили создать один дом, но с общей террасой, чтобы увеличить пространство для возможных встреч большой компанией.
описание:
Проект дуплекса в Солнечногорске – это небольшой загородный бутик-отель, расположенный на невероятно живописном участке. С юго-запада территория огорожена лесом и ручьем, вдоль которого утром и вечером пасется стадо лошадей, а с северо-запада соседствует с полем крупного фермерского хозяйства.
Таким образом, участок можно условно разделить на две видовые зоны: спуск к ручью с видом на лес и открытые просторы злаковых полей с живописными закатами, что и определило концепцию отеля.
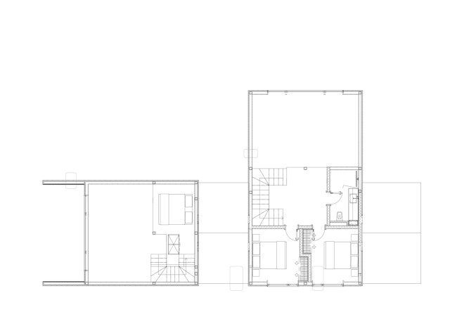
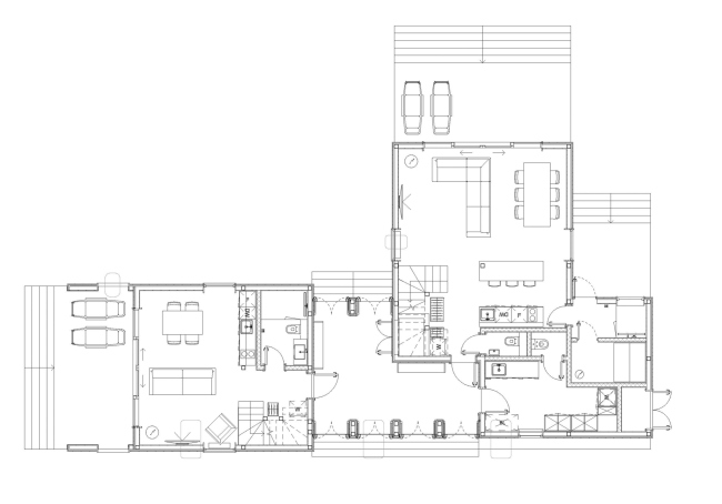
Архитектура спроектирована таким образом, чтобы в доме могли одновременно разместиться две независимые компании гостей. Каждый жилой модуль ориентирован на собственный задний двор с отдельной террасой и зоной барбекю, где, благодаря обильной растительности, можно почувствовать себя абсолютно уединенно. Два дома соединены крытой террасой, которая может служить дополнительной общей зоной, если отель полностью арендует одна большая компания.
В первом модуле расположены кухня-гостиная и спальня на антресоли – он предназначен для отдыха пары или семьи. Второй модуль более просторный: в нем две полноценные спальни и большая двусветная гостиная, рассчитанная на размещение до шести гостей. Благодаря панорамному остеклению удалось визуально объединить интерьер с окружающим пейзажем и наполнить пространство естественным светом.
Интерьер дома получился легким и светлым, при этом все поверхности тактильно приятны: стены покрыты бархатистой белой штукатуркой, в отделке использовано много дерева и черного матового металла.