Центр и музей керамики в деревне Батчанг
Фото © Triệu Chiến / 1+1>2 Architects
Он расположен на берегу канала Бакхынгхай, недалеко от места его впадения в реку Хонгха. Архитекторы разработали его форму в виде семи перевернутых конусов, напоминающих керамические сосуды в процессе создания на гончарном круге. Еще одним источником вдохновения стала традиционная для Восточной и Юго-Восточной Азии – в том числе для Батчанга – печь для обжига в форме лежащей на боку тыквы-горлянки.
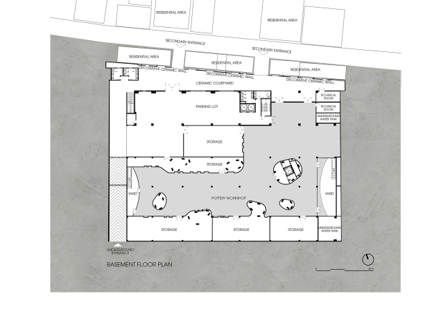
Открытое пространство на уровне земли может использоваться для различных мероприятий; нижний этаж здания занят мастерскими, магазинами, демонстрационными залами, выше находятся выставочные залы, а на кровле устроено еще одно пространство для мероприятий, там же открыто кафе.
Центр и музей керамики в деревне Батчанг
Фото © Triệu Chiến / 1+1>2 Architects
Бетонные фасады музея покрыты панелями из фибробетона, имитирующими терракоту. В проекте использованы кирпич, плитка и керамическая мозаика, что еще более прямо напоминает о назначении здания.
Центр и музей керамики в деревне Батчанг
Фото © Triệu Chiến / 1+1>2 Architects
Центр и музей керамики в деревне Батчанг
Фото © Triệu Chiến / 1+1>2 Architects
Центр и музей керамики в деревне Батчанг
Фото © Triệu Chiến / 1+1>2 Architects
Центр и музей керамики в деревне Батчанг
Фото © Triệu Chiến / 1+1>2 Architects
Центр и музей керамики в деревне Батчанг
Фото © Triệu Chiến / 1+1>2 Architects
Центр и музей керамики в деревне Батчанг
© 1+1>2 Architects

