Исследовательский центр компании Tetra Pak в Модене
Фотография © Marco Cappelletti / предоставлено агентством Cultivar
Исследовательский центр компании Tetra Pak в Модене
Фотография © Marco Cappelletti / предоставлено агентством Cultivar
Исследовательский центр компании Tetra Pak в Модене
Фотография © Marco Cappelletti / предоставлено агентством Cultivar
Архитекторы создали простой, почти квадратный в плане объем, который сам напоминает аккуратный пакет. Основу составляет оболочка из бетонных панелей молочного цвета. Она практически полностью лишена проемов, но имеет пластичную волнистую форму и рельефный рисунок в виде треугольников (отсылка к тетраэдрическому пакету, с которого, собственно, и началась история компании). Плотный в нижней части, геометрический узор постепенно становится все реже и, наконец, вверху полностью исчезает.
Исследовательский центр компании Tetra Pak в Модене
Фотография © Marco Cappelletti / предоставлено агентством Cultivar
Исследовательский центр компании Tetra Pak в Модене
Фотография © Marco Cappelletti / предоставлено агентством Cultivar
Но главный северо-западный фасад выбивается из этой общей гладкой и пластичной «упаковки». Полностью остекленный, будто отдельно врезанный объем, отвечает за взаимодействие с окружением. Вдоль всего фронта остекления расположены кабинеты администрации и переговорные – происходящее внутри хорошо видно со стороны, а защиту от солнца обеспечивают деревянные ламели, подчеркивающие двухуровневое членение фасада. На объеме рабочего блока, под выносом кровли в форме крыла чайки, размещена открытая терраса.
Исследовательский центр компании Tetra Pak в Модене
Фотография © Marco Cappelletti / предоставлено агентством Cultivar
Исследовательский центр компании Tetra Pak в Модене
Фотография © Marco Cappelletti / предоставлено агентством Cultivar
Исследовательский центр компании Tetra Pak в Модене
Фотография © Marco Cappelletti / предоставлено агентством Cultivar
Исследовательский центр компании Tetra Pak в Модене
Фотография © Marco Cappelletti / предоставлено агентством Cultivar
Вовнутрь эта рабочая зона обращена помещениями лабораторий, комнатами для уединенной работы и зонами неформального общения. В организации среды использованы принципы активной работы (Activity-Based Working) и методологии agile. Заранее было решено, что до 20% сотрудников большую часть времени работают из дома, так что сам офис используется скорее как место коммуникации и обмена идеями.
Исследовательский центр компании Tetra Pak в Модене
Фотография © Marco Cappelletti / предоставлено агентством Cultivar
Исследовательский центр компании Tetra Pak в Модене
Фотография © Marco Cappelletti / предоставлено агентством Cultivar
Исследовательский центр компании Tetra Pak в Модене
Фотография © Marco Cappelletti / предоставлено агентством Cultivar
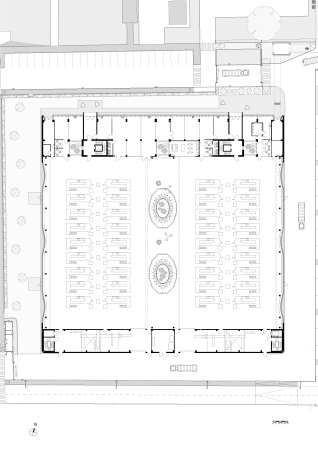
Сотрудникам лабораторий при этом легко наблюдать за происходящим в пространстве машинного зала, который и является «главным героем» всего проекта. Несмотря на внушительную площадь в 4500 м2 он практически полностью свободен от опор, его разделяют лишь две овальные металлические конструкции на центральной оси, внутри которых созданы зеленые зоны. По обеим сторонам от них ровными рядами выстроены четыре линии (всего 36 упаковочных машин), при этом вся инженерия и точки подключения спрятаны в проходящих под ними двух тоннелях. Такое решение позволило визуально разгрузить пространство, минимизировать шум и обеспечить чистоту. Свет поступает внутрь через верхние фонари и небольшие ленты остекления в нижней части боковых фасадов, а белый пол и вторящий главному фасаду рельефный потолок из клееной древесины делают его не только функциональным, но эффектным и даже торжественным. Это позволяет максимально гибко использовать зал: от обучающих семинаров, производственных испытаний и демонстраций, до презентаций и других мероприятий.
Исследовательский центр компании Tetra Pak в Модене
© ZPZ Partners / предоставлено агентством Cultivar
Исследовательский центр компании Tetra Pak в Модене
© ZPZ Partners / предоставлено агентством Cultivar
Исследовательский центр компании Tetra Pak в Модене
© ZPZ Partners / предоставлено агентством Cultivar

