Кафе на скале и Дом-башня
Фото © MEI Kejia
Кафе на скале и Дом-башня
Фото © MEI Kejia
Кафе на скале и Дом-башня
Фото © SUN Xiangzhou
Кафе представляет собой горизонтальный прямоугольный объем, немного выдающийся над скалами и водой. Оно встроено в берег: посетители сначала оказываются на его кровле, служащей смотровой террасой, а затем спускаются вниз, собственно в кафе. Внутри создан контраст между темными коридорами и обеденной зоной, куда они ведут: здесь выходят на море панорамные окна и небольшой балкон.
Кафе на скале и Дом-башня
Фото © SUN Xiangzhou
От основного объема ответвляется коридорообразная пристройка, куда вписана закрытая комната для медитаций, а в конце устроено пространство на одного человека с удобным креслом: опять же, для любования морским пейзажем.
Кафе на скале и Дом-башня
Фото © SUN Xiangzhou
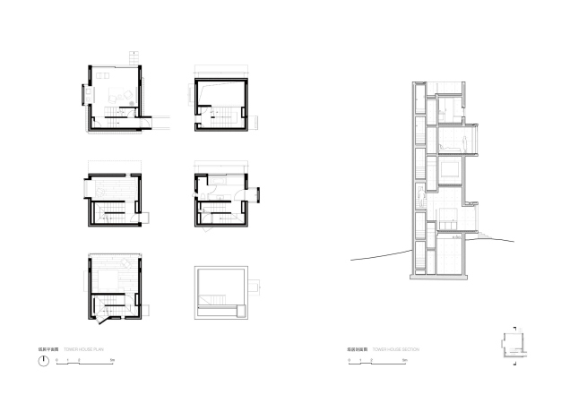
Рядом с кафе возведен Дом-башня с пятном застройки всего 4,5 на 4,5 м2. Из-за небольшого размера все привычные помещения – общая комната, кабинет, спальня, ванная – размещены друг над другом. Панорамные окна сочетаются с небольшими проемами необычной формы, отдельно стоит упомянуть полностью стеклянный эркер, где устроена одна из душевых.
Кафе на скале и Дом-башня
Фото © SUN Xiangzhou
Кафе на скале и Дом-башня
Фото © SUN Xiangzhou
Кафе на скале и Дом-башня
© TAO
Кафе на скале и Дом-башня
© TAO
