Детский сад и ясли Мари Марвен – реконструкция
Фото © Luc Boegly
К концу 2010-х здание требовало обновления – как планировки, так и эко-показателей: требовалось сделать детский сад ресурсоэффективным. Но архитекторы также дали постройке новый облик – более лаконичный и одновременно узнаваемый. Главную роль теперь играет обшитый древесиной лиственницы объем с двускатной кровлей: его традиционный силуэт должен вызывать у детей и их родителей «домашние» ассоциации. На первом этаже здесь расположен вестибюль, который стал просторнее и светлее, с более понятной ориентацией. На втором этаже, под крышей находится зал для собраний, который рассчитан на местных жителей.
Детский сад и ясли Мари Марвен – реконструкция
Фото © Luc Boegly
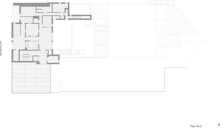
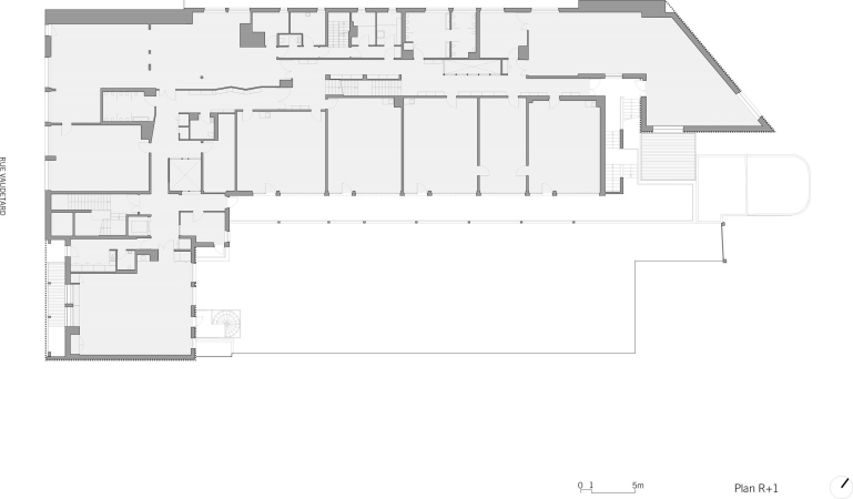
Два первых этажа в целом занимает детский сад, два верхних – ясли.
Особое внимание было уделено двору, где дети постарше проводят значительную часть свободного времени. Галерея второго этажа теперь расширена и превращена в навес на случай плохой погоды, то же самое сделано и с третьим этажом: в итоге, фасад защищен и от солнечного жара. Основной материал снаружи и в интерьере – светлая штукатурка, детали выполнены из золотистого анодированного алюминия.
Детский сад и ясли Мари Марвен – реконструкция
Фото © Luc Boegly
Детский сад и ясли Мари Марвен – реконструкция
Фото © Luc Boegly
Детский сад и ясли Мари Марвен – реконструкция
Фото © Luc Boegly
Детский сад и ясли Мари Марвен – реконструкция
Фото © Luc Boegly
Детский сад и ясли Мари Марвен – реконструкция
Фото © Luc Boegly
Детский сад и ясли Мари Марвен – реконструкция
Фото © Luc Boegly
Детский сад и ясли Мари Марвен – реконструкция
Фото © Luc Boegly
Детский сад и ясли Мари Марвен – реконструкция
Фото © Luc Boegly
Детский сад и ясли Мари Марвен – реконструкция
Фото © Luc Boegly
Детский сад и ясли Мари Марвен – реконструкция
Фото © Luc Boegly
