Штаб-квартира компании Furla в коммуне Таварнелле-Валь-ди-Пеза
Фотография © Fernando Guerra
Комплекс состоит из трех основных объемов: одного офисного и двух отведенных под лаборатории и производственно-складскую инфраструктуру. Все они аккуратно вписаны в ландшафт, следуя его холмам, полям, рощам и не создавая заметного контраста. Этому способствуют и сдержанные, почти природные цвета отделки, и четко выверенное, вписанное в линию горизонта ступенчатое повышение объемов, и озелененные террасы кровли, и большие фрагменты остекления, и уступчатое положение всех корпусов относительно друг друга, разбивающее протяженную линию фасада.
Штаб-квартира компании Furla в коммуне Таварнелле-Валь-ди-Пеза
Фотография © Fernando Guerra
Штаб-квартира компании Furla в коммуне Таварнелле-Валь-ди-Пеза
Фотография © Fernando Guerra
Штаб-квартира компании Furla в коммуне Таварнелле-Валь-ди-Пеза
Фотография © Fernando Guerra
Уже сам подъездной путь и главный вход оформлены, как и в классических виллах, тонкими, изысканными вертикалями кипарисов. Их торжественный, разреженный ритм подхватывают ламели на фасаде, защищающие помещения от назойливого солнца. Все элементы комплекса при помощи ландшафта собираются в единый организм вокруг смыслового центра – так называемой Piazza Furla прямо перед входом. Внутренняя организация рабочих пространств при этом максимально гибкая и также содержит много общественных зон и зон коммуникации.
Штаб-квартира компании Furla в коммуне Таварнелле-Валь-ди-Пеза
Фотография © Fernando Guerra
Штаб-квартира компании Furla в коммуне Таварнелле-Валь-ди-Пеза
Фотография © Fernando Guerra
Синкретический подход авторов проекта и сам характер архитектуры требовали также активного применения технологий устойчивого строительства: дождевая вода собирается и вторично используется для полива, повсеместно установлены экономичные светодиодные лампы, на кровле производственного корпуса расположены фотоэлектрические элементы и тепловые солнечные панели, за счет которых обеспечивается нагрев воды. Наконец, сам фасад получил инновационное порошковое покрытие на основе особого неорганического минерала. Оно имеет более высокий индекс отражения, защищая фасад от перегрева и снижая уровень загрязнения окружающей среды.
Штаб-квартира компании Furla в коммуне Таварнелле-Валь-ди-Пеза
Фотография © Fernando Guerra
Штаб-квартира компании Furla в коммуне Таварнелле-Валь-ди-Пеза
Фотография © Fernando Guerra
В результате природа, являющаяся без преувеличения культурообразующим фактором и квинтэссенцией всего итальянского, становится не столько рамкой или эффектным фоном для здания, сколько полноправным партнером архитекторов. Такой подход, основанный не на отрицании или противостоянии, не на подчинении, а на полном принятии, становится все более и более популярным в современной практике, но в каждой исторической среде хрупкий баланс должен быть найден заново.
Материалы предоставлены агентством v2com.
Штаб-квартира компании Furla в коммуне Таварнелле-Валь-ди-Пеза
Фотография © Fernando Guerra
Штаб-квартира компании Furla в коммуне Таварнелле-Валь-ди-Пеза
Фотография © Fernando Guerra
Штаб-квартира компании Furla в коммуне Таварнелле-Валь-ди-Пеза
Фотография © Fernando Guerra
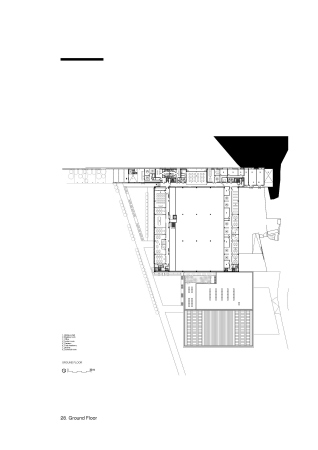
Штаб-квартира компании Furla в коммуне Таварнелле-Валь-ди-Пеза
© GEZA Architettura
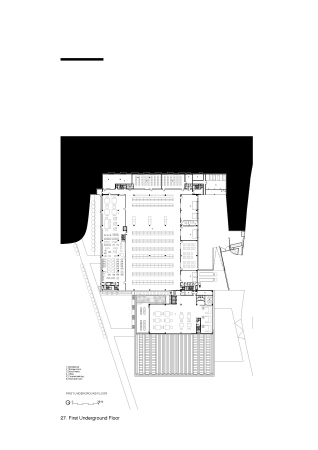
Штаб-квартира компании Furla в коммуне Таварнелле-Валь-ди-Пеза
© GEZA Architettura
Штаб-квартира компании Furla в коммуне Таварнелле-Валь-ди-Пеза
© GEZA Architettura
