Описание предоставлено архитекторами
Пятиэтажный учебный центр выделяется своей архитектурой на фоне окружающих домов формой и цветовым решением: здание напоминает детскую игрушку, которую можно разбирать и заново собирать, отсоединять часть и добавлять снова. Вертикальные линии на фасаде напоминают штрих-код.
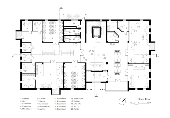
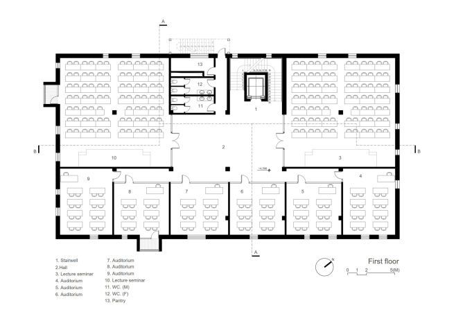
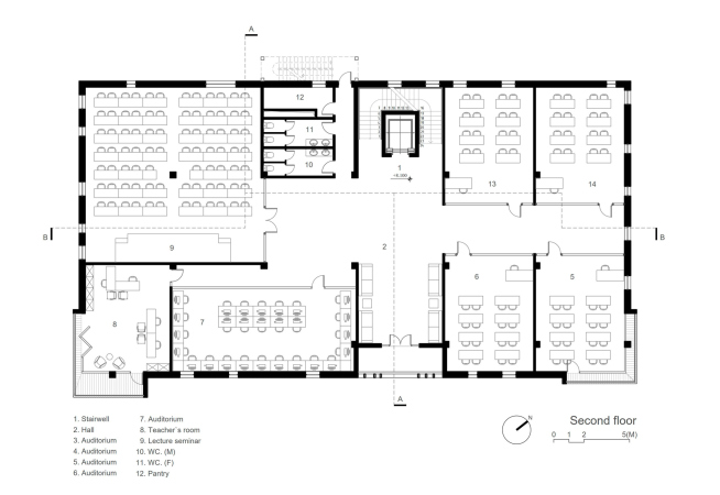
Главный вход в расположен на оси ведущей к зданию дороге. Центр плана – это основной холл. На этажах сосредоточены офисные и экзаменационные кабинеты для молодежи, что подчеркнуто притягательной и динамичной концепцией. Для стен помещений и мебели выбраны яркие цвета и смелые формы. Вместе с этим, разные иллюстрации дарят гостям позитивный и активный настрой.
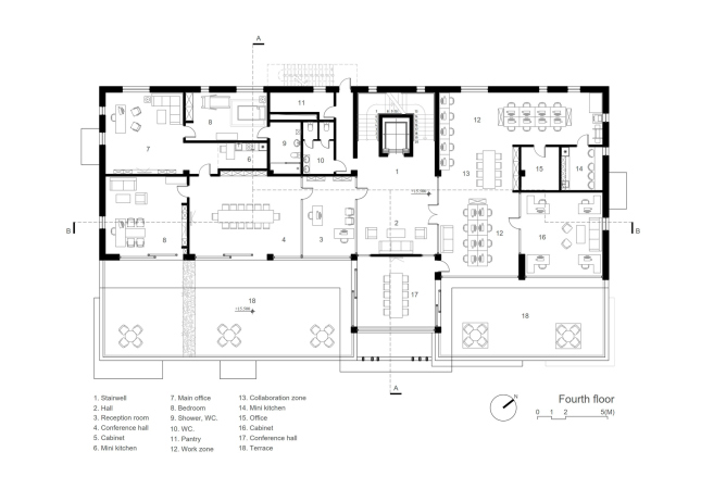
Пятый этаж выглядит серьезнее, так как состоит из помещений административного назначения. Здесь архитекторы избегали многоцветных деталей, на стенах помещений используется текстура дерева и черно-белые панели. Витражные стены и горизонтальные светильники дают возможность свободной планировки помещений. Мебель и инвентарь сообразно минималистичны.



