Описание предоставлено архитекторами
Лицей № 1 имени Мирзы Тагирова – старейшая школа Альметьевска. Она была основана в 1918 году на месте действующего медресе в селе Альметьево как первая светская татарская школа. За время существования она неоднократно меняла статус и наименование, а в 2016 году стала средней общеобразовательной и получила имя своего легендарного директора. Решение о реконструкции инициировали первые лица республики: во время одного из визитов раис Рустам Минниханов и Минтимер Шаймиев отметили, что старейшая школа города должна быть образцовой.
Лицей №1 им. М.К. Тагирова
Фотография © Виталий Шабинский / предоставлена ED Architecture
Лицей №1 им. М.К. Тагирова
Фотография © Виталий Шабинский / предоставлена ED Architecture
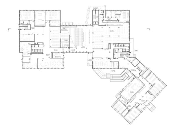
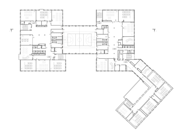
При реконструкции и расширении было важно сохранить исторический облик, традиции и ценности учебного заведения с более чем столетней историей. Авторы хотели создать школу, «выращенную» из татарского языка и культуры, идентичную ценностям и традициям места. Историческое здание 1957 года сохранили, сделав его корпусом нового большого комплекса. Он делится на две основные части: начальную и среднюю школу, соединенные блоком с актовым и спортивным залами.
Лицей №1 им. М.К. Тагирова
Фотография © Виталий Шабинский / предоставлена ED Architecture
В комплексе семь функциональных блоков:
- инженерный: столярная, слесарные мастерские, робототехника и ИКТ;
- научный: универсальные лаборатории химии, физики, биологии и генетики
- медиа-лаборатория: оркестровая, театр, телестудия, студия звукозаписи;
- блок ремесла и искусств, в том числе макетирование, кулинарная лаборатория;
- агротехнологический: оранжерея, гидропоника и аэропоника;
- музыкальный: классы индивидуальных занятий музыки, репетиционные залы, классы сольфеджио;
- спортивный: 25-метровый бассейн, три спортивных зала, зал борьбы и зал хореографии.
Спортивный блок и музыкальная школа с мастерскими размещаются в отдельно стоящих корпусах, расположенных так, чтобы они были доступны и жителям. Вход в кафе для всех свободный. На участке удалось сохранить березы, ели, плодовые деревья школьного сада, и при этом реализовать спортивное ядро с несколькими универсальными игровыми площадками и беговыми дорожками.
Лицей сохраняет национальный колорит. Казански дизайнер Татьяна Черногузова разработала серию орнаментов. Его можно увидеть в рисунке гобелена, которым обиты все диваны и кресла школы, на гипсовых плитах стен зала хореографии, на деревянных панелях коридоров и на металлических панелях бассейна. Для библиотеки дизайнер Милана Халилова вручную сделала из войлока авторские абажуры. Казанская компания Yaratam разработала коллекцию скамеек и изготовила все стулья.
Здание иммерсивное, то есть способное меняется под запросы педагогов и школьников. А также энергоэффективное: внутри установлены автоматическое управление светом, рекуперация, сенсорные смесители, СО2 датчики, регулирующие объем воздуха, акустическая и видео система гибридного класса.
