Здание до реконструкции. Детский хоспис «Дом с маяком»
Фотография: предоставлена IND Architects
А девелоперская компания «O1 Properties» стала спонсором в качестве технического заказчика: были проведены работы по исследованию старого здания и в 2013 году состоялся архитектурный конкурс, в котором, несмотря на участие крупных успешных бюро, победила тогда еще совсем молодая компания IND architects во главе с Амиром Идиатуллиным.
Амир Идиатуллин
«Несмотря на то, что у фонда было очень подробное техническое задание, мы попросили, чтобы нам организовали экскурсию во взрослый московский хоспис, в котором работала Нюта Федермейстер, одна из основательниц фонда. Там мы познакомились с женщиной, у которой во взрослом хосписе лежал сын и она многое рассказала о том, что нужно детям в этом пространстве, что они все также хотят продолжать играть, сохранять активность, общаться, перемещаться, бывать на улице… Так родился наш проект, который мы сделали не похожим на больницу: с яркими фасадами и большими террасами, на которые можно выехать даже на кресле-каталке, чтобы побыть на природе».
Сегодня старое здание советской школы не узнать – его окружают широкие приставные балконы, на которые можно выйти и выехать в любую погоду – побыть на свежем воздухе, выбраться из «четырех стен». Линии фасада отсылают к знаменитой истории о девочке Садако Сасаки из Хиросимы, которая, умирая от лейкемии, загадала успеть сделать тысячу бумажных журавликов в технике оригами. Поэтому многие элементы фасада отсылают к эстетике оригами – крыша балконов, зимнего сада и навес входной группы выглядят как будто созданными из бумаги. Колонны похожи на детали, из которых складывается бумажный журавль. Цветовое решение фасада состоит из ярких и насыщенных оттенков, что отвечает выбранной концепции – оригами традиционно создаются из небольших фрагментов разноцветной бумаги. «Получилась не просто архитектурная форма, а форма с историей – а дети любят истории», – уточняет Амир.
Детский хоспис «Дом с маяком»
Фотография: предоставлена IND Architects
Детский хоспис «Дом с маяком»
Фотография: предоставлена IND Architects
Фасад облицован клинкером в несколько оттенков, это по замыслу архитекторов, придает зданию более «домашний вид». По изначальной идее в клинкерную вкладку должны были быть вмонтированы кирпичи с подсветкой, которые светились бы ночью, чтобы обыграть образ «маяка», но бюджет не позволил реализовать замысел в полном объеме.
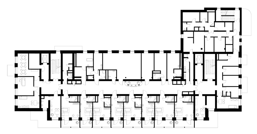
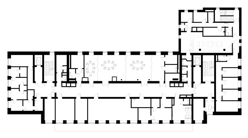
На первом и втором этажах хосписа разместили 15 одноместных палат для детей и их родителей с необходимыми вспомогательными помещениями. Детям помогают как непосредственно в самом хосписе, так и на дому, для чего создана большая выездная паллиативная служба, офисы которой тоже расположены в этом здании на верхних этажах. Кроме того к основному зданию школы площадью чуть более 4000 м2 сделали пристройку площадью еще в 1000 м2, что позволило разместить все необходимые дополнительные помещения.
Здание полностью перепланировано с учетом многочисленных норм и требований (нормы детских учреждений, нормы медицинских учреждений, повышенные нормы безопасности для учреждений, работающих с наркотическими средствами – обезболивающими) – которые надо было свести воедино. В частности, появился лифт, широкие дверные проемы, отдельные входы-приемники. В здании помимо палат, офиса паллиативных служб, комнат для игр и учебы (а дети здесь учатся), есть бассейн, в котором могут плавать даже дети на ИВЛ.
Внутреннее наполнение хосписа сделали максимально гибким, удобным для детей, не диктующими правила: все вокруг в рисунках поделках, на стенах можно рисовать. «Мы придумали красивые выверенные «дизайнерские» интерьеры, которое в итоге не удалось реализовать в полной мере, – говорит Амир Идиатуллин, – Но сейчас, я думаю, это и к лучшему. Получилось очень живое пространство. Дети сами наполняют эти интерьерами своими рисунками, поделками – остается их частичка, память».
Разнообразие функциональных зон внутри хосписа позволяет ребенку самому выбрать, как он хочет проводить время – с друзьями, с родителями, которые могут оставаться с ним в палате (для этого в каждой из комнат есть дополнительная кровать), один в тишине на веранде, балконе или на крыше, где тоже разбили небольшой сад и сделали навес. Слоган московских хосписов «жизнь на всю оставшуюся жизнь» реализовался и в архитектуре здания в полном объеме.
