Описание предоставлено архитекторами
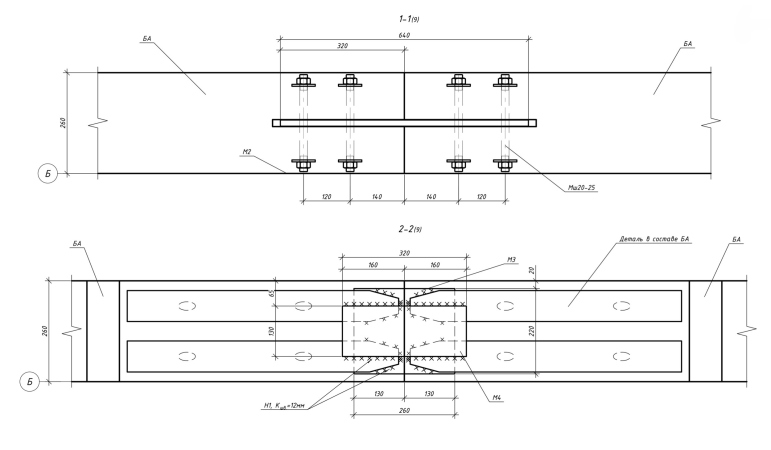
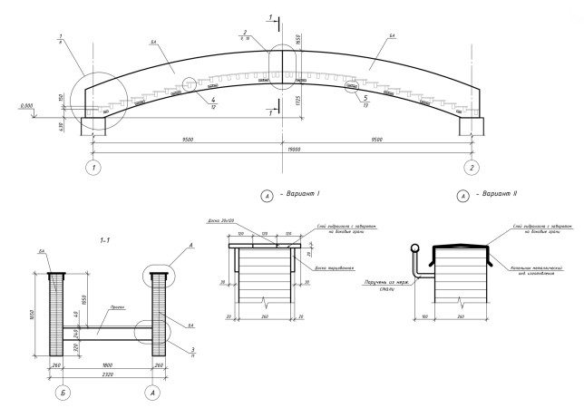
Пешеходный мост расположен в поселке с судоходным каналом «Форест Вилладж». Он выполнен из гнутой клееной древесины и органично вписывается в природный ландшафт. Лаконичная форма арки создает эффект легкости, несмотря на внушительные пролет и прочность конструкции. Мост построен без дополнительных опор в воде, что сохраняет естественную чистоту береговой линии и водоема.
Планируется строительство еще нескольких подобных мостов, гармонично сочетающихся между собой и подчеркивающих живописный природный ландшафт. Доступны различные покрытия – террасная доска (ДПК), твердое плитное или природное насыпное. Варианты отделки внешних поверхностей – доска или гонт. На длинных торцевых балках возможно размещение навигации.
Экологичные материалы и минималистичный дизайн подчеркивают стремление к устойчивому развитию и уважению к окружающей среде. Архитектурное решение сочетает эстетику и функциональность, делая мост не только переходом, но и визуальным акцентом пространства.
