RSS
Новая слобода 2.0
© sp architect

Новая слобода 2.0

информация:

  • статус
    в процессе реализации
  • даты
    08.2023 — 02.2024 / 12.2024
  • region= area= address=ул. 3-я Новослободская country_t=Россия city_t=Муром
    место
    Муром ул. 3-я Новослободская
  • координаты
    55.589096, 42.020955
  • функция
    Жилой / жилой комплекс
    Среднеэтажная жилая застройка комфорт-класса
  • теги
    send.project
  • площадь участка
    12,1 га
  • общая площадь
    80 600 м2
  • этажность
    4-8
  • Количество квартир – 1 869 шт.
Сергей Попрядухин
sp architect / Россия

авторский коллектив

Руководитель, гл. архитектор: Сергей Попрядухин
ГАП: Сергей Постовалов

партнеры, заказчики, смежники

Заказчик: СЗ «Уником
Новая слобода 2.0
© sp architect

Архи.ру об этом объекте:

17.06.2025

Слобода 2.0

Мастерская sp architect разработала для малоэтажного жилого района Мурома концепцию застройки, которая включает такие типологии как «изба», «амбар» и «башня». Разновысотные дома формируют пять кварталов с приватными двориками и палисадниками, а скатные кровли и кирпич дополняют образ уютного городка.

Описание предоставлено архитекторами Задача проекта завершить существующий малоэтажный жилой район Новая Слобода , расположенный в северной части Мурома во Владимирской области. Необходимо разместить приватные кварталы из 4-8-этажных домов, котор...   читать дальше
Новая слобода 2.0
© sp architect

история проекта:

Задача проекта – завершить существующий построенный малоэтажный жилой район «Новая Слобода», расположенный в северной части города Муром Владимирской области.

Необходимо разместить приватные кварталы из 4–8-этажных жилых домов, которые органично продолжат существующую застройку с учётом сложившихся связей и стилистики проекта. И в то же время – «перезагрузить продукт», предложив в данных очередях новый качественный уровень архитектуры и жизни в дефицитном коридоре финансовых возможностей проекта.

описание:

Слободой в старину называли поселение или район города в Русском государстве, где жили в основном свободные, некрепостные люди. Они имели льготы при уплате налогов и освобождались от многих повинностей – это и отразилось в
названии термина: слобода – от слова «свобода».

Имя придает проекту историко-культурный окрас и формирует конкретный стилистический образ.

Действительно, сложно представить себе Слободу без уютных приватных двориков и палисадников, без скатных кровель и кирпича со штукатуркой.
Современная интерпретация такого образа стала основой для работы над проектом.

Территорию сформируют пять приватных кварталов с дворами, свободными от машин. Застройка представлена тремя типологиями строений: Изба, Амбар и Башня.
Первая линия проекта, обращенная в сторону уже существующей низкоэтажной застройки, сформирована Избами. Их небольшой масштаб и скатные кровли – реверанс в сторону сложившейся застройки и исторических русских архетипов.
К периферии в застройке появляются высотные акценты – 8-ми этажные Башни.
Их скошенные парапеты не только скрывают крышные котельные, но и поддерживают общую стилистику проекта.

Новая слобода 2.0
© sp architect
Новая слобода 2.0
© sp architect
Новая слобода 2.0
© sp architect
Новая слобода 2.0
© sp architect
Новая слобода 2.0
© sp architect
Новая слобода 2.0
© sp architect
Новая слобода 2.0
© sp architect
Новая слобода 2.0. Генплан
© sp architect
Новая слобода 2.0. Этапы осовоения территории
© sp architect
Новая слобода 2.0. Схема размещения типологий
© sp architect
Новая слобода 2.0. Схема приватных зон. Благоустройство
© sp architect
Новая слобода 2.0. Схема инжинерного обеспечения
© sp architect
Новая слобода 2.0. Типология строений
© sp architect
Новая слобода 2.0. Транспортная инфраструктура
© sp architect
Новая слобода 2.0. Фрагмент фасада. Отделка
© sp architect
Новая слобода 2.0. Развертка 1. Кластер 6
© sp architect
Новая слобода 2.0. Развертка 2. Кластер 6
© sp architect
Новая слобода 2.0. Развертка 3. Кластер 6
© sp architect
Новая слобода 2.0. Развертка 4. Кластер 6
© sp architect
Новая слобода 2.0. Кластер 6. Типовые этажи
© sp architect
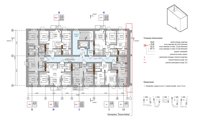
Новая слобода 2.0. Типология Башня. План 1 этажа
© sp architect
Новая слобода 2.0. Типология Башня. План 3-5 этажа
© sp architect
Новая слобода 2.0. Типология Амбар. План 1 этажа
© sp architect
Новая слобода 2.0. Типология Амбар. План 3-4 этажа
© sp architect
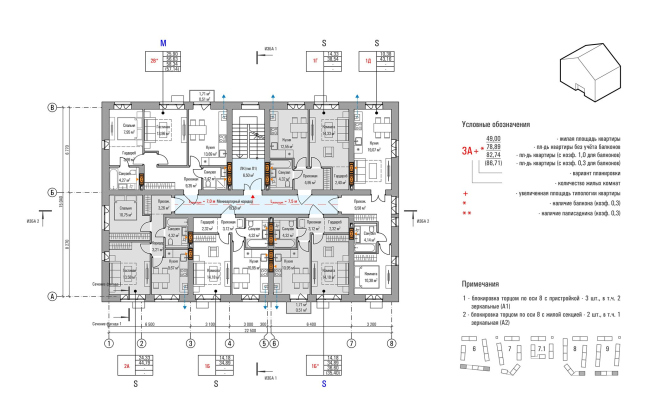
Новая слобода 2.0. Типология Изба. Вариант планировки А. План 1 этажа
© sp architect
Новая слобода 2.0. Типология Изба. Вариант планировки А. План 3-4 этажа
© sp architect

Архитекторы – партнеры Архи.ру:

  • Виталий Лутц
  • Анастасия Абашева
  • Елена Пучкова
  • Михаил Давыдов
  • Юлий Борисов
  • Олег Мединский
  • Александра Кузьмина
  • Андрей Михайлов
  • Павел Андреев
  • Александр Самарин
  • Василий Крапивин
  • Дмитрий Буш
  • Антон Надточий
  • Евгений Подгорнов
  • Екатерина Кузнецова
  • Григориос Гавалидис
  • Иван Кожин
  • Даниил Лоренц
  • Полина Воеводина
  • Сергей Чобан
  • Александр Асадов
  • Андрей Асадов
  • Георгий Трофимов
  • Вера Бутко
  • Ростислав Цайзер
  • Евгений Новосадюк
  • Владимир Плоткин
  • Владислав Андреев
  • Раис Баишев
  • Антон Яр-Скрябин
  • Сергей Никешкин
  • Андрей Гнездилов
  • Никита Явейн
  • Сергей Скуратов
  • Степан Липгарт
  • Станислав Белых
  • Борис Воскобойников
  • Сергей Переслегин
  • Марина Егорова
  • Илья Машков
  • Александр Котенков
  • Татьяна Зульхарнеева
  • Николай Кикава
  • Дмитрий Ликин
  • Наталия Шилова
  • Наталья Сидорова
  • Юлия Тряскина
  • Григорий Мустафин
  • Сергей Кузнецов
  • Юлиана Княжевская
  • Андрей Романов
  • Константин Ходнев
  • Ерлан Бекмухамедов
  • Дмитрий Сухов
  • Зураб Басария
  • Игорь Членов
  • Олег Шапиро
  • Игорь Шварцман
  • Энди Сноу
  • Мария Ахременкова
  • Алексей Орлов
  • Михаил Канунников
  • Дмитрий Остроумов
  • Николай Переслегин
  • Александр Скокан
  • Евгений Зеленов
  • Валерий Каняшин
  • Всеволод Медведев
  • Сергей Труханов
  • Юлия Солдатенкова
  • Тимур Абдуллаев
  • Екатерина Абдуллаева
  • Маргарита Авдышева
  • Левон Айрапетов
  • Александр Аношкин
  • Алексей Афоничкин
  • Владислав Бек-Булатов
  • Антон Белов
  • Татьяна Бузулукова
  • Петр Васильев
  • Данило Вукосавлевич
  • Алина Георгиевская
  • Павел Гордеев
  • Илья Гринберг
  • Никита Демидов
  • Никита Дергунов
  • Наталья Жилкина
  • Алексей Зародов
  • Екатерина Зырина
  • Алексей Ильин
  • Дарья Ильина
  • Олег Карлсон
  • Алексей Кибкало
  • Денис Кувшинников
  • Анна Куликова
  • Алексей Курков
  • Данил Куров
  • Мария Кутай
  • Евгений Кутай
  • Иван Кычкин
  • Антон Ладыгин
  • Дмитрий Лапин
  • Борис Левянт
  • Илья Левянт
  • Катерина Левянт
  • Валерий Лукомский
  • Антон Лукомский
  • Екатерина Ляпунова
  • Иса Магомедов
  • Сергей Марков
  • Елена Мерцалова
  • Николай Миловидов
  • Станислав Михаловский
  • Сергей Мичурин
  • Олеся Могилевская
  • Филипп Никандров
  • Мария Николаева
  • Дмитрий Овчаров
  • Сергей Пергаев
  • Виктор Перов
  • Алексей Полищук
  • Роман Пономарёв
  • Валерия Преображенская
  • Виктория Раубо
  • Василий Рыбаков
  • Николай Рыбаков
  • Мария Салех
  • Александр Стариков
  • Илья Уткин
  • Елисей Чакан
  • Бориша Чорович
  • Олег Шурыгин
  • Дмитрий Шурыгин

Проект из каталога (случайный выбор)

Гольф и яхт-клуб «Пестово»
Дмитрий Петров, 2005 – 2006
Гольф и яхт-клуб «Пестово»

Постройки и проекты (новые записи):

  • Деловое пространство «ПЛЭЙН»
  • Porta
  • Детский сад на 200 мест в Жилино-1
  • Архитектурная концепция кластера Ломоносов-2
  • Клубный дом в 1-м Казачьем переулке
  • Частный дом в Ленинградской области
  • IT-кластер TravelLine в Йошкар-Оле
  • Гостиничный комплекс Cosmos Selection Derbent 5
  • Офис компании АльфаСтрахование

Новости российской архитектуры:

Курган памяти
08.05.2026

Курган памяти

Никита Явейн
Баня по-царски
07.05.2026

Баня по-царски

Ольга Смоленская
«Заря» над волнами
07.05.2026

«Заря» над волнами

Дарья Виноградова
Белый конгломерат
07.05.2026

Белый конгломерат

Александр Томашенко, Андрей Горелов, Василий Сошников, Иван Колманок, Николай Фугаров, Владимир Плоткин
Между фантазией и реальностью: ПАСП & РОСТ
06.05.2026

Между фантазией и реальностью: ПАСП & РОСТ

Андрей Тютерев, Владимир Плоткин