RSS
Оперный театр в Дюссельдорфе – новое здание
© Mir/Snøhetta

Оперный театр в Дюссельдорфе – новое здание


/ New Düsseldorf Opera House

информация:

Snøhetta
Snøhetta / Норвегия
Оперный театр в Дюссельдорфе – новое здание
© Mir/Snøhetta

Архи.ру об этом объекте:

20.11.2025

Нина Фролова. Оперный жанр в wow-архитектуре

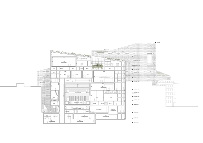
Два известных оперных театра, в Гамбурге и Дюссельдорфе, получат новые здания по проектам BIG и Snøhetta, соответственно; существующий дюссельдорфский театр, возведенный в 1950-х, пойдет под снос, а его «коллега» и ровесник в Гамбурге будет продан.

читать дальше
Оперный театр в Дюссельдорфе – новое здание
© Made by Mistake/Snøhetta/Hans-Joachim Wutheonow
Оперный театр в Дюссельдорфе – новое здание
© Landeshauptstadt Düsseldorf/Claus Langer
Оперный театр в Дюссельдорфе – новое здание
© Mir/Snøhetta
Оперный театр в Дюссельдорфе – новое здание
© Mir/Snøhetta
Оперный театр в Дюссельдорфе – новое здание
© Mir/Snøhetta
Оперный театр в Дюссельдорфе – новое здание
© Mir/Snøhetta
Оперный театр в Дюссельдорфе – новое здание
© Mir/Snøhetta
Оперный театр в Дюссельдорфе – новое здание
© Snøhetta
Оперный театр в Дюссельдорфе – новое здание
© Snøhetta
Оперный театр в Дюссельдорфе – новое здание
© Snøhetta

Избранные архитекторы:

  • Тоёо Ито
  • Кристиан де Портзампарк
  • Хельмут Ян
  • Рафаэль Виньоли
  • Алехандро Аравена
  • Арата Исодзаки
  • Бернар Чуми
  • Эдуарду Соту де Мора
  • Дэвид Чипперфильд

Проект из каталога (случайный выбор)

Избранные постройки:

  • Башня Allianz комплекса CityLife
  • Carré d’Art – музей современного искусства
  • Конференц-центр на кампусе Vitra
  • Конгресс-центр Kursaal
  • Комплекс Центрального китайского телевидения CCTV
  • Начальная школа деревни Минами-Ямасиро
  • Информационно-выставочный центр «Топография террора»
  • Фонд Ланген в комплексе Музейного острова Хомбройх
  • Зарядье – застройка района

Зарубежные новости

Симулятор «зеленой» жизни
05.03.2026

Симулятор «зеленой» жизни

Томас Хезервик
От пещеры до звезды
04.03.2026

От пещеры до звезды

Станислав Субботин
Дарья Кириллова
Горный страж
03.03.2026

Горный страж

Артем Агекян