Размещено на портале Архи.ру (www.archi.ru)

20.11.2025

Оперный жанр в wow-архитектуре

Нина Фролова
Объект:
Гамбургский государственный оперный театр – новое здание
Адрес:
Германия, None, Гамбург.
Оперный театр в Дюссельдорфе – новое здание
Адрес:
Германия, None, Дюссельдорф.
Мастерская:
BIG
Snøhetta

Два известных оперных театра, в Гамбурге и Дюссельдорфе, получат новые здания по проектам BIG и Snøhetta, соответственно; существующий дюссельдорфский театр, возведенный в 1950-х, пойдет под снос, а его «коллега» и ровесник в Гамбурге будет продан.

Гамбургская история выглядит драматичнее, в том числе из-за большей амбициозности и одновременно «необязательности» нового проекта. Кроме того, государственный театр оперы и балета существует здесь уже более 300 лет, сохраняя значительный авторитет и сегодня. Положение Немецкой оперы на Рейне, как официально называется труппа в Дюссельдорфе, скромнее, да и существует оперный театр здесь лишь с 1875. Оба театра сегодня действуют в сравнительно небольших зданиях, построенных в 1950-х вместо разрушенных в войну построек; в Гамбурге театральное сооружение имеет статус объекта наследия и сносу не подлежит, а дюссельдорфское не охраняется государством и потому теперь приговорено к сносу.
 
Итак, оперный театр в Гамбурге не планировал никаких особенных перемен: в XXI веке рядом с ним появился новый корпус с репетиционными залами и другими необходимыми пространствами, а в другом районе города – здание с декорационными мастерскими и хранилищем для этих декораций, костюмов, реквизита и так далее. Однако в 2022 миллиардер Клаус-Михаэль Кюне, живущий в Швейцарии уроженец Гамбурга, предложил родному городу оплатить строительство нового театра – в Хафен-сити. Взамен предприниматель-меценат надеялся получить участок в центре города с ныне существующим театром, снести его и построить там выгодный коммерческий объект. Но статус ОКН помешал этим планам, поэтому строгое модернистское здание, скорее всего, будет продано с сохранением зафиксированной в реестре памятников функции («музыкальный театр»).
 
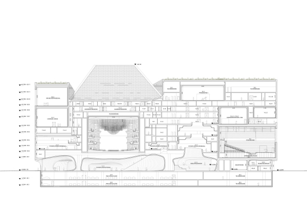
Проведенный закрытый конкурс завершился победой бюро BIG, предложившим возвести на краю полуострова Бакенхёфт (ныне занятого промзоной) постройку (45 тыс. м2) с обширными террасами, спускающимися к Эльбе. Здесь разобьют парк, рассчитанный на паводки и ливни, поэтому здесь появятся засаженные растениями дюны и «заболоченные» сады, а также проницаемое мощение. В театр можно будет попасть как из парка, так и со стороны города, а также по существующему мосту: именно с его стороны планируется устроить главный вход. Внутри будет много дерева – из него соорудят две парадные лестницы, а также «кольца» главного зрительного зала. Также запланирован меньший зал-студия и все необходимые вспомогательные пространства. Каждый уровень здания получит открытую зеленую террасу.
 
Критики отмечают нарочито эффектный, почти китчевый облик проекта, который был, кажется, рассчитан на вкус заказчиков – Кюне и его жены Кристины. Многих, от архитекторов и охранителей наследия до политиков и неравнодушных горожан, возмущает «волюнтаризм» такого дара Гамбургу – особенно в контексте выяснившихся финансовых подробностей. Кюне готов выделить лишь порядка 300 млн евро, а общий бюджет проекта, который может быть завершен к 2030, но скорее к 2034 году, составит не менее 1 млрд евро – и разницу придется покрыть муниципальным властям. Отдельная тема – высылка театра если не на окраину, то точно из центра города, где он пребывал исторически.
 
Кроме того, недоверие к плану Кюне подогревает история с Elbtower по проекту бюро Дэвида Чипперфильда: здание с отелем и офисами должно было стать 3-м по высоте в Германии (245 м), но через два года строительства, в 2023, оно остановилось: девелопер Рене Бенко, один из богатейших граждан Австрии, обанкротился, а сейчас отбывает тюремный срок за мошенничество, в то время как его недостроенная башня «украшает» собой Хафен-сити, и дальнейшая судьба ее неясна.
 
В Дюссельдорфе планировали полностью перестроить старый театр еще в 2021: тогда был представлен проект реконструкции от Snøhetta, заказанный девелопером. Над фактически новым театром в самом центре города возводились две башни с жильем, отелем и офисами. Сейчас заказчиком выступил муниципалитет, но проект вновь разрабатывает Snøhetta: теперь архитекторы победили в открытом конкурсе.
 
Театр переедет на восток от Рейна и Старого города, заняв место многоярусного гаража при универмаге Galeria Karstadt Kaufhof. Архитекторы, тем не менее, вдохновлялись именно Рейном, а точнее – осадочными породами, которые эта река принесла в свою долину за миллионы лет: именно на них стоит Дюссельдорф. Поэтому первый этаж, максимально открытый городу, трактован как выточенная водой пещера. Еще одним мотивом оформления интерьера станут пласты горных пород.
 
Здание получит трехчастный объем, условно обозначающий три учреждения внутри: Немецкую оперу на Рейне, Музыкальное училище имени Клары Шуман и Музыкальную библиотеку. Его фасады покроют светлым натуральным камнем, хорошо сочетающимся с окружением. Окна задуманы двух форматов, крупные отмечают важные зоны – фойе, бар, ключевые репетиционные студии, а небольшие – просто дают доступ свету и свежему воздуху.
 
Главный зал на 1300 мест оформят в колорите существующего сейчас: древесина дуба и красная обивка кресел. Зал-студия получит стены теплого серого цвета и зеленые кресла. Крыша будет сочетать озелененные участки с солнечными батареями и техническим оборудованием.

Гамбургский государственный оперный театр – новое здание
Гамбургский государственный оперный театр – новое здание
© Yanis Amasri / BIG
Гамбургский государственный оперный театр – новое здание
Гамбургский государственный оперный театр – новое здание
© Yanis Amasri / BIG
Гамбургский государственный оперный театр – новое здание © Yanis Amasri / BIG
Гамбургский государственный оперный театр – новое здание
© Yanis Amasri / BIG
Гамбургский государственный оперный театр – новое здание © Yanis Amasri / BIG
Гамбургский государственный оперный театр – новое здание
© Yanis Amasri / BIG
Гамбургский государственный оперный театр – новое здание
Гамбургский государственный оперный театр – новое здание
© Yanis Amasri / BIG
Гамбургский государственный оперный театр – новое здание © Yanis Amasri / BIG
Гамбургский государственный оперный театр – новое здание
© Yanis Amasri / BIG
Гамбургский государственный оперный театр – новое здание © Yanis Amasri / BIG
Гамбургский государственный оперный театр – новое здание
© Yanis Amasri / BIG
Оперный театр в Дюссельдорфе – новое здание
Оперный театр в Дюссельдорфе – новое здание
© Mir/Snøhetta
Оперный театр в Дюссельдорфе – новое здание © Made by Mistake/Snøhetta/Hans-Joachim Wutheonow
Оперный театр в Дюссельдорфе – новое здание
© Made by Mistake/Snøhetta/Hans-Joachim Wutheonow
Оперный театр в Дюссельдорфе – новое здание © Landeshauptstadt Düsseldorf/Claus Langer
Оперный театр в Дюссельдорфе – новое здание
© Landeshauptstadt Düsseldorf/Claus Langer
Оперный театр в Дюссельдорфе – новое здание
Оперный театр в Дюссельдорфе – новое здание
© Mir/Snøhetta
Оперный театр в Дюссельдорфе – новое здание © Mir/Snøhetta
Оперный театр в Дюссельдорфе – новое здание
© Mir/Snøhetta
Оперный театр в Дюссельдорфе – новое здание © Mir/Snøhetta
Оперный театр в Дюссельдорфе – новое здание
© Mir/Snøhetta
Оперный театр в Дюссельдорфе – новое здание
Оперный театр в Дюссельдорфе – новое здание
© Mir/Snøhetta
Оперный театр в Дюссельдорфе – новое здание © Mir/Snøhetta
Оперный театр в Дюссельдорфе – новое здание
© Mir/Snøhetta
Оперный театр в Дюссельдорфе – новое здание © Mir/Snøhetta
Оперный театр в Дюссельдорфе – новое здание
© Mir/Snøhetta
Оперный театр в Дюссельдорфе – новое здание © Snøhetta
Оперный театр в Дюссельдорфе – новое здание
© Snøhetta
Оперный театр в Дюссельдорфе – новое здание © Snøhetta
Оперный театр в Дюссельдорфе – новое здание
© Snøhetta
Оперный театр в Дюссельдорфе – новое здание © Snøhetta
Оперный театр в Дюссельдорфе – новое здание
© Snøhetta