Форум «Немецкий язык»
© HENN
Форум расположится на площади Альтер-Мессплац, в районе Неккарштадт – через реку Неккар от центра Мангейма. Постройка будет одновременно ориентирована на площадь (с ее стороны появится доступная публике зона для пикников) и на воду, тем более что зеленая полоса вдоль реки сейчас благоустраивается. Так, именно на Неккар будет обращено остекленное пространство первого этажа для временных выставок, литературных чтений и «научных слэмов».
Форум «Немецкий язык»
© HENN
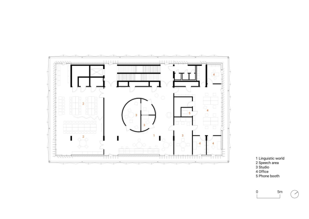
Выше запланированы три этажа постоянной экспозиции, которой займутся известные специалисты по выставочному дизайну Atelier Brückner. Посетители будут подниматься на лифте на четвертый этаж, а затем спускаться вниз, осматривая экспонаты. Бетонную конструкцию здания планируется открыть в интерьер: она разграничит зоны экспозиции, обозначенные как «языковые миры». Темами станут разнообразие немецкого, его трансформации и взаимоотношения с другими языками, лингвистические технологии, социальные аспекты его существования.
Форум «Немецкий язык»
© HENN
Кабинеты исследователей и администрации займут пространства на экспозиционных этажах, а самым верхним уровнем станет терраса на крыше, открытая для сотрудников и посетителей. Там также разместятся инженерные системы и солнечные батареи.
Форум «Немецкий язык»
© HENN
Снаружи здание закроют деревянные детали: панели и стоечно-балочная система, скрытая за жалюзи. Их в свою очередь защитит от воздействия атмосферы слой из прозрачной полимерной пленки ETFE (модули 6,3×8,1 м): остекления выше первого этажа в Форуме не будет.
Форум «Немецкий язык»
© HENN
Форум «Немецкий язык»
© HENN
Форум «Немецкий язык»
© HENN
