Описание предоставлено архитекторами
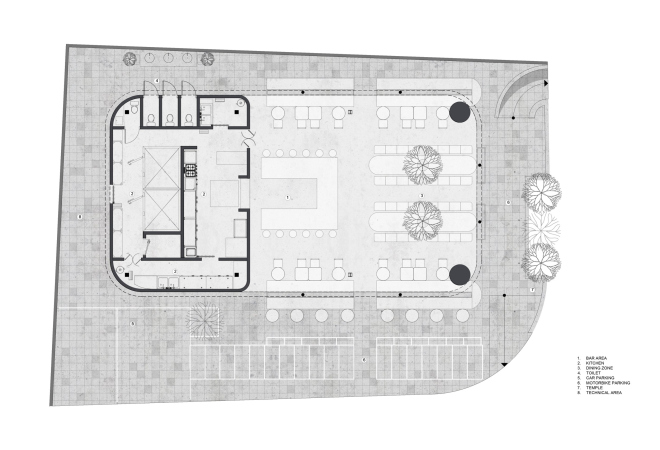
Участок находится на пересечении двух небольших улиц, среди аутентичных построек с придомовыми храмами для религиозных подношений, а также характерной для тропической зоны густой растительности, обрамленной паутиной электрокабелей, растянутых над дорогой. Такой богатый контекст подтолкнул к решению создать простую архитектурную композицию из чистых и масштабных геометрических форм. Здание стало безусловным акцентом и одновременно подчеркнуло окружающие постройки, мелкие декоративные элементы и растения.
Большое внимание уделено взаимодействию архитектурных форм со светом. Движению и влиянию солнечного света подчинены круглые колонны под массивным навесом, рифленые фасады с карнизами, консольные наружные вывески, а также почитаемое балийцами дерево франжипани, которое отбрасывает утренние тени на главный фасад.
Для вечернего освещения выбрана концепция «изнутри наружу»: с наступлением темноты здание почти растворяется, только легкий направленный свет тактично подчеркивает основные формы и элементы, создавая фон для теплого внутреннего свечения основного зала ресторана.

