Описание предоставлено архитекторами
Одноэтажный дом располагается на небольшом участке, в окружении плотной застройки коттеджного поселка. Поэтому одна из задач, которую решали архитекторы, – обеспечить приватность и одновременно достаточное количество света и пространства.
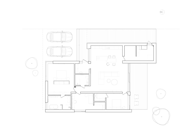
Дом состоит из двух прямоугольных блоков, зажатых между пластинами навеса, террасы и почти сплошной белой стены-ширмы. Из основного объема, где располагаются общие зоны и спальни, выдвинут технический блок с котельной и прачечной – его глухая стена видна со стороны террасы. Отделка фасадов – штукатурка и натуральное дерево.
Дом в Ростове
© Студия архитектуры и дизайна ТЧК
Дом в Ростове
Фотография © Михаил Чекалов / предоставлена Студия архитектуры и дизайна ТЧК
Дом в Ростове
Фотография © Михаил Чекалов / предоставлена Студия архитектуры и дизайна ТЧК
Технический блок, фронт кухни, а также паркинг ориентированы на забор и стену соседнего дома. Паркинг располагается под массивным навесом, образованным продолжением кровли. Эту консоль с большим выносом поддерживает всего одна опора, встроенная в забор. Пространство напоминает «открытую» комнату с «коридором», ведущим в сад.
Дом в Ростове
Фотография © Михаил Чекалов / предоставлена Студия архитектуры и дизайна ТЧК
Дом в Ростове
Фотография © Михаил Чекалов / предоставлена Студия архитектуры и дизайна ТЧК
Дом в Ростове
Фотография © Михаил Чекалов / предоставлена Студия архитектуры и дизайна ТЧК
В глубине навеса располагается вход в дом. Из прихожей жильцы попадают в просторную кухню-гостиную, из которой просматривается внутренний двор. Раздвижная система в кухне-гостиной помогает стереть границы между улицей и домом.
Дом в Ростове
Фотография © Михаил Чекалов / предоставлена Студия архитектуры и дизайна ТЧК
Дом в Ростове
Фотография © Михаил Чекалов / предоставлена Студия архитектуры и дизайна ТЧК
В интерьере преобладают спокойные цвета. Обволакивающие серые стены создают атмосферу спокойствия и уюта. Основную гамму дополняют текстуры камня и натурального дерева, вторящего материалам отделки. Большие панорамные окна в комнатах пропускают естественный свет и создают ощущение простора и свободы.
