Клубный дом «Артхаус»
© Архитектурная мастерская Мамошина
Клубный дом «Артхаус»
© Архитектурная мастерская Мамошина
Дом, таким образом, спрятан во дворах и окружен: с одной стороны его «обнимает» все еще недостроенный МДТ, с другой – типография имени Ивана Федорова, к которой здание подходит так близко, что дворик-курдонер приобретает черты классического петербургского «колодца». Поскольку дом не участвует в формировании улицы и не вступает в зависимость от исторического контекста, архитекторы могли позволить себе больше смелых решений. Что они, собственно, и сделали, придерживаясь однако линии «петербургскости» и заодно выстраивая диалог со зданием театра.
Михаил Мамошин
Сутью эстетического решения фасадов является органичное включение дома в рядовую застройку исторического района Семенцы. Это интровертная петербургская архитектура, созданная как симбиоз традиций, эстетики и технологий текущего момента. Мы обратились к петербургскому регионализму – архитектуре рядовой кирпичной застройки города и, переосмысливая традицию, привнесли дух современности в городской контекст.
Клубный дом «Артхаус». Вид сверху
Фотография © СК «Красная Стрела» / предоставлена Архитектурная мастерская Мамошина
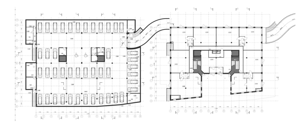
Дом получил симметричную композицию и компактный П-образный план. Небольшой дворик, как уже говорилось, обращен к типографии и благоустроен «по-петербургски»: с фонарями, часами, скамейками из чугуна. Со стороны Звенигородской улицы располагается извилистая «дорожка» въезда в паркинг, который вписан в общую композицию с помощью «слюды» поликарбоната, близкого по цвету к акцентной кровле.
Клубный дом «Артхаус». Вид двор. Детали металл.
Фотография © СК «Красная Стрела» / предоставлена Архитектурная мастерская Мамошина
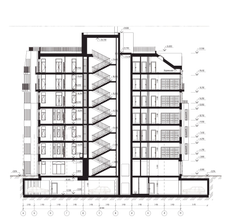
Дом классически трехчастен. Цокольный этаж, решенный в виде торговой галереи, проявлен гранитной облицовкой и отделен широким карнизом с двойным поясом. Здесь располагаются коммерческие помещения, в основном офисы.
На сером граните покоятся три кирпичных этажа, поднятых ровно до отметки здания типографии. Помимо самого материала отделки эту часть украшают трапециевидные эркеры и крайне сдержанный декор: кирпичи над окнами поставлены «на ложок», образуя плоские перемычки – подобия сандриков; на той же линии в простенках помещены небольшие квадратные нишки, напоминающие то ли древнерусские «ширинки», то ли элементы декора из набора Art Nouveau, то ли барочные «уши», отставшие от оконных обрамлений.
Клубный дом «Артхаус». Вид угловой
Фотография © СК «Красная Стрела» / предоставлена Архитектурная мастерская Мамошина
Линия межэтажных тяг подчеркнута тем же материалом, который используется на кровле, только на контрасте с кирпичом и гранитом он получает неоновое «звучание». Эта деталь призвана собирать воедино разные элементы дома, а с общих ракурсов она воспринимается как волна, идущая от северного сияния. Эффект должны были усилить вкрапления патины в квадратных «ширинках», но эта небольшая деталь осталась нереализованной.
Клубный дом «Артхаус». Вид двор.
Фотография © А. Мартовицкая / предоставлена Архитектурная мастерская Мамошина
Наконец, венчает дом «корона»: три полноценных этажа и мансардный уровень собраны в щипцы, благодаря своей форме и цвету напоминающие кристаллы. «Стрелки» зубцов усилены линиями эркеров кирпичного уровня, а небольшие шестигранные балконы с квадратной сеткой ограждений воспринимаются как вставки из драгоценных камней. Эта часть дома, как и кровля, облицована алюминием Cladding Solutions, окрашенным по технологии coil coating* в цвет патинированной меди. Цвет патины – еще одна петербургская отсылка: она напоминает о памятниках и крышах города в целом, а в частности – о металлических конструкциях, которые использовал модерн, от ферм Витебского вокзала до витиеватого убранства дома купцов Елисеевых. Этот же цвет характерен и для сеток, которами затянуты строительные леса у подновляемых домов.
Клубный дом «Артхаус». Основной вид
Фотография © А. Мартовицкая / предоставлена Архитектурная мастерская Мамошина
Как уверяют авторы, дом продолжает архитектурную тему, заданную в проекте новой сцены МДТ. Однако пока что перекличка чувствуется только в двускатных завершениях. Дом мельче, дробнее и ажурнее театра, рядом с ним он напоминает сундучок с сокровищами.
Клубный дом «Артхаус». Кровля
Фотография © СК «Красная Стрела» / предоставлена Архитектурная мастерская Мамошина
Мастерская Михаила Мамошина увлеченно работает с разными стилями, черпая вдохновение в широком диапазоне от Ивана Билибина до Якова Чернихова. «Артхаус» можно отнести к разделу «сказочных» домов, в которых классические и знакомые элементы соединяются с современностью и предлагают новые, невиданные раньше образы.
