Конкурс был объявлен в апреле по инициативе Вытегорского историко-этнографического музея в рамках проекта «Вытегорье – корабельная сторона», который должен способствовать развитию туризма на этой исторически связанной с судоходством и судостроением территории.
В новом здании музея «Водные пути Севера» планируется представить постоянную выставку, которая познакомит с историей крупнейшей пристани Мариинской водной системы. Центральным экспонатом станет обнаруженная в 2018 на берегу Онежского озера вытегорская ладья XVII века, требующая специальных условий хранения.
Всего на суд жюри было представлено восемь прошедших предварительный отбор работ. Лучшим был признан проект консорциума «Архатака». Авторы получили денежный приз в размере 600 000 рублей. Предполагается также возможность участия авторов выбранного для реализации проекта (сейчас работы призеров вынесены на общественное обсуждение) в дальнейшей разработке документации.
Узнать о конкурсе подробнее и ознакомиться со списком жюри можно здесь. А мы представляем три проекта, занявшие призовые места.
Первое место
АрхатакаМузейный комплекс «Водные пути Севера». Интерьер главного экспозиционного зала
© Архатака
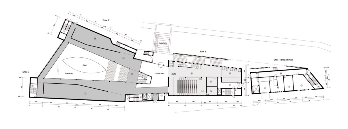
Для музея выбран по-северному суровый и сдержанный образ деревянного ковчега – вдохновением послужила собственно вытегорская ладья, а сам экспонат архитекторы поместили в «носовую» часть здания. Фасады из грубоотесанных бревен служат отсылкой к древнерусскому зодчеству; единственное окно, обращенное на первое здание музея, становится символом преемственности поколений. Парящая смотровая площадка напоминает рулевое весло, а венчает ее корабельный колокол.
Помимо музея в здании запланированы библиотека, событийный зал, лекторий, исследовательский центр и другие функциональные зоны. Все выставочные помещения «пронзает» протяженный пандус, движение посетителей по которому продумано с учетом противоэпидемических требований.
Второе место
МэралСтудиоМузейный комплекс «Водные пути Севера»
© Meralstudio
Архитекторы черпали образы из исторических и традиционных построек Вытегры и окрестностей. Отражение в проекте также нашли местные укрепительные водные сооружения, заборы, изгороди, мосты – авторы стремились максимально передать дух Севера.
Каждому из одиннадцати экспозиционных залов решено было придать облик деревянного шлюза, а «нанизывание» залов на продольную ось здания позволяет раскрыть их на воду, в очередной раз подчеркнув тематику музея и неслучайность его расположения.
Третье место
Владимир БельскийМузейный комплекс «Водные пути Севера»
© Владимир Бельский
Комплекс состоит из четырех прямоугольных блоков с вальмовыми крышами – в соответствии с традиционной формой и масштабом зданий Вытегры. Два блока заняты экспозиционными залами, третий – общественными помещениями, а в четвертом размещается фондохранилище. Главный экспонат – ладья – «парит» в трехуровневом пространстве между выставочными блоками, благодаря чему рассмотреть ее можно со всех сторон.
