В 2017-2018 годах конструктив и фасады здания были тщательно отреставрированы – проект разработала мастерская Рафаэля Даянова, а работы оплатила ГК «Балтийская коммерция», которая выкупила подстанцию и построила рядом ЖК «Мендельсон». Предполагалось, что здание ТЭЦ приспособят под общественное пространство и передадут городу, но договориться сторонам так и не удалось, поэтому памятник вновь выставлен на торги. Основных вариантов приспособления было два: Санкт-Петербургский музей архитектуры и альтернативная площадка Государственной академической капеллы. Проект концертного зала на 800 человек подготовило бюро «Хвоя».
Концертный зал «Мендельсон»
© ХВОЯ
Сперва кажется, что превратить здание, формы которого вылепливались под определенную технологическую функцию, в концертный зал – выполнимая задача. Но достаточно взглянуть на внутренние помещения – нам это удалось благодаря он-лайн экскурсии – чтобы убедиться в их невероятной для утилитарного помещения эстетичности: дух захватывает даже при взгляде на совершенно пустые пространства. «Хвоя» во многом сохраняет эту пустоту и оставляет на переднем плане Мендельсона, привнося оттеняющие штрихи.
Концертный зал «Мендельсон»
© ХВОЯ
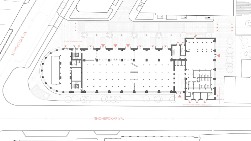
Зрительный зал и сцена располагаются в главном прямоугольном объеме здания, где раньше находился машинный зал. Благодаря огромным окнам и фонарям в кровле помещение залито светом, а бетонные элементы конструктива и перевернутые пирамиды баков для топлива уже сами по себе делают интерьер интригующим. «Хвоя» дополняет его лишь теплым деревом и ярким красным. Плавная дуга амфитеатра, а также подвешенные к потолку гнутые деревянные элементы напоминают паруса – что может быть отсылкой как к романтичному, хотя бы в теории, и сугубо петербургскому празднику выпускников, так и к расхожему сравнению ТЭЦ с «кораблем, который тянет за собой все производство».
В цилиндрах «носовой» части здания, где раньше находилось отделение водоподготовки, «Хвоя» располагает помещения оркестра. В «хвосте», где был турбинный зал, размещается малая сцена. В примыкающем вертикальном блоке появляются новые лифты и лестница, которые обслуживают обе сцены и все зрительские помещения. На первом уровне здания свободно умещаются кассы, вестибюль, фойе, гардероб и кафетерий. Между концертным залом и ЖК «Мендельсон» появляется променад с разнообразными узорами мощения.
Своей работой «Хвоя», кажется, случайно ответила на вызов, брошенный Владимиром Маяковским. И хотя проект, вероятно, не будет осуществлен, и вместо академического оркестра «Красное знамя» примет креативные индустрии, – он лишний раз подчеркивает, что в Петербурге была выдающаяся архитектура и после XIX века.
Концертный зал «Мендельсон»
© ХВОЯ
