«Я очень люблю закат. Пойдем посмотрим, как заходит солнце».
Антуан де Сент-Экзюпери. Маленький принц
Участок расположен у границы дачного поселка в пригороде Саратова, застроенном типовыми щитовыми домиками – двускатными, с мансардой, обшитыми светлой вагонкой. Spirin architects создали здесь дом-антагонист: черный металл фасада, обратный скат кровли. В поселке, известном среди местных жителей как «Гарлем», это кажется смелым решением.
Одним из главных критериев при выборе участка было место. Заказчики, Антон и Ирен, приезжали сюда любоваться закатами задолго до того, как решили купить участок. Так что важен был вид, достаточно просторный участок и архитектура дома – «не такого, как у всех». На всем остальном пришлось жестко экономить, начиная с размера постройки, площади остекления, технологий и материалов – до авторского надзора. Строили из SIP-панелей на каркасе из бруса сечением 100 х 50 мм, с утеплением АкустикKnauf. Подробно документировали процесс в инстаграме, бравируя тегом #какойувасстранныйдом. Все работы, включая внутреннюю отделку, заняли чуть больше года. Нестандартные V-образные, которые пришлось переделывать в процессе строительства, в конечном счете пригодились в хозяйстве для сбора дождевой воды.
Как фасад, так и кровля покрыты матовым темно-серым профлистом, с которым архитекторы Евгений и Марина Спирины работают не впервые – похожим образом решен спроектированный ими культурного центра музея «Дом со львом». Впрочем, центр традиционнее – он похож на увеличенный в размерах деревенский дом, темный профлист в нем больше напоминает о старых досках. В доме Ратниковых металлическая облицовка, напротив, работает на контраст, добавляя брутальности, сходства с домами-контейнерами и аллюзий на расположенный в долине танкодром, – из-за его соседства в «колючем» силуэте может померещиться то ли противотанковый ёж, то ли мушка наведения. К слову, заказчики, знакомясь с архитекторами, сообщили, что у них есть ружье. Глухая технократичность металла, впрочем, оттенена светлой лиственницей, подчеркивающей, что дом – живой и теплый.
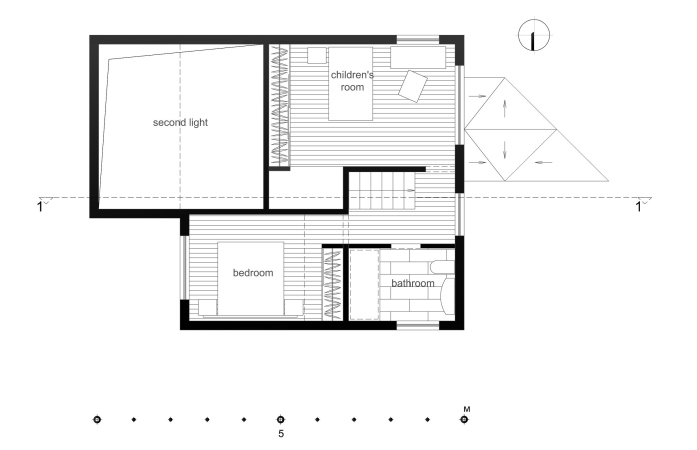
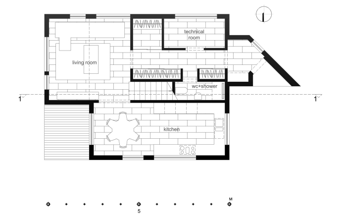
Лиственница появляется и внутри – где сочетается с белыми стенами, контрастными по отношению к темным фасадам. По словам архитекторов, работая со структурой дома они вдохновлялись ячейками Стройкома Моисея Гинзбурга. Так что высота гостиной получилась полуторной, хотя витраж по высоте не во всю стену. Зато окна гостиной, как и кухни, обращены на закат. Аналогии с двадцатыми представляются несколько условными: с переносом в чистое поле и в жанр частного строительства ячейка осталась компактной, 108 м2, но стала, конечно, менее экономной с точки зрения объема: здесь не может быть переноса общественных функций в коридоры, да и кухня вполне современного размера. Хотя, если говорить об авангарде, форма может напомнить экспрессионизм мельниковского толка, а аскетизм интерьеров и подобие ленточных окон со вставками дерева тяготеют к функционализму. Но надо признать, что само по себе сочетание высокого «воздушного кармана» гостиной с двухъярусными спально-техническими зонами для загородного строительства в наше капиталистическое время – скорее правило для частного дома.
В 2019 дом стал одним из 30 финалистов премии журнала «Проект Россия» в категории частных домов и стал номинантом премии «Золотой Трезини».
