Описание предоставлено архитекторами
Концепция бюро 3 BY THREE стала победителем конкурса, который инициировало архитектурное бюро Bondar Architect. Участок не имел целевого спортивного назначения, но рассматривался как перспективная территория для формирования новой спортивной и культурной точки притяжения города. Конкурс был направлен на поиск свежего взгляда и разнообразных архитектурных решений.
Падел-центр. Общий вид
© 3 BY THREE
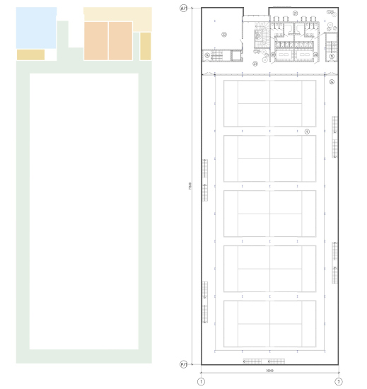
Падел-центр. Схема генерального плана
© 3 BY THREE
Команда 3 BY THREE предложила интерпретацию современной спортивной инфраструктуры с учетом локального контекста и городской среды. В основе проекта лежит сочетание функциональности, экологичности и архитектурной выразительности. Концепция строится на легкости и открытости: здание состоит из двух объемов, объединенных светопрозрачными стенами из поликарбоната, что обеспечивает естественное освещение внутренних пространств и придает архитектуре визуальную воздушность. Такой прием позволяет снизить энергозатраты и делает спортивную среду комфортной.
Падел-центр. Общий вид
© 3 BY THREE
Падел-центр. Схема фасадов
© 3 BY THREE
Первый объем включает пять падел-кортов с консольным балконом для зрителей. Консоль не только формирует дополнительное функциональное пространство, но и задает выразительную пластику фасада. Второй объем – двухэтажный блок с лобби, раздевалками, административными помещениями, магазинами и эксплуатируемой кровлей, которая используется для занятий йогой и другими активностями на открытом воздухе. Прозрачные и полупрозрачные фасады создают эффект «открытой сцены», делая спортивные процессы частью городской жизни и подчеркивая динамику комплекса.
Падел-центр.
© 3 BY THREE
Территория центра спроектирована как удобная и дружелюбная: предусмотрена парковка, велосипедная инфраструктура, пешеходные маршруты, зоны отдыха с зелеными насаждениями и скамейками. Особое внимание уделено интеграции в городскую ткань – витражные фасады первых этажей формируют визуальные связи со средой, а магазин велопроката со складными воротами-трансформерами становится символом активности и вовлеченности.
Падел-центр. Зона кортов
© 3 BY THREE
Падел-центр. Раздевалка
© 3 BY THREE
Комплекс объединяет спортивные, коммерческие и общественные функции, превращаясь в новый центр притяжения для жителей и гостей города. Он задуман не только как спортивный объект, но и как современное общественное пространство, способное формировать новые сценарии досуга, общения и культурных событий, тем самым расширяя значение спорта в повседневной жизни.
Падел-центр. Зона ресепшн
© 3 BY THREE
