Офис vs галерея

Градсовет Петербурга рассмотрел проект многоэтажной галереи на Выборгской набережной и нашел, что она скорее будет использоваться как офисное здание, которому не хватит парковочных мест. Критику также вызвала арка главного входа и отсутствие реакции на соседнее здание мануфактуры, построенное по проекту Василия Косякова.

mainImg
Нередкий предмет обсуждения на заседании градостроительного совета – жилой комплекс, который притворяется гостиницей, чтобы избежать соблюдения норм по количеству озеленения, парковочных мест и социальной инфраструктуры. Судя по реакции экспертов, в начале августа была представлена новая вариация этого сюжета – многоэтажный арт-центр, который, вероятнее всего, трансформируется в офисное пространство.
МФЦ Артцентр
© Global EM / предоставлено пресс-службой КГА
Руководитель проекта Тимур Гришков рассказал, что группа компаний «Глобал ЭМ» владеет зданием на Выборгской набережной, 51, с 2005 года, часто его ремонтирует, а еще любит искусство – среди руководства есть профессиональные коллекционеры. Поэтому постепенно сформировалась идея заменить трехэтажную постройку 1952 года на многофункциональный арт-центр: он закончит фронт набережной, предоставит площади для экспонирования и станет достойным представительством компании. 
МФЦ Артцентр. Ситуационный план
© Global EM / предоставлено пресс-службой КГА
МФЦ Артцентр
© Global EM / предоставлено пресс-службой КГА
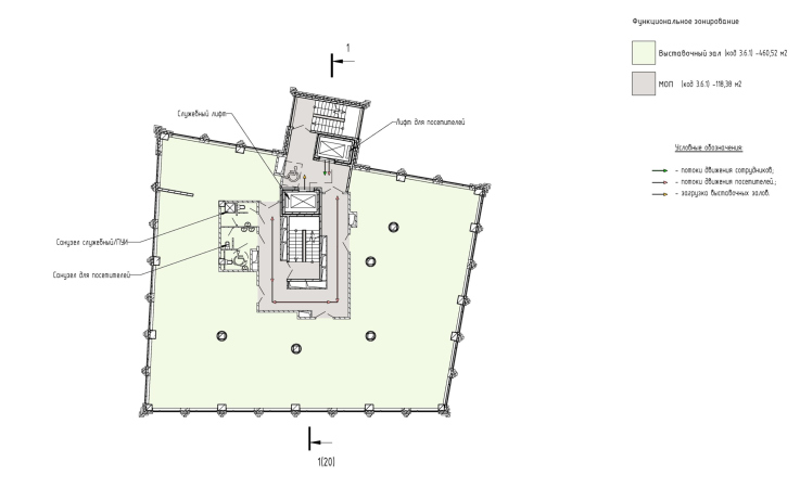
Главный архитектор проекта Ольга Фролова пояснила структуру здания: первый этаж займет вестибюль и ресторан, второй предназначен для вспомогательных помещений, с 3 по 9 располагаются выставочные залы, а на 10 – офисы с выходом на террасу. Высота здания не превышает предельно допустимые на участке 33 метра. В подземном уровне есть место для 16 машин. Главный вход, расположенный на пересечении улиц, акцентирован стрельчатой аркой высотой в три этажа. Фасады украшает объемная кирпичная кладка, озеленение осуществляется за счет деревьев в кадках. 
МФЦ Артцентр
© Global EM / предоставлено пресс-службой КГА
МФЦ Артцентр
© Global EM / предоставлено пресс-службой КГА
МФЦ Артцентр
© Global EM / предоставлено пресс-службой КГА
Эксперты были настроены по отношению к проекту скептически. Прежде всего, вызвала сомнения функция здания: быстрые расчеты показали, что на одного посетителя приходится 150 м2 площади, а обслуживать девять выставочных этажей будет 15 работников – такие цифры выглядят нереалистичными. Евгений Герасимов указал и на другие странности: избыточное для галереи количество санузлов, недостаточно высокие потолки, отсутствие поверхностей для развески. Большая вероятность того, что галерея без парковочных мест в будущем переквалифицируется в офис, приведет к транспортному коллапсу в этой части набережной. 
  • zooming
    1 / 7
    МФЦ Артцентр. Разрез
    © Global EM / предоставлено пресс-служьой КГА
  • zooming
    2 / 7
    МФЦ Артцентр. План подземной автостоянки
    © Global EM / предоставлено пресс-служьой КГА
  • zooming
    3 / 7
    МФЦ Артцентр. План 1 этажа
    © Global EM / предоставлено пресс-служьой КГА
  • zooming
    4 / 7
    МФЦ Артцентр. План 2 этажа
    © Global EM / предоставлено пресс-служьой КГА
  • zooming
    5 / 7
    МФЦ Артцентр. План 3 этажа
    © Global EM / предоставлено пресс-служьой КГА
  • zooming
    6 / 7
    МФЦ Артцентр. План 4-9 этажа
    © Global EM / предоставлено пресс-служьой КГА
  • zooming
    7 / 7
    МФЦ Артцентр. План 10 этажа
    © Global EM / предоставлено пресс-служьой КГА
Не меньше возмущения вызвала «нереакция» проекта на соседство с объектом культурного наследия – Николаевской мануфактурой, построенной по проекту Василия Косякова. По мнению Сергея Орешкина, автора соседнего с арт-центром здания Gregory cars, активный треугольный фронтон мануфактуры и угловое место требуют «события, реагирующего на контекст», а не нейтрально-утилитарного здания.
МФЦ Артцентр
© Global EM / предоставлено пресс-службой КГА
МФЦ Артцентр
© Global EM / предоставлено пресс-службой КГА
МФЦ Артцентр. Развертка фасадов по Выборгской набережной
© Global EM / предоставлено пресс-служьой КГА
В отношении, собственно, архитектуры авторам также дали несколько рекомендаций: сделать симметричным уровень террасы и поработать с аркой – например, добавить ей устойчивости за счет массы стены или дополнить барельефами.  
МФЦ Артцентр
© Global EM / предоставлено пресс-службой КГА
МФЦ Артцентр
© Global EM / предоставлено пресс-службой КГА
МФЦ Артцентр
© Global EM / предоставлено пресс-службой КГА
Итоги голосования станут известны позднее. 
 

19 Августа 2024

Похожие статьи
Маяк славы
Градостроительный совет Петербурга рассмотрел эскизный проект 40-метровой стелы, которую бюро Intercolumnium предлагает разместить в центре мемориального комплекса, посвященного Ленинградской битве. Памятный знак состоит из шести «лепестков», за которыми прячется световой столп. Эксперты высказали ряд рекомендаций и констатировали недостаточное количество материалов, чтобы судить о реализуемости подобного объекта.
Холстом и маслом
В галерее «Солодовня» – новой точке на культурной карте Москвы – открылась выставка «Холст, масло». Это выставка-знакомство: она демонстрирует посетителю и новое пространство в историческом здании, и разнообразие коллекции. Куратор Павел Котляр разделил картины русских художников на контрастные пары, что усилило каждое высказывание, а архитектор Полина Светозарова искала способы сближения художников друг с другом и с залами галереи. Главным «связующим» стал холст – сам по себе очень выразительный элемент.
Пространство посткубизма
Сергей Чобан и Александра Шейнер, Студия ЧАРТ, создали для выставки «посткубистической» скульптуры Беатрисы Сандомирской – автора талантливого и мейнстримного, но почти не известного даже историкам искусства – пространство, подобное ее пластике: крепко сбитое, уверенно-стереометрическое и выразительное подспудно. Оно круглится, акцентируя крупный объем скульптуры, обнимает собой зрителя и ведет его от перспективы к перспективе, от «капища» к «Мадонне».
Анфилада архетипов
Выставка «Архетипы авангарда» в новом здании Третьяковской галереи предлагает посмотреть на творчество русских художников начала XX века под особым ракурсом: экспозиция проводит параллель между художественной революцией и психоанализом. С помощью 12 архетипов кураторы показывают, что за дерзкими экспериментами Малевича, бунтом Родченко и детской искренностью Пиросмани стоят живые люди с узнаваемыми чертами. Архитектура выставки от бюро ХОРА делает идею осязаемой.
Площадь угасшей звезды
«Студия 44» представила на Градостроительном совете проект развития бизнес-центра Leader Tower, известного как первый небоскреб Санкт-Петербурга. Площадь Конституции, где располагается комплекс, в 1930-е годы задумывалась как важный городской ансамбль, но не была завершена, получив достаточно хаотичный облик. Попытка восстановить целостность и сбить масштаб застройки встретила преимущественно одобрение экспертов.
Гипертекст в пространстве
В рамках выставки «Что имеем (не) храним» и Сергей Чобан, и Музей архитектуры, и студия ЧАРТ экспериментируют с экологичным подходом к экспозиционному дизайну, перекличкой тем и даже с публицистическими размышлениями о необходимости сохранения модернизма, корнях современной архитектуры и рождении идей. Все это делает камерную выставку с легким прозрачным дизайном новаторской. Элементы все, как «телесные», так и идейные – знакомы, а вот их сочетание – ново.
Священная роща
Петербургский Градостроительный совет во второй раз рассмотрел проект реконструкции крематория. Бюро «Сириус» пошло на компромисс и выбрало другой подход: два главных фасада и торжественная пешеходная ось сохраняются в параметрах, близких к оригинальным, а необходимое расширение технологии происходит в скрытой от посетителей западной части здания. Эксперты сошлись во мнении, что теперь проект можно поддержать, но попросили сберечь сосновую рощу.
Фокус синергии
В Липецке прошел фестиваль «Архимет», продемонстрировавший новый формат сотрудничества архитекторов, производителей металлических конструкций и региональных властей для создания оригинальных фасадных панелей для программы реконструкции местных школ. Рассказываем о фестивале и показываем работы участников, среди которых ASADOV, IND и другие.
Б – Бенуа
В петербургском Манеже открылась выставка «Все Бенуа – всё Бенуа», которая рассказывает о феномене художественной династии и ее тесной связи с Петербургом. Два основных раздела – зал-лабиринт Александра Бенуа и анфиладу с энциклопедической «Азбукой» архитектор Сергей Падалко дополнил версальской лестницей, хрустальным кабинетом и «криптой». Кураторы же собрали невероятную коллекцию предметов – от египетского саркофага и «Острова мертвых» Бёклина до дипфейка Вацлава Нижинского и «звездного» сарая бюро Меганом.
Ход курдонером
Бюро Intercolumnium представило на Градостроительном совете проект жилого комплекса, который заменит БЦ «Акватория» на Выборгской набережной. Эксперты отметили высокое качество работы, но с сомнением отнеслись к трем курдонерам, а также предложили смягчить контраст фасадов, обращенных к набережной и Кантемировскому мосту.
Тренды выставки «Мебель-2025»: комфорт по-русски
Выставка «Мебель-2025» прошла с 24 по 27 ноября 2025 на новой площадке в МВЦ «Крокус Экспо» и объединила 741 компанию из 8 стран. Экспозиции российских компаний продемонстрировали несколько важных тенденций в сфере общественных и жилых интерьеров.
Ответы провинции
Как нет маленьких ролей, так нет и скучных тем: бюро «Метаформа» совместно с командой музея-усадьбы «Ясная Поляна» придумали и открыли в городке Крапивна Музей Земства и градостроительной истории, куда обязательно стоит доехать, если вы оказались в Туле. В стенах «дома с колоннами» разворачивается энциклопедия провинциальной жизни, в которой нашлось место архитектуре и благоустройству, женскому образованию и инфраструктуре, дорогам и почтовым маркам Фаберже, а также Дэниэлу Рэдклиффу и Тонино Гуэрра. Какие средства и подходы сделали эту энциклопедию увлекательной – рассказываем в нашем материале.
Посыпать пеплом
Еще один сюжет с прошедшего петербургского Градостроительного совета – перестройка крематория. Авторы предложили два варианта, учитывающих сложную технологию и новые цифры. Эксперты сошлись во мнении, что дилемма выбора ложная, а зданию необходим статус памятника и реставрация.
Ной Троцкий и залетный биотек
На прошлой неделе Градостроительный совет Петербурга рассмотрел очередной крупный проект, инициированный структурами «Газпрома». Команда «Спектрум-Холдинг» планирует в три этапа преобразить участок серого пояса на Синопской набережной: сначала приспособят объекты культурного наследия под спортивный и концертный залы, затем построят гостинично-офисный центр и административное здание, а после снизят влияние дымовых труб на панораму. Эксперты отнеслись к новой архитектуре критично.
Непостижимый Татлин
Центр «Зотов» отметил свое трехлетие открытием масштабной выставки «Татлин. Конструкция мира», приуроченной к 140-летию со дня рождения художника Владимира Татлина и демонстрирующей не столько большую часть его уцелевшего наследия, сколько величину и непостижимость его таланта.
Нейронка архитектора
Кто только не говорит об искусственном интеллекте. Наконец-то он вошел в нашу жизнь, и уже год, или два как архбюро используют возможности ИИ. Иначе отстанешь. И обсуждают его, обсуждают. Публикуем небольшой отчет от круглом столе, посвященном ИИ. Он был организован на фестивале Зодчество архитекторами KPLN.
Игра реальности и воображения
Фестиваль «Открытый город» устоялся в своих форматах и приобрел черты повторяемости. Но изучить там есть что, да и для образования он, надо думать, полезен. Не фестиваль ли стал «драйвером» для многочисленных студенческих летних практикумов, все более распространенных? Показываем, как оформлены результаты воркшопов.
Глубокие корни архитектурного авангарда
Выставка «...Веснины. Начало» в Музее архитектуры дает совершенно нетривиальный взгляд на историю трех братьев-авангардистов. Стартуя от города Юрьевца, где они родились, выставка показывает, преимущественно, первую, раннюю часть их работ. О которой многие не знают, а кто-то не думает. Поэтому интересно.
Коридор между мирами
Зодчество 2025 ярко и разнообразно. До того, что создается впечатление пребывания разных аудиторий в разных «слоях»: они соседствуют, не особенно пересекаясь. И слава Богу. Кстати, о божественном: если смотреть на экспозицию в целом, кажется, впервые за историю фестиваля религиозная архитектура занимает на нем какое-то исключительное, фантастически объемное место. Смотрите и читайте наш фоторепортаж с фестиваля.
Такая архитектурная игра
Вчера в Петербурге открылся – второй по счету и обновленный – фестиваль Архитектон. Он рассчитан на целых 10 дней, что для архитектурного фестиваля прямо удивительно. Проходит в Манеже; его тема – Взаимодействие архитектурного цеха с простыми горожанами. Что делается довольно задорно, но в то же время по-питерски сдержанно и элегантно. Экспозиция состоит из 5 выставок, каждая их которых могла бы «потянуть» на отдельный проект. Рассказываем и показываем, что и как смотреть на Архитектоне.
Песнь совриска и пламени
В минувшие выходные в Выксе торжественно открыли пересобранную на новом месте водонапорную башню 1930-х шуховской решетчатой конструкции, две выставки и «детский технопарк». Развиваясь с 2011 в формате фестиваля современного искусства, город в последние годы заметным образом берет «новую планку»: не забывая о совриске, строит детский образовательный центр и университет, планирует вдвое большие вложения в инфраструктуру. Попробовали суммировать все разноплановые наблюдения, от выставок до завода, в формате репортажа. Что прекрасно и чего не хватает?
Модель многоуровневой жизни
Показываем отчет о круглом столе Арх Москвы 2025, посвященном высотному строительству. Он вполне актуален: опытные градо- и башне-строители сошлись на том, что высокие дома стали нормой, и пора переходить от «гвоздиков в панораме» к целым разновысотным и разноуровневым мегаструктурам. Ну, а как иначе?
Краеугольный храм
В московском Музее архитектуры на днях открылась выставка, посвященная всего одному памятнику средневековой русской архитектуры. Зато какому: Георгиевский собор Юрьева-Польского это последний по времени храм, сохранившийся от домонгольского периода. Впрочем, как сказать сохранившийся... Это один из самых загадочных и в то же время привлекательных памятников нашего средневековья. Которому требуется внимание и грамотная реставрация. Разбираемся, почему.
У лесного пруда
Еще один санаторный комплекс, который рассмотрел Градостроительный совет Петербурга, находится недалеко от усадьбы «Пенаты». Исходя из ограничений, связанных с площадью застройки на данной территории, бюро «А.Лен» рассредоточило санаторно-курортные функции и гостиничные номера по 18 корпусам. Проект почти не обсуждался экспертами, однако коэффициент плотности все же вызвал сомнения.
Санаторий в стилях
Градсовет Петербурга рассмотрел проект реконструкции базы отдыха «Маяк», которая располагается на территории Гладышевского заповедника в окружении корабельных сосен. Для многочисленных объектов будущего оздоровительного комплекса бюро Slavyaninov Architects предложило использовать разные стили и единый материал. Мнение экспертов – в нашем репортаже.
По два, по три на ветку. Древолюция 2025
Практикум деревянной архитектуры, упорно и успешно организуемый в окрестностях Галича Николаем Белоусовым, растет и развивается. В этом году участников больше, чем в предыдущем, а тогда был рекорд; и поле тоже просторнее. Изучаем, в какую сторону движется Древолюция, публикуем все 10 объектов.
Звёздный путь
Большие архитектурные фестивали отмеряют, так или иначе, историю постсоветской действительности. Архстояние, определенно, среди них, а юбилейное – особенно. Оно получилось крупным, системным высказыванием, во многом благодаря силе воли куратора этого года Василия Бычкова. Можно его даже понять, в целом, как большой объект, сооруженный, при участии многих коллег, в том числе архитекторов-звезд, в лесу арт-парка Никола-Ленивец – авторства инициатора и бессменного организатора Арх Москвы. Изучаем слои смыслов, виды высказываний – в этот раз они лучше, чем раньше, раскладываются «по полочкам».
Со-общение
В Ruarts Foundation – выставка «Сообщение» с подзаголовском «Другая история фотографии». Она тут изложена честно, «от дагеротипов» до нейронок, – как развитие, так и разрывы исторической ленты подчеркнуты дизайном экспозиции от Константина Ларина и Арсения Бекешко. А вот акценты, как водится, расставлены так, чтобы хронологию «остранить» и превратить в выставку, которая сама по себе произведение.
МАРШоу: разложено по полочкам
Новая выставка МАРШоу превзошла все предыдущие. Она поэтична, материальна, насыщенна, разнообразна – но еще и структурирована, в буквальном смысле многослойна и красива. Сами авторы признают, что вряд ли еще лучше получится когда-нибудь. Мы же с оптимизмом смотрим в будущее и изучаем выставку.
Технологии и материалы
Мегалиты на перспективу
В MIT разработали коллекцию бетонных элементов – они совмещают функции мебели и ограждающих конструкций. Объекты – несмотря на размеры и массу – можно легко перемещать и поворачивать, адаптируя пространство под меняющиеся потребности домовладельцев. Срок службы каждого из девяти предметов серии – 1000 лет.
Материализация образа
Технические новации иногда появляются благодаря воображению архитектора-визионера. Примером может служить интерьер Медиацентра в парке «Зарядье», в котором главным элементом стала фантастическая подвесная конструкция из уникального полимера. Об истории проекта Медиацентра мы поговорили с его автором Тимуром Башкаевым (АБТБ) и участником проекта, светодизайнером Софьей Кудряковой, директором по развитию QPRO.
Моллирование от Modern Glass: гибкость без ограничений
Технологии компании Modern Glass позволяют производить не просто гнутое стекло, а готовые стеклопакеты со сложной геометрией: сверхмалые радиусы, моллирование в двух плоскостях, длина дуги до 7 м – всё это стало возможно выполнить на одном производстве. Максимальная высота моллированных изделий достигает 18 м, благодаря чему можно создавать цельные фасадные поверхности высотой в несколько этажей без горизонтальных стыковочных швов, а также реализовывать сложные комбинированные решения в рамках одного проекта.
Cool Colours: цвет в структуре
Благодаря технологии коэкструзии, используемой в системах Melke Cool Colours, насыщенный цвет оконного профиля перестал вызывать опасения в долговечности конструкции. Работать с темными и фактурными оттенками можно без риска термической деформации и отслаивания.
Быстро, дешево и многоэтажно
Техасский ICON – производитель промышленных 3D-принтеров и компаньон бюро BIG – выпустил на рынок новую печатную систему. Она предназначена для строительных компаний, а не для частных пользователей. Подразумевается, что на установке Titan будут печатать быстровозводимые, качественные и относительно дешевые дома. А рядовые покупатели, пусть и не знакомые с аддитивными технологиями, смогут обзавестись доступным инновационным жильем.
Фальцевая кровля Rooflong как инженерная система
Современная архитектура предъявляет к кровельным системам значительно более высокие требования, чем это было еще несколько лет назад. Речь идет не только о защите здания от внешних воздействий, но и о сложной геометрии, долговечности, интеграции инженерных элементов и точной реализации архитектурной идеи. Так, фальцевая кровля все чаще рассматривается не как отдельный материал, а как часть комплексной оболочки здания.
Эффективные фасады из полимеров
К современным фасадам предъявляются множество требований: они должны быть одновременно легкими и прочными, гибкими и удобными в монтаже, эстетичными и пригодными для повторного использования. Полимерные композитные системы успешно справляются со всеми этими задачами, выходя далеко за рамки традиционной светотехники и стандартных форм. Эффективность выражается в снижении нагрузки на каркас, в простоте монтажа, в возможности создавать сложнейшие скульптурные оболочки. Разберем, как это работает на практике.
По второму кругу
​В Осаке разбирают «Большое кольцо» – гигантскую деревянную конструкцию, построенную по проекту Со Фудзимото для ЭКСПО-2025. Когда демонтаж завершится, древесину от «Кольца» передадут новым владельцам. Стройматериалы пойдут на восстановление домов, пострадавших от стихийных бедствий, и на строительство новых сооружений.
Архитектура потоков: узкие места в проектах логистических...
Проектирование логистических объектов – это не столько про объём, сколько про систему управляемых переходов между зонами. Значительное время работы техники теряется на ожидания, причём основные потери концентрируются не в стеллажном хранении, а в проёмах, стыках температурных контуров и зонах пересечения потоков. Разбираемся, почему реальная производительность склада определяется не характеристиками автоматизации, а временем открытия проёма, и как этот параметр закладывается в проект.
Стекло AIG в проекте Центрального телеграфа
В отреставрированном Центральном телеграфе на Тверской использованы три типа остекления AIG: для исторического фасада, кровли атриума и внутренних ограждений. Основные требования – нейтральность цветопередачи, солнцезащита без затемнения и сохранение визуальной легкости исторического объема.
Три цвета MODFORMAT на фасаде
Жилой комплекс «ЦЕНТР» в Бресте – первый в портфеле «Полесьежилстрой» проект, где фасады полностью выполнены из клинкера удлиненного формата. Квартал из пяти корпусов распродан почти на 100%, строительство продолжается. Разбираемся, что именно сработало: архитектурное решение, выбор материала или их удачное сочетание.
От модерниста – экологисту
Швейцарский архитектор Барбара Бузер получила премию Джейн Дрю 2026 года. Ежегодную премию представительницам слабого пола вручает журнал Architects′ Journal – за профессиональные достижения и «укрепление женского авторитета в профессии».
Зеленые полимеры: эволюция фасадной теплоизоляции
Современная «зеленая архитектура» – это не только про озеленение крыш и солнечные батареи. В первую очередь, это про технологии, снижающие углеродный след здания. Ключевую роль здесь играют теплоизоляционные материалы (ТИМ), позволяющие радикально сократить потребление энергии. Пенополистирол, PIR и другие материалы, которые принято называть «зелеными полимерами» за их вклад в энергоэффективность, сегодня превратились в стандарт индустрии.
Пищевые производства: логистика и температура
Будучи одними из самых сложных объектов с точки зрения внутренней организации, пищевые производства требуют не просто размещения холодильных камер и цехов, а создания системы «климатических островов» внутри здания. Главная сложность возникает в зонах проемов в условиях интенсивного движения техники и персонала. Разбираем инженерные нюансы подбора оборудования, позволяющие обеспечить герметичность без потери энергоэффективности и удобства логистики.
Тепло и форма
Энергоэффективность сегодня – не враг архитектурной выразительности. Полимерные утеплители – ЭППС, ПИР, ППУ – берут на себя нагрузку, усадку и влагу, освобождая фасад от массивных наслоений. Какой материал выбрать для фундамента, фасада и кровли, чтобы сохранить и тепло, и чистоту линий – разбираем в обзоре.
Угольная пыль вместо цемента
Ученые Пермского Политеха и УрФУ создали экологичный бетон с повышенной водостойкостью. В составе материала – тонкомолотые горелые породы, отравляющие экологию угледобывающих регионов.
Материал с характером
За последние годы продажи металлических фасадных кассет в России выросли почти на 40 % – в сегментах бизнес и премиум всё активнее спрос на материалы, которые дают архитектору свободу работать с выразительной формой, не в ущерб безопасности и сроку службы фасада. Металлокассеты стали одним из главных ответов на этот запрос. Смотрим актуальные приёмы их применения на реализованных объектах от компании «Алкотек».
Архитектура воздухообмена
В зданиях большого объема – от спортивных комплексов до производственных корпусов – формирование комфортного микроклимата связано с особыми инженерными задачами. Одной из ключевых становится организация циркуляции воздуха, позволяющая устранить температурное расслоение и обеспечить равномерные условия по всей высоте пространства.
Инновационное остекление для идеального микроклимата:...
В современной архитектуре стеклопакет приобрел множество полезных функций, став полноценным инструментом управления микроклиматом здания. Так, энергосберегающие стеклопакеты эффективно удерживают тепло в помещении, солнцезащитные – предотвращают перегрев, а электрообогреваемые сами становятся источником тепла. Разбираемся в многообразии современных стеклоизделий на примере продукции Российской Стекольной Компании.
Опоры из грибницы
В США придумали новую альтернатива бетону – живой материал на основе мицелия и бактерий. Такой материал способен самовосстанавливаться и годится для применения в конструктивных компонентах зданий.
Сейчас на главной
Светящаяся загадка
Коллекция питерских ресторанов пополнилась в прошлом году еще одним интересным для эстетов и гурманов местом – рестораном Self Edge Chinois от бюро SEEU. Вдохновляясь китайской культурой и искусством, которыми так легко очароваться, но так трудно понять их до конца, архитекторы сделали ставку на творческую интерпретацию наиболее ярких образов, ассоциирующихся с далекой Поднебесной.
Сфера интересов
27 мая открывается 31-я «Арх Москва», на которой по традиции будут представлены несколько авторских павильонов. Публикуем манифест и проектные материалы одного из них. Архитектуру павильона придумал Алексей Ильин, руководитель собственной мастерской, работающий в оригинальной художественной манере, генеалогия которой восходит еще к т.н. планетарному (Space Age) стилю в дизайне, а также архитектуре монреальского ЭКСПО 1967 года, в значительной степени вдохновленной космосом.
Афинская школа в сочинском парке
Дети – не маленькие взрослые. Школа – не офис для детей. Сочи – это юг. Это три утверждения, с которых BuroMoscow начали работу над концепцией лицея «Сириус», – и три архитектурных решения, из которых сложился проект.
Развитие и поддержка
По проекту бюро ulab рядом с храмом Андрея Рублева в Раменках строится центр дополнительного образования для молодых людей, оказавшихся в трудной жизненной ситуации. На форму здания повлияло желание соединить зеленый внутренний двор, активную зону у главного входа, а также атриум как главное общественное пространство.
Скрытый источник
Концептуальный проект купели близ пещерного монастыря Качи-Кальон – собственная инициатива архитектора Артема Зайцева. Формы здания основаны на гармонии золотого сечения, вторят окружающему скальному ландшафту и отсылают к раннехристианскому зодчеству.
В поисках вопросов
На острове Хайнань открылось новое здание музея науки по проекту MAD. Все его выставочные зоны выстроены в единый маршрут, развивающийся по спирали.
Между fair и tale, или как поймать «рынок» за хвост
На ВДНХ открылась выставка «Иномарка», исследующая культовую тему романтического капитализма 1990-х. Ее экспозиционный дизайн построен на эксперименте: его поручили трем авторам; а эффект знакомый – острого натурализма, призванного погрузить посетителя в ностальгическую атмосферу.
Казанские перформансы
В последние дни мая в Казани в шестой раз пройдет независимый фестиваль медиаискусства НУР, объединяющий медиахудожников, музыкантов и перформеров со всего мира. Организаторы фестиваля стремятся показать знаковые архитектурные объекты Казани с другого ракурса, открыть скрытые исторические части города и погрузить зрителей в новую реальность. Особое место в программе занимают музыкально-световые инсталляции. Рассказываем, что ждет гостей в этом году.
Друзья по крыше
В честь 270-летия Александринского театра на крыше Новой сцены откроется общественное пространство. Варианты архитектурной концепции летней многофункциональнй площадки с лекторием и камерной сценой будут создавать студенты петербургских вузов в рамках творческой лаборатории под руководством «Студии 44». Лучшее решение ждет реализация! Рассказываем об этой инициативе и ждем открытия театральной крыши.
На воскресной электричке
Для поселка Ушково Курортного района Санкт-Петербурга архитектурная мастерская М119 подготовила проект гостиницы с отдельно стоящим физкультурно-оздоровительным центром. Ячейки номеров, деревянные рейки на фасадах, а также бетонные блоки, акцентирующие функциональные блоки, отсылают к наследию советских санаториев и детских лагерей.
Наука на курорте
Здание для центра научно-промышленных исследований Чжэцзянского университета на острове Хайнань извлекает максимум из мягкого климата и видов на море. Авторы проекта – UAD, архитектурный институт в составе того же вуза.
Идеалы модернизма
В Дубне благодаря инициативе руководства местного научного института реконструировано модернистское здание. По проекту Orchestra Design в бывшем Доме международных совещаний открылся выставочный зал «Галерея ОИЯИ», чья деятельность будет проходить на стыке науки и искусства. И первой выставкой, иллюстрирующей этот принцип, стала экспозиция одного из самых известных художников современности, пионера российского кинетизма Франциско Инфантэ.
Мембрана для мысли: IND
Бюро IND предложило для ФИЦ биомедицинских технологий проект, вдохновлённый устройством нейронной сети: многогранные полупрозрачные объёмы, сдвинутые относительно друг друга, образуют «живую структуру» – с «синапсами» общих дворов, где случайный разговор в атриуме может превратиться в научную коллаборацию.
Сплав мировых культур
Гостевой дом, построенный по проекту Osetskaya.Salov на окраине Переславля-Залесского, предлагает путешественнику насыщенное пространство, которое дополнит опыт пребывания в древнем городе. Внутри – пять номеров, отсылающих к славянской, африканской, индуистской, европейской и латиноамериканской культурам. Их расширяют общие пространства – терраса с коммунальным столом, эскуплуатируемая кровля с видом на город, укромный сад. Оболочка здания транслирует универсальное высказывание, вбирая в себя черты всех культур.
«Шартрез д’Эма»: монастырь под Флоренцией как архетип...
Петр Завадовский рассматривает влияние картезианского монастыря в тосканском Галлуццо на формирование концептуальных основ жилищной архитектуры Ле Корбюзье, а также на его проект «дома вилл» – Immeuble-villas.
КиноГолограмма
Не так давно московскими властями был одобрен проект нового комплекса Дома Кино от архитекторов Kleinewelt. Старое здание 1968 года сохранить не удалось – зато авторы сберегли витражи, металлические рельефы, а также объемные параметры здания, в котором разместится Союз кинематографистов и кинозалы. А главным акцентом станет жилая башня. Изучаем ее пластику и аллюзии в московском контексте.
Форма как метод: ТПО «Резерв»
В основе концепции Владимира Плоткина и ТПО «Резерв» – нетривиальная морфология, работающая на решение функциональных задач помимо чисто формальных. Хотя больше всего, конечно, на выразительность и создание редкостного – как можно предположить, рассматривая ключевые решения проекта, пространственно-эмоционального опыта. Изучили, оно того стоит. Наша версия – в таком проекте работает не стиль и даже не метафора, а метод.
Консервация как комментарий
Для руинированной усадьбы Сумароковых-Миллеров, расположенной недалеко от Тарусы, бюро Рождественка предложило концепцию противоаварийных работ, которая помогает восстановить целостность объекта, не нарушая принципов охраны наследия. Временная мера не только стабилизирует памятник и защищает его от дальнейших разрушений, но также позволяет ему функционировать как общественный объект.
Хроника Шуховской башни
Над шаболовской башней сгущается, теперь уже всерьез. Ее собираются построить в новом металле – копию в натуральную величину. Сейчас, вероятно, мы находимся в последней точке невозврата. Айрат Багаутдинов, основатель проекта «Москва глазами инженера», собрал впечатляющую подборку сведений по новейшей истории башни: попытки реконструкции, изменения предмета охраны и общественный резонанс. Публикуем. Сопровождаем фотографиями современного состояния.
Лесные травы
Студия 40 создала интерьер ресторана FOREST в Екатеринбурге, руководствуясь необычным принципом – дизайн должен быть высококлассным и при этом ненавязчивым, чтобы все внимание посетителей было сосредоточено на кулинарных впечатлениях.
Земельные отношения
Экоферма Цзаохэ в предместье Пекина восстанавливает отношения между человеком, землей и пищей. Fon Studio в своем проекте предсказуемо обратилось к традициям и легендам.
Курган памяти
Конкурсный проект мемориального комплекса на Пулковских высотах от «Студии 44» не будет реализован, но мы хотим о нем рассказать – это интересный пример того, как с помощью архитектуры можно символизировать травматичные события и тем самым способствовать их переработке и интеграции в опыт человека. Кроме того, авторам удается совместить мемориальную функцию с рекреационной, не уходя ни в драматизацию, ни в упрощение. Проект развивает идеи двух других конкурсных работ, ушедших в стол, – Музея блокады и парка «Тучков буян». А еще – отсылает к холму-кургану, который Александр Никольский воплотил в облике уже утраченного стадиона на Крестовском острове.
Между цирком и рынком
Манеж для представлений по проекту K architectures на конном заводе в Бретани соединяет ресурсоэффективность с традициями французской архитектуры.
Баня по-царски
Бюро «Уникум» создало собственную версию идеального банного интерьера, отказавшись от расхожих трендов в пользу собственного уникального стиля – нео-русской готики, одновременно роскошной, интригующей и сказочной, что делает поход в эту баню настоящим побегом от серой реальности.
«Заря» над волнами
В проекте реконструкции муниципального пляжа «Заря» в Сочи от бюро V6 GROUP – террасирование, «текучий» бетон и открытый бассейн стали ответами на главные вызовы курорта: нехватку места, капризы моря и модернистскую айдентику местной инфраструктуры.
Белый конгломерат: AI-Architects
Белые цилиндры «слипаются», расширяются кверху и подсвечиваются изнутри, как гигантские лабораторные колбы. Внутри – атриум-амфитеатр, где наука становится зрелищем. Мы продолжаем публиковать конкурсные проекты ФИЦ оригинальных и перспективных биомедицинских и фармацевтических технологий и показываем концепцию от консорциума «АИ-АРХИТЕКТС+ТОЛК+ZLT+АрТех Лаб».
Между фантазией и реальностью: ПАСП & РОСТ
Начинаем публикацию конкурсных проектов ФИЦ биомедицинских и прочих технологий – с проекта, занявшего 6 место. Но Сергей Кузнецов сказал, что «разрыв между участниками был минимальным». А значит, все интересны. Предваряем обзором участка и задач – только так можно понять конкурсные проекты. Проект воронежской команды настроен на практику и удобство, рациональный подход к построению и вероятным трансформациям. Какое у них ключевое решение – читайте в тексте.
Типографика пространства
Консорциум ab Plombir и проект «ДАЛЬ» разработали комплексную концепцию развития исторического квартала «Нижполиграф» в Нижнем Новгороде. Бывшая типография превращается в креативный кластер и федеральный технопарк профессионального образования. Проект сохраняет промышленную идентичность места, деликатно работает с объектом культурного наследия и программирует 45 000 м2 как единую экосистему для встреч, коллабораций и городской жизни.
За холмами
Бюро Анастасии Томенко спроектировало для участка в районе Жигулевских гор загородный дом. Он одновременно подражает холмистому рельефу и заявляет о своем статусе выразительной скульптурной оболочкой, предлагает уединение и широкие виды, а также разные сценарии использования – от бутик-отеля до частной резиденции.
Фолиант большого архитектора
Олег Явейн написал, а «Студия 44» издала монументальный двухтомник про Александра Никольского. Многие материалы публикуются впервые. Читается, при всей фундаментальности, легко. Личность, и архитектура человека-гиганта (он был большого роста), который пришел к авангарду своим путем и не был готов «отпустить» то, что считал правильным – а о политике не говорил вообще никогда – показана с разных сторон. Читаем, рассуждаем, рассказываем несколько историй. Кое-что цепляет пресловутой актуальностью для наших дней.