Офисный центр Neuer Kanzlerplatz в Бонне
Фотография © HG Esch
Офисный центр Neuer Kanzlerplatz в Бонне
Фотография © HG Esch
Офисный центр Neuer Kanzlerplatz в Бонне
Фотография © HG Esch
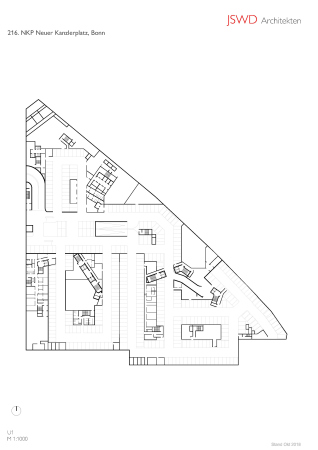
Новый комплекс в основном формируют три средней высоты (5–7 этажей) пятиугольных в плане объема, каждый со своим внутренним двором, а доминантой выступает 28-этажная башня высотой 101,5 м с двухуровневой остекленной зоной для проведения мероприятий на самом верху. В центре же сформировано открытое общественное пространство, раскрывающееся в сторону набережной Рейна. Специально для него датский художник Йеппе Хайн (Jeppe Hein) создал спиралевидную инсталляцию «Зеркальный павильон».
Офисный центр Neuer Kanzlerplatz в Бонне
Фотография © HG Esch
Офисный центр Neuer Kanzlerplatz в Бонне
Фотография © HG Esch
Офисный центр Neuer Kanzlerplatz в Бонне
Фотография © Christa Lachenmaier
Офисный центр Neuer Kanzlerplatz в Бонне
Фотография © HG Esch / Jeppe Hein
Все корпуса имеют единую объемную сетку фасадов из белого архитектурного бетона, поверхность которого подверглась травлению кислотным гелем, а затем получила два слоя гидрофобного покрытия. Благодаря сложной геометрии этой конструктивной сетки строения выглядят целостно, но по-разному воспринимаются при движении пешехода, визуально то расширяясь, то, наоборот, «складываясь».
Офисный центр Neuer Kanzlerplatz в Бонне
Фотография © JSWD
Сборные несущие конструкции позволили обеспечить свободную, лишенную опор планировку в интерьере. В случае высотного объема они интегрированы в стеклянные плоскости фасадов, а сверху установлены декоративные панели из утепленного стеклофибробетона. Более того, решение проникает и внутрь 11-метрового атриума башни, в котором шесть шарнирных опор поддерживают белые треугольные панели из того же бетона на потолке, ими же облицована и стена.
Офисный центр Neuer Kanzlerplatz в Бонне
Фотография © HG Esch
Офисный центр Neuer Kanzlerplatz в Бонне
Фотография © HG Esch
Neuer Kanzlerplatz претендует на сертификат LEED Gold; при проектировании здесь были заложены все обязательные элементы «устойчивого» строительства: максимально использовались местные материалы, крыши озеленены и оборудованы солнечными панелями, экономичные светодиодные светильники контролируются датчиками присутствия и автоматически подстраиваются под яркость естественного освещения, установлены сберегающие воду смесители, смонтирована система вентиляции с возможностью рекуперации нагретого воздуха, в системе центрального отопления задействована тепловая масса бетона, внутренние зоны защищены от перегрева при помощи автоматических жалюзи.
Материалы предоставлены агентством v2com.
Офисный центр Neuer Kanzlerplatz в Бонне
Фотография © HG Esch
Офисный центр Neuer Kanzlerplatz в Бонне
Фотография © Christa Lachenmaier
Офисный центр Neuer Kanzlerplatz в Бонне
© JSWD
Офисный центр Neuer Kanzlerplatz в Бонне
© JSWD
Офисный центр Neuer Kanzlerplatz в Бонне
© JSWD
