Социальный жилой дом на набережной Роны
Фотография © Leo Fabrizio / предоставлена Metropolis Communication
Социальный жилой дом на набережной Роны
Фотография © Leo Fabrizio / предоставлена Metropolis Communication
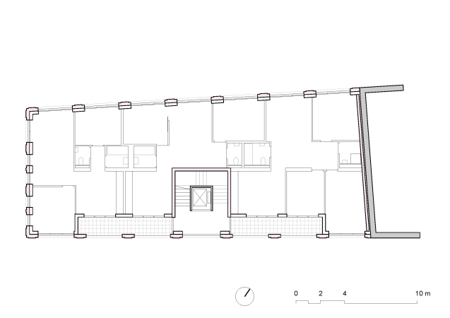
Небольшой трапециевидный объем имеет три фасада, обращенные к городу, на дорогу и на реку, а с четвертой стороны примыкает к историческому корпусу шоколадной фабрики, в которой теперь располагается центр профессионального обучения. Высоту и жесткую решетку членения фасадов продиктовала окружающая застройка. В доме расположена мастерская и всего десять небольших квартир, каждая из которых имеет небольшую лоджию, выходящую на юг, и панорамные окна на реку. Со стороны улицы создана объединяющая галерея, работающая как общественное пространство. Все эти решения позволяют раскрыть интерьеры вовне, при этом оберегая частную жизнь: ведь квартиры изначально предназначались для интеграции в общество людей с психическими расстройствами.
Социальный жилой дом на набережной Роны
Фотография © Leo Fabrizio / предоставлена Metropolis Communication
Atelier Archiplein планомерно развивает принципы предельно рациональной архитектуры и на деле доказывает эффективность блоков натурального камня при строительстве социального жилья. В этом смысле новый проект стал продолжением темы, заявленной бюро в более раннем комплексе на окраине Женевы. Такой подход, по мнению архитекторов, эффективен с точки зрения экологии, экономии потребляемой энергии и сейсмостойкости, так как использует способность камня противостоять сжатию.
Социальный жилой дом на набережной Роны
Фотография © Leo Fabrizio / предоставлена Metropolis Communication
Для внешнего и внутреннего конструктивных контуров были выбраны два вида твердого известняка из французских месторождений: «Сирёй» (снаружи) и «Шавиньи» (внутри). Таким образом удалось добиться свободной планировки и дать возможность гибко использовать внутреннее пространство. В интерьерах открытые поверхности камня сочетаются с натуральным деревом – простое и комфортное современное решение, отсылающее еще при этом к ремесленным традициям. Бетон же архитекторы использовали только для лестницы, которая стала отдельным «вставным» элементом, не связанным конструктивно с остальным зданием. Завершают созданный образ стальные решетчатые ограждения, выкрашенные в черный цвет, которые напоминают чугунные ограды и по замыслу авторов отсылают к промышленному прошлому района.
Социальный жилой дом на набережной Роны
© Atelier Archiplein / предоставлено Metropolis Communication
Социальный жилой дом на набережной Роны
© Atelier Archiplein / предоставлено Metropolis Communication
Социальный жилой дом на набережной Роны
© Atelier Archiplein / предоставлено Metropolis Communication
Социальный жилой дом на набережной Роны
© Atelier Archiplein / предоставлено Metropolis Communication
