Реконструкция бывшей пивоварни Kingway в Шэньчжэне.
Фотография © TAL / предоставлена URBANUS
Реконструкция бывшей пивоварни Kingway в Шэньчжэне.
Фотография © Hu Kangyu / предоставлена URBANUS
Реконструкция бывшей пивоварни Kingway в Шэньчжэне.
Фотография © Hu Kangyu / предоставлена URBANUS
Реконструкция бывшей пивоварни Kingway в Шэньчжэне.
Фотография © Hu Kangyu / предоставлена URBANUS
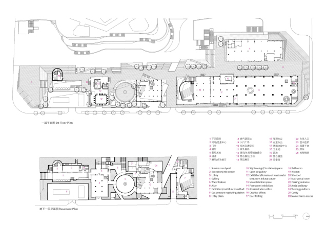
К счастью, именно второе произошло с бывшим пивоваренным заводом крупнейшего китайского производителя Kingway. Однако когда местное бюро URBANUS начало работу, часть объектов на вытянутом с севера на юг протяженном участке уже были демонтированы, а оставшиеся потеряли связь между собой. Работу архитекторов дополнительно усложнял массивный цоколь высотой от 1,65 м до 3 м, проходящий через весь участок. Главной задачей было, сохранив дух места, собрать разрозненные фрагменты воедино и дать им новую функцию, задав иную логику восприятия пространства. В результате удалось создать подобие улицы между двумя городскими площадями (южной и северной), общая длина которой 266 м.
Реконструкция бывшей пивоварни Kingway в Шэньчжэне.
Фотография © TAL / предоставлена URBANUS
Реконструкция бывшей пивоварни Kingway в Шэньчжэне.
Фотография © Hu Kangyu / предоставлена URBANUS
На цоколе были организованы открытые выставочные пространства, тематически сады (в том числе «утопленные» сады), различные переходы и зоны отдыха. У южного входа вместо разрушенной водонапорной башни установили высотный ориентир: заметный издалека корпус А. В корпусе B изначально располагался резервуар для жидких отходов, а в корпусе С – аэрационный бак. Их герметичные объемы «раскупорили», всю плитку удалили, показав бетонную поверхность, в новой отделке использовали ярко-красный кирпич. Над корпусом B возвели выставочный зал площадью 300 м2, для которого использовали вспененный алюминий, эффектно сочетающийся с бетоном. Над корпусом С возникла подсвеченная структура из литого алюминия, по замыслу архитекторов символизирующая поднимающиеся пузырьки пива. Осадочный бассейн между двумя корпусами диаметром 18 м превратили в сад с неожиданными навесными переходами.
Реконструкция бывшей пивоварни Kingway в Шэньчжэне.
Фотография © TAL / предоставлена URBANUS
Реконструкция бывшей пивоварни Kingway в Шэньчжэне.
Фотография © Hu Kangyu / предоставлена URBANUS
Реконструкция бывшей пивоварни Kingway в Шэньчжэне.
Фотография © TAL / предоставлена URBANUS
Реконструкция бывшей пивоварни Kingway в Шэньчжэне.
Фотография © Hu Kangyu / предоставлена URBANUS
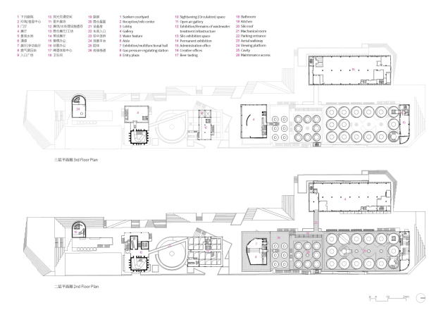
Самый протяженный корпус, D, в котором раньше и происходила ферментация, вмещал 33 бродильных чана из нержавейки и запутанную сеть труб. Его первая часть была превращена в многофункциональную аудиторию с двухэтажным выставочным залом на крыше. В зонах D2 и D3 сохранили все оборудование и разместили бар. В зоне D4 все же пришлось убрать три чана, чтобы устроить открытую сцену для представлений и пустить через фонари свет в нижнюю зону, предназначенную для проведения перформансов. Сохранившиеся баки при этом соединили переходами. В последней – четырехэтажной – зоне, D5, раньше перерабатывали дрожжи, теперь она вторит корпусу А, завершая «путешествие». На ее нижних этажах сделали еще одно экспозиционное помещение, а верхние надстроили и отдали под административную функцию. Из остекленной верхней части открываются виды на город и парк.
Реконструкция бывшей пивоварни Kingway в Шэньчжэне.
Фотография © Hu Kangyu / предоставлена URBANUS
Реконструкция бывшей пивоварни Kingway в Шэньчжэне.
Фотография © TAL / предоставлена URBANUS
Территория бывшего пивоваренного завода изначально реконструировалась как культурный центр, важная городская платформа для проведения различных мероприятий. И первым событием стала открывшаяся в декабре 2022 года архитектурно-градостроительная биеннале Bi-City (UABB): успешный проект реконструкции завода стал «нулевым» экспонатом этой выставки.
Реконструкция бывшей пивоварни Kingway в Шэньчжэне. Корпус D5
Фотография © TAL / предоставлена URBANUS
Реконструкция бывшей пивоварни Kingway в Шэньчжэне. Корпус D5
Фотография © Hu Kangyu / предоставлена URBANUS
Реконструкция бывшей пивоварни Kingway в Шэньчжэне.
© URBANUS
Реконструкция бывшей пивоварни Kingway в Шэньчжэне.
© URBANUS
Реконструкция бывшей пивоварни Kingway в Шэньчжэне.
© URBANUS
Реконструкция бывшей пивоварни Kingway в Шэньчжэне.
© URBANUS
Реконструкция бывшей пивоварни Kingway в Шэньчжэне.
© URBANUS
