Больница Friendship в Шьямнагаре, Бангладеш. Архитектор Кашеф Чаудхури и бюро Urbana
Фото © Asif Salman, предоставлено Urbana
Больница Friendship в Шьямнагаре, Бангладеш. Архитектор Кашеф Чаудхури и бюро Urbana
Фото © Asif Salman, предоставлено Urbana
Больница Friendship в Шьямнагаре, Бангладеш. Архитектор Кашеф Чаудхури и бюро Urbana
Фото © Asif Salman, предоставлено Urbana
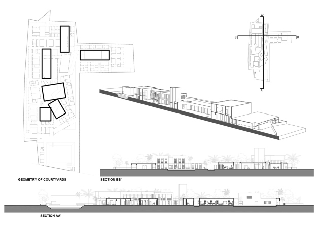
Заказчик, бангладешский фонд Friendship во главе с его основательницей Руной Хан, много лет работает именно в зоне «чара», и больницы для него всегда были приоритетным направлением. Здесь медицинская помощь, как правило, труднодоступна, и климатические изменения сделали повседневную жизнь еще более сложной, чем обычно – особенно после разрушительного циклона 2007 года.
Больница Friendship в Шьямнагаре, Бангладеш. Архитектор Кашеф Чаудхури и бюро Urbana
Фото © Asif Salman, предоставлено Urbana
Больница Friendship в Шьямнагаре, Бангладеш. Архитектор Кашеф Чаудхури и бюро Urbana
Фото © Asif Salman, предоставлено Urbana
Проект Кашефа Чаудхури основан на управлении водой. Так, канал разрезает больничный комплекс пополам, отделяя пациентов стационара и амбулатории. Он также помогает охладить помещения без использования потребляющих большой объем электроэнергии кондиционеров.
Больница Friendship в Шьямнагаре, Бангладеш. Архитектор Кашеф Чаудхури и бюро Urbana
Фото © Asif Salman, предоставлено Urbana
Больница Friendship в Шьямнагаре, Бангладеш. Архитектор Кашеф Чаудхури и бюро Urbana
Фото © Asif Salman, предоставлено Urbana
Больница Friendship в Шьямнагаре, Бангладеш. Архитектор Кашеф Чаудхури и бюро Urbana
Фото © Asif Salman, предоставлено Urbana
Дождевую воду собирают в цистерну, чтобы избежать заболачивания, а также для дальнейшего использования: это крайне ценный ресурс для окруженного соленой водой участка суши.
Больница Friendship в Шьямнагаре, Бангладеш. Архитектор Кашеф Чаудхури и бюро Urbana
Фото © Asif Salman, предоставлено Urbana
Больница Friendship в Шьямнагаре, Бангладеш. Архитектор Кашеф Чаудхури и бюро Urbana
Фото © Asif Salman, предоставлено Urbana
Жюри премии во главе с Одиль Декк оценило не только продуманную функциональность и экономичные решения в проекте, но также его ориентированную на эмоциональный комфорт человека атмосферу. Серия внутренних дворов обеспечивает естественным освещением и вентиляцией палаты, там же могут отдохнуть пациенты и их посетители. Аркады и коридоры защищают «приватные» части больницы, также в этих целях использована ажурная кладка, пропускающая воздух и необходимое количество света. Местный кирпич, традиционный для Бангладеш, применен здесь с максимальным эффектом, оставаясь во всех смыслах доступным материалом.
Больница Friendship в Шьямнагаре, Бангладеш. Архитектор Кашеф Чаудхури и бюро Urbana
Фото © Asif Salman, предоставлено Urbana
Параллельно с Международной премией Королевский институт британских архитекторов (RIBA) вручает каждые два года и награду начинающему архитектору. В этом году ей отмечено центральное офисное здание компании Kohan Ceram в Тегеране. Она производит кирпич, и в проекте Хумана Балазаде и его бюро HOOBA Design использован его особый вид – с круглым отверстием в центре, то остекленным, то пустым. Часть кирпичей полнотелая, но имеет нишу такой же формы. Жюри оценило использование новаторского и одновременно самого типичного для Ирана материала, который в этом случае помогает регулировать температуру и освещение в помещениях. Снаружи узор кладки создает цельный и привлекательный образ здания, а озеленение в интерьере помогает очистить там воздух.
Центральное офисное здание компании Kohan Ceram в Тегеране. Архитектор Хуман Балазаде и бюро HOOBA Design
Фото © Deed Studio, предоставлено Hooba Design
Центральное офисное здание компании Kohan Ceram в Тегеране. Архитектор Хуман Балазаде и бюро HOOBA Design
Фото © Deed Studio, предоставлено Hooba Design
Центральное офисное здание компании Kohan Ceram в Тегеране. Архитектор Хуман Балазаде и бюро HOOBA Design
Фото © Deed Studio, предоставлено Hooba Design
Центральное офисное здание компании Kohan Ceram в Тегеране. Архитектор Хуман Балазаде и бюро HOOBA Design
Фото © Deed Studio, предоставлено Hooba Design
Центральное офисное здание компании Kohan Ceram в Тегеране. Архитектор Хуман Балазаде и бюро HOOBA Design
Фото © Deed Studio, предоставлено Hooba Design
Центральное офисное здание компании Kohan Ceram в Тегеране. Архитектор Хуман Балазаде и бюро HOOBA Design
Фото © Deed Studio, предоставлено Hooba Design
Центральное офисное здание компании Kohan Ceram в Тегеране. Архитектор Хуман Балазаде и бюро HOOBA Design
Фото © Deed Studio, предоставлено Hooba Design
Центральное офисное здание компании Kohan Ceram в Тегеране. Архитектор Хуман Балазаде и бюро HOOBA Design
Фото © Deed Studio, предоставлено Hooba Design
Центральное офисное здание компании Kohan Ceram в Тегеране. Архитектор Хуман Балазаде и бюро HOOBA Design
Фото © Deed Studio, предоставлено Hooba Design
Центральное офисное здание компании Kohan Ceram в Тегеране. Архитектор Хуман Балазаде и бюро HOOBA Design
Фото © Deed Studio, предоставлено Hooba Design
