Музей Уэст-Банд
                Фото © Simon Menges
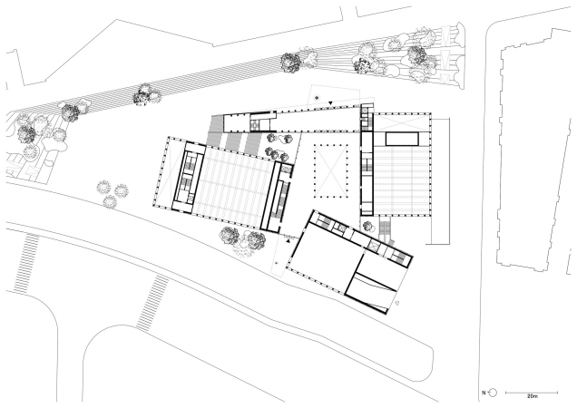
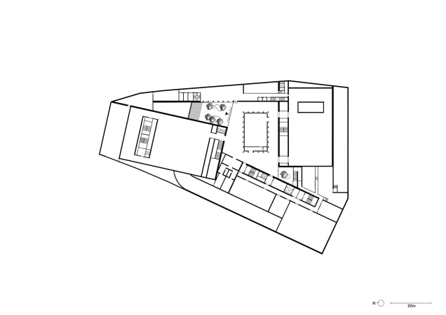
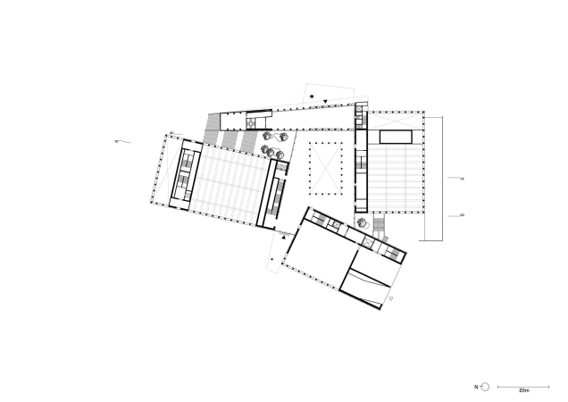
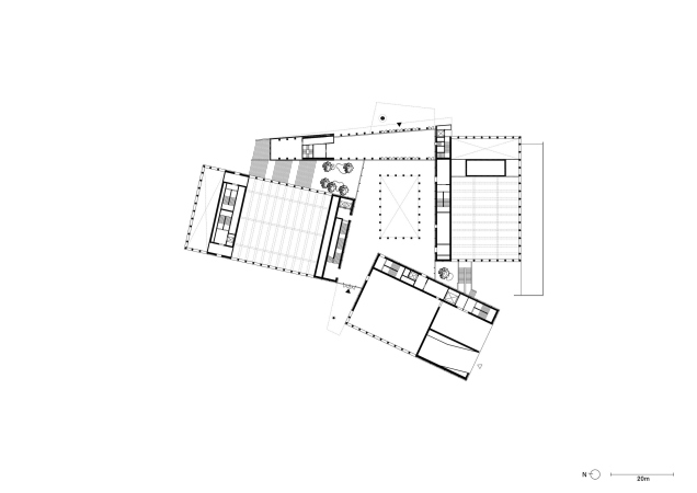
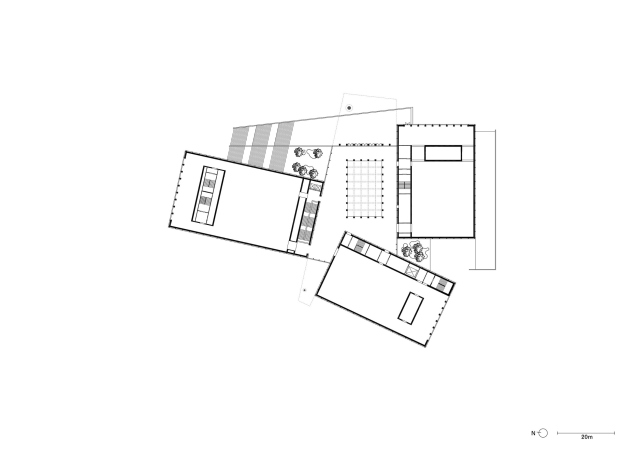
        Музей общей площадью 22 000 м2 построен на треугольном участке, где проспект Лунтэн подходит вплотную к реке. Это расположение позволило создать полностью «независимое» сооружение, рассчитанное на восприятие с разных точек зрения, открытое суше, воде и всем ветрам.
Музей Уэст-Банд
                Фото © Simon Menges
        У него два главных входа – со стороны города и от реки – с ее прогулочной набережной и пристанью. Речной вход даже двойной: сразу в вестибюль или же через двор с пониженным уровнем пола.
Музей Уэст-Банд
                Фото © Simon Menges
        Три объема как будто закручены вокруг оси двусветного вестибюля, который отмечен выносами кровли – ниже основной крыши музея, и поддерживающими ее со стороны реки и города колоннами с обратной тектоникой.
Музей Уэст-Банд
                Фото © Simon Menges
        Каждый из основных объемов достигает высоты в 17 метров. На втором уровне во всех трех помещены выставочные залы с верхним светом, а на первом, немного утопленном – зрительный зал на 232 места, арт-студия и образовательный центр, соответственно.
Музей Уэст-Банд
                Фото © Simon Menges
        Невысокий вытянутый объем кафе пристроен со стороны реки: панорамные виды из интерьера сочетаются там с обзорной террасой на крыше, частично перекрытой кровлей вестибюля.
Музей Уэст-Банд
                Фото © Simon Menges
        Полупрозрачное стекло, широко использованное на фасадах изготовлено из вторсырья, это результат переработки обычного стекла.
Музей Уэст-Банд
                Фото © Simon Menges
        Музей Уэст-Банд
                Фото © Simon Menges
        Музей Уэст-Банд
                Фото © Simon Menges
        Музей Уэст-Банд
                Фото © Simon Menges
        Музей Уэст-Банд
                © David Chipperfield Architects
        Музей Уэст-Банд
                © David Chipperfield Architects
        
 
                         
            
            
         
                            
 
                             
                             
                             
                             
                             
                             
                             
                             
                             
                             
                                         
                                         
                                         
                                         
                                         
                                         
                                         
                                         
                                         
                             
                                         
                                         
                                         
                                         
                                         
                                         
                                         
                     
                                                                        
                                                                     
                                                                        
                                                                     
                                                                        
                                                                     
                                                                        
                                                                     
                                                                        
                                                                     
                                                                        
                                                                     
                                                                        
                                                                     
                                                                        
                                                                     
                                                                        
                                                                     
                                                                        
                                                                     
                                                                        
                                                                     
                                                                        
                                                                     
                                                                        
                                                                     
                                                                        
                                                                     
                                                                        
                                                                     
                                                                        
                                                                     
                                                                        
                                                                     
                                                                        
                                                                     
                                                                        
                                                                     
                                                                        
                                                                     
                                                                        
                                                                     
                                                                        
                                                                     
                                                                        
                                                                     
                                                                        
                                                                     
                                                                        
                                                                     
                                                                        
                                                                     
                                                                        
                                                                     
                                                                        
                                                                     
                                                                        
                                                                     
                                                                        
                                                                     
                                                                        
                                                                     
                                                                        
                                                                     
                                                                        
                                                                     
                                                                        
                                                                     
                                                                        
                                                                     
                                                                        
                                                                     
                                                                        
                                                                     
                                                                        
                                                                     
                                                                        
                                                                     
                                                                        
                                                                     
                                                                        
                                                                     
                                                                        
                                                                     
                                                                        
                                                                     
                                                                        
                                                                     
                                                                        
                                                                     
                                                                        
                                                                     
                                                                        
                                                                     
                                                                        
                                                                     
                                                                        
                                                                     
                                                                        
                                                                     
                                                                        
                                                                     
                                                                        
                                                                     
                                                                        
                                                                     
                                                                        
                                                                     
                                                                        
                                                                     
                                                                        
                                                                     
                                                                        
                                                                     
                                                                        
                                                                     
                                                                        
                                                                     
                                                                        
                                                                     
                                                                        
                                                                     
                                                                        
                                                                     
                                                                        
                                                                     
                                                                        
                                                                     
                                                                        
                                                                     
                                                                        
                                                                     
                                                                        
                                                                     
                                                                        
                                                                     
                                                                        
                                                                     
                                                                        
                                                                     
                                                                        
                                                                     
                                                                        
                                                                     
                                        