|
Модульное здание общежития для студентов Делфтского технического университета возвели всего за 26 недель. Авторы проекта – бюро Studioninedots.
Планировка современного кампуса Делфтского технического университета имеет четкую и плотную структуру, основу которой задал сначала выпускник, а затем почти 50 лет профессор отделения архитектуры Карел Вебер (к слову, это отделение в наши дни – одно из самых престижных в мире). Новый комплекс доступного студенческого жилья Suitе 9, расположенный в центральной части кампуса, выбивается из общей схемы, привлекая внимание и становясь таким образом точкой притяжения для местного сообщества.
  
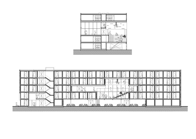
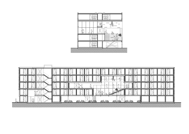
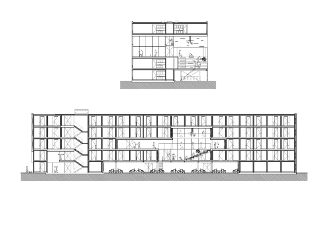
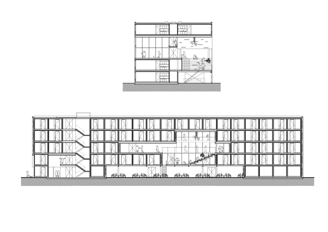
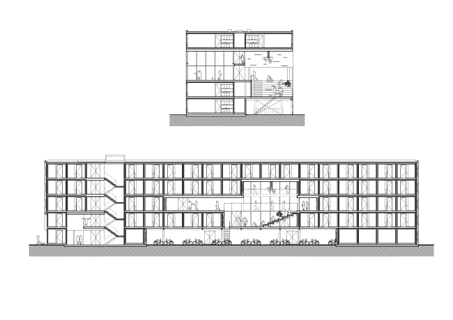
Амстердамское бюро Studioninedots спроектировало узкое здание со стандартным планом: коридор между двумя рядами небольших жилых ячеек. Общежитие удалось возвести всего за 26 недель, использовав типологию сборных домов из заранее подготовленных модулей, разработанную компанией Daiwa House Modular и опробованную как в частном домостроении, так и в других типах социального и доступного жилья.
    
Фасады нового здания покрыты тонкими экологически безопасными панелями, выполненными из стеклофибробетона графитового цвета в сочетании с матово-черными оконными рамами. Фрагменты перфорации разбивают плоскость, намекая на функцию скрытых за ними помещений и создавая игру света, особенно заметную в темное время.
  
Но жесткая планировка и общий сдержанный, даже грубоватый вид оказываются всего лишь первым впечатлением, транслируемым вовне. Внутри регулярный план некоторых этажей разрывает сложно устроенное «сердце» всего проекта, которым стал многоуровневый остекленный атриум с многочисленными мягкими зонами и открытыми террасами – главное место встреч и общения. Для его отделки подобрали твердую и долговечную древесину сукупиры (Sucupira Amarela) из Бразилии, которую отличает активная фактура и эффектный темно-коричневый оттенок.
  
Кроме этого, в здании предусмотрены: парковка для велосипедов, общая гостиная с кухней и большим столом, отдельный ТВ-салон, коммунальная прачечная и, конечно, уютные уголки для самостоятельных занятий. Жилые и общественные зоны так или иначе оказываются связаны с «сердцем», чтобы стимулировать активную коммуникацию. Зеленая крыша (использован традиционный для таких целей очиток) также несет солнечные батареи.
За счет всего этого архитекторы и инженеры попробовали придать сборному строительству большую визуальную сложность, нащупав баланс между повторяющимися компонентами и мотивами визуальной игры. Таким образом, по их мнению, такие дома могут приобрести дополнительную ценность, а сам модульный метод – стать чем-то большим, чем просто средством ускорить строительство и значительно сэкономить средства. Студенческое общежитие Делфтского технологического университета Suitе 9Фотография © Sebastian van Damme / предоставлена Studioninedots
Студенческое общежитие Делфтского технологического университета Suitе 9Фотография © Sebastian van Damme / предоставлена Studioninedots
Студенческое общежитие Делфтского технологического университета Suitе 9Фотография © Sebastian van Damme / предоставлена StudioninedotsСтуденческое общежитие Делфтского технологического университета Suitе 9Фотография © Sebastian van Damme / предоставлена StudioninedotsСтуденческое общежитие Делфтского технологического университета Suitе 9Фотография © Sebastian van Damme / предоставлена Studioninedots
Студенческое общежитие Делфтского технологического университета Suitе 9Фотография © Sebastian van Damme / предоставлена Studioninedots
Студенческое общежитие Делфтского технологического университета Suitе 9Фотография © Sebastian van Damme / предоставлена Studioninedots
Студенческое общежитие Делфтского технологического университета Suitе 9Фотография © Sebastian van Damme / предоставлена Studioninedots
Студенческое общежитие Делфтского технологического университета Suitе 9Фотография © Sebastian van Damme / предоставлена StudioninedotsСтуденческое общежитие Делфтского технологического университета Suitе 9Фотография © Sebastian van Damme / предоставлена StudioninedotsСтуденческое общежитие Делфтского технологического университета Suitе 9Фотография © Sebastian van Damme / предоставлена Studioninedots
Студенческое общежитие Делфтского технологического университета Suitе 9Фотография © Sebastian van Damme / предоставлена Studioninedots
Студенческое общежитие Делфтского технологического университета Suitе 9Фотография © Sebastian van Damme / предоставлена StudioninedotsСтуденческое общежитие Делфтского технологического университета Suitе 9Фотография © Sebastian van Damme / предоставлена StudioninedotsСтуденческое общежитие Делфтского технологического университета Suitе 9Фотография © Sebastian van Damme / предоставлена Studioninedots
Студенческое общежитие Делфтского технологического университета Suitе 9Фотография © Sebastian van Damme / предоставлена StudioninedotsСтуденческое общежитие Делфтского технологического университета Suitе 9Фотография © Sebastian van Damme / предоставлена StudioninedotsСтуденческое общежитие Делфтского технологического университета Suitе 9Фотография © Sebastian van Damme / предоставлена StudioninedotsСтуденческое общежитие Делфтского технологического университета Suitе 9Фотография © Sebastian van Damme / предоставлена StudioninedotsСтуденческое общежитие Делфтского технологического университета Suitе 9© Studioninedots
Студенческое общежитие Делфтского технологического университета Suitе 9© StudioninedotsСтуденческое общежитие Делфтского технологического университета Suitе 9© StudioninedotsСтуденческое общежитие Делфтского технологического университета Suitе 9© StudioninedotsСтуденческое общежитие Делфтского технологического университета Suitе 9© StudioninedotsСтуденческое общежитие Делфтского технологического университета Suitе 9© StudioninedotsСтуденческое общежитие Делфтского технологического университета Suitе 9© Studioninedots
Студенческое общежитие Делфтского технологического университета Suitе 9© StudioninedotsСтуденческое общежитие Делфтского технологического университета Suitе 9© StudioninedotsСтуденческое общежитие Делфтского технологического университета Suitе 9© StudioninedotsСтуденческое общежитие Делфтского технологического университета Suitе 9© Studioninedots
|