Описание предоставлен архитекторами
По условиям конкурса было необходимо присутствие в команде архитектора, имеющего легальные основания практиковать в Европейском Союзе. Таким архитектором стала Ирина Шмелева, компетенции которой подтверждены в Дании. Rhizome же развивает практику как в России, так и в Португалии.
Проект нового музея в южной гавани Хельсинки задумывался как «очаг» – место, объединяющее жителей и гостей города вокруг идей архитектуры и дизайна. Архетип домашнего очага, важного для финской традиции, стал метафорой здания: массивная гранитная оболочка формирует искусственный «скальный ландшафт», внутри которого раскрываются светлые деревянные пространства, а открытая крыша превращается в общественную площадь с панорамным видом на море и город.
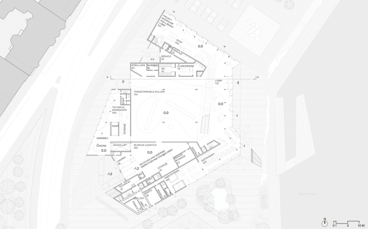
Архитектура музея бережно вписана в контекст: горизонтальный объем галерей сохраняет визуальную и пешеходную связь между парком Tähtitorninvuori и набережной, а два диагональных марша соединяют крышу-площадь с парком и водой. Северный корпус, обращенный к городу, максимально открыт: здесь расположены библиотека, мастерские, выставочные залы и магазин. Южное крыло тянется к морю и завершается рестораном и баром с выходом на террасу.
Конструктивная система сочетает железобетон и клееную древесину. Жесткие железобетонные ядра обеспечивают устойчивость, а основные пролеты перекрываются деревянными балками длиной до 15 метров. Такой гибрид снижает углеродный след по сравнению с полностью бетонными зданиями и при этом дает гибкость планировок, позволяя адаптировать музей к будущим изменениям.
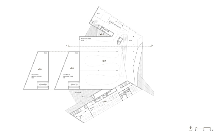
Пространственная организация выстраивает несколько уровней опыта. На первом этаже расположена трансформируемая галерея, которую можно объединять с вестибюлем и использовать для ярмарок, фестивалей и городских мероприятий. На втором уровне – главные выставочные пространства, включая большую галерею для масштабных инсталляций и открытую «витрину» – небольшой зал, видимый с улицы. Крыша превращена в выставочную площадь под открытым небом, доступную всем жителям. В верхних этажах предусмотрены мастерские и студии-резиденции для дизайнеров и архитекторов, превращающие музей в живой организм, где экспозиция рождается на месте.
Таким образом, «The Hearth» предлагает городу не только музей, но и новый тип общественного пространства – одновременно дом, ландшафт и точку притяжения, где традиции и новаторство соединяются в архитектуре будущего.
