RSS
Новый музей архитектуры и дизайна в Хельсинки
© MIRRORR STUDIO / предоставлено Rhizome

Новый музей архитектуры и дизайна в Хельсинки

информация:

  • статус
    проект
  • даты
    2024
  • место
    Финляндия, Хельсинки
    South Harbor Port
  • координаты
    60.164906, 24.953455
  • функция
    Культурный / Музей
  • теги
    send.project
  • общая площадь
    10 045 м2
  • Полезная площадь - 6 530 м2
     
  • авторский коллектив
    Татьяна Синельникова, Евгений Решетов, Ирина Шмелева, София Герич, Ульяна Распопова
  • другие названия проекта
    The Hearth. AD Museum Helsinki
Новый музей архитектуры и дизайна в Хельсинки
© MIRRORR STUDIO / предоставлено Rhizome

Архи.ру об этом объекте:

18.09.2025

Огонь в скале

В конкурс на проект здания Национального музея архитектуры и дизайна в Хельсинки было подано 624 заявки. Принять участие удалось и российскому бюро Rhizome: команда предложила «оболочку» в виде скального массива, общественное пространство на кровле и конструктивную схему, которая сочетает железобетон и клееную древесину.

читать дальше
Новый музей архитектуры и дизайна в Хельсинки
© MIRRORR STUDIO / предоставлено Rhizome

описание:

Музей дизайна и архитектуры в Хельсинки – проект «The Hearth»

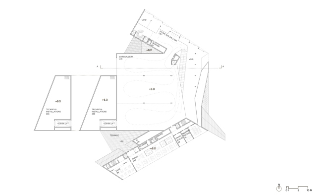
Проект нового музея в южной гавани Хельсинки задумывался как «очаг» – место, объединяющее жителей и гостей города вокруг идей архитектуры и дизайна. Архетип домашнего очага, важного для финской традиции, стал метафорой здания: массивная гранитная оболочка формирует искусственный «скальный ландшафт», внутри которого раскрываются светлые деревянные пространства, а открытая крыша превращается в общественную площадь с панорамным видом на море и город.

Архитектура музея бережно вписана в контекст: горизонтальный объём галерей сохраняет визуальную и пешеходную связь между парком Tähtitorninvuori и набережной, а два диагональных марша соединяют крышу-площадь с парком и водой. Северный корпус, обращённый к городу, максимально открыт: здесь расположены библиотека, мастерские, выставочные залы и магазин. Южное крыло тянется к морю и завершается рестораном и баром с выходом на террасу.

Конструктивная система сочетает железобетон и клеёную древесину. Жёсткие железобетонные ядра обеспечивают устойчивость, а основные пролёты перекрываются деревянными балками длиной до 15 метров. Такой гибрид снижает углеродный след по сравнению с полностью бетонными зданиями и при этом даёт гибкость планировок, позволяя адаптировать музей к будущим изменениям.

Пространственная организация выстраивает несколько уровней опыта. На первом этаже расположена трансформируемая галерея, которую можно объединять с вестибюлем и использовать для ярмарок, фестивалей и городских мероприятий. На втором уровне – главные выставочные пространства, включая большую галерею для масштабных инсталляций и открытую «витрину» – небольшой зал, видимый с улицы. Крыша превращена в выставочную площадь под открытым небом, доступную всем жителям. В верхних этажах предусмотрены мастерские и студии-резиденции для дизайнеров и архитекторов, превращающие музей в живой организм, где экспозиция рождается на месте.

Таким образом, «The Hearth» предлагает городу не только музей, но и новый тип общественного пространства – одновременно дом, ландшафт и точку притяжения, где традиции и новаторство соединяются в архитектуре будущего.

Новый музей архитектуры и дизайна в Хельсинки
© MIRRORR STUDIO / предоставлено Rhizome
Новый музей архитектуры и дизайна в Хельсинки
© MIRRORR STUDIO / предоставлено Rhizome
Новый музей архитектуры и дизайна в Хельсинки
© MIRRORR STUDIO / предоставлено Rhizome
Новый музей архитектуры и дизайна в Хельсинки
© MIRRORR STUDIO / предоставлено Rhizome
Новый музей архитектуры и дизайна в Хельсинки
© MIRRORR STUDIO / предоставлено Rhizome
Новый музей архитектуры и дизайна в Хельсинки
© MIRRORR STUDIO / предоставлено Rhizome
Новый музей архитектуры и дизайна в Хельсинки. Мудборд
© Rhizome
Новый музей архитектуры и дизайна в Хельсинки. Схема генплана
© Rhizome
Новый музей архитектуры и дизайна в Хельсинки. Структура здания
© Rhizome
Новый музей архитектуры и дизайна в Хельсинки. Силуэт и программа
© Rhizome
Новый музей архитектуры и дизайна в Хельсинки. Морфология
© Rhizome
Новый музей архитектуры и дизайна в Хельсинки. Здание – ландшафт. Площадь на крыше
© Rhizome
Новый музей архитектуры и дизайна в Хельсинки. Конструктивная логика и структура галерей
© Rhizome
Новый музей архитектуры и дизайна в Хельсинки. План 1 этажа
© Rhizome
Новый музей архитектуры и дизайна в Хельсинки. План 2 этажа
© Rhizome
Новый музей архитектуры и дизайна в Хельсинки. План 3 этажа
© Rhizome
Новый музей архитектуры и дизайна в Хельсинки. План 4 этажа
© Rhizome
Новый музей архитектуры и дизайна в Хельсинки. Фасады
© Rhizome

Избранные архитекторы:

  • Кэнго Кума
  • Дэвид Аджайе
  • Питер Айзенман
  • Массимилиано Фуксас
  • Петер Цумтор
  • Кристиан де Портзампарк
  • Рафаэль Виньоли
  • Даниэль Либескинд
  • Алехандро Аравена

Проект из каталога (случайный выбор)

Музей собрания Фридера Бурды
Ричард Майер, 2001 – 2004
Музей собрания Фридера Бурды

Избранные постройки:

  • Гронингенский музей
  • Церковь Иисуса
  • Корпус Investcorp Центра Ближнего Востока Колледжа Сент-Энтони Оксфордского университета
  • Музей современного искусства Киасма
  • Центр мира Переса
  • Лунная база Европейского космического агентства
  • Аэропорт «Пулково» – реконструкция
  • Национальная библиотека Казахстана
  • Музей искусств Кимбелла – новый корпус

Зарубежные новости