Спортивный центр имени Николы Карабатича
                Фото © 11h45
        Здание на деревянном каркасе возведено на окраине Менеси, между полями и коммерческим кластером из больших магазинов, автосервисов и тому подобного. Среди них спортцентр выделяется фасадом из золотистого металла: это отсылка к многочисленным медалям гандболиста Карабачича, чемпиона мира, Олимпийских игр и Европы, участника шести Олимпиад.
Спортивный центр имени Николы Карабатича
                Фото © 11h45
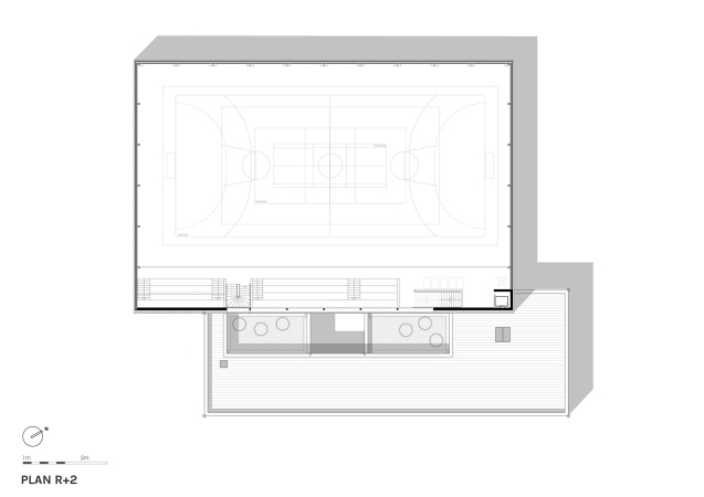
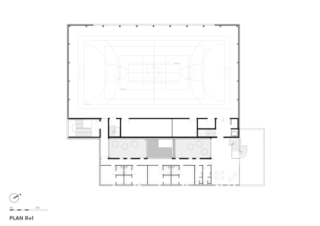
        Этот золотистый объем приподнят над землей, под ним устроена парковка для велосипедов и другие функциональные зоны, а в нем – прямоугольный трансформируемый зал для разных видов спорта с местами для 100–150 зрителей (зависит от конфигурации). В прилегающем остекленном блоке расположен вестибюль. Везде широко использовано естественное освещение, что позволяет экономить электроэнергию.
Спортивный центр имени Николы Карабатича
                Фото © 11h45
        В здании общей площадью 2000 м2 есть еще два зала – меньше размером и квадратных, с отдельными входами и как минимум одной глухой стеной, где, например, можно установить зеркала и балетный станок, повесить экран для кинопоказов или же экспонировать картины или фотографии.
Спортивный центр имени Николы Карабатича
                Фото © 11h45
        Спортивный центр имени Николы Карабатича
                Фото © 11h45
        Спортивный центр имени Николы Карабатича
                Фото © 11h45
        Спортивный центр имени Николы Карабатича
                Фото © 11h45
        
                        
            
            
        
                            