Школа имени Женевьевы де Голль-Антоньоз
Фотография © 11h45 / предоставлена Atelier Aconcept
Школа имени Женевьевы де Голль-Антоньоз
Фотография © 11h45 / предоставлена Atelier Aconcept
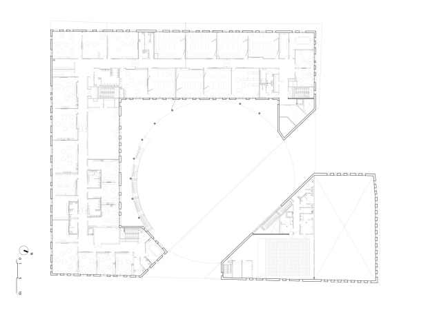
Образовательный комплекс, спроектированный бюро Atelier Aconcept, носит имя племянницы генерала де Голля, активной участницы движения Сопротивления Женивьев де Голль-Антоньоз. В нем размещены 10 групп детского сада, 14 классов начальной школы, а также спортивный зал и додзё для занятий разными видами восточных единоборств. Дополняет функциональную программу подземная парковка на 50 автомобилей.
Школа имени Женевьевы де Голль-Антоньоз
Фотография © 11h45 / предоставлена Atelier Aconcept
Школа имени Женевьевы де Голль-Антоньоз
Фотография © 11h45 / предоставлена Atelier Aconcept
Школа имени Женевьевы де Голль-Антоньоз
Фотография © 11h45 / предоставлена Atelier Aconcept
Школа имени Женевьевы де Голль-Антоньоз
Фотография © 11h45 / предоставлена Atelier Aconcept
Все зоны организованы вокруг округлого внутреннего двора, куда террасами обращены учебные помещения. Спортивные залы вынесены в отдельный угловой корпус. В результате это круговое движение, подхваченное затем и в еще одном внутреннем дворе, и в решении частично озелененной кровли с видовой площадкой, и в цветовом оформлении, задает ритм жизни всего комплекса.
Школа имени Женевьевы де Голль-Антоньоз
Фотография © 11h45 / предоставлена Atelier Aconcept
Школа имени Женевьевы де Голль-Антоньоз
Фотография © 11h45 / предоставлена Atelier Aconcept
Школа имени Женевьевы де Голль-Антоньоз
Фотография © 11h45 / предоставлена Atelier Aconcept
Для отделки фасадов выбрали металлические панели с матовой фактурой двух оттенков и с зеркальной полировкой. Для ограждений использованы перфорированные металлические панели. В интерьер открыты светлые бетонные поверхности, они, по мысли архитекторов, транслируют ощущение защищенности и комфорта. Зеленая кровля, система сбора дождевой воды, энергосберегающее освещение и экономичное центральное отопление позволило комплексу претендовать на французский экологический сертификат BEPOS с рейтингом E3C2 (3 из максимальных 4 баллов по энергоэффективности и самый высокий рейтинг по объему углеродного следа).
Школа имени Женевьевы де Голль-Антоньоз
Фотография © 11h45 / предоставлена Atelier Aconcept
Школа имени Женевьевы де Голль-Антоньоз
Фотография © 11h45 / предоставлена Atelier Aconcept
