RSS
Спортивный центр имени Николы Карабатича
Фото © 11h45

Спортивный центр имени Николы Карабатича


/ Nikola Karabatic Sports Complex

информация:

Atelier Aconcept / Франция
Спортивный центр имени Николы Карабатича
Фото © 11h45

Архи.ру об этом объекте:

22.05.2025

Нина Фролова. Золотая сторона медали

Спортивный центр имени Николы Карабатича под Парижем по проекту бюро Atelier Aconcept получил фасад, вдохновленный многочисленными золотыми медалями этого спортсмена.

читать дальше
Спортивный центр имени Николы Карабатича
Фото © 11h45
Спортивный центр имени Николы Карабатича
Фото © 11h45
Спортивный центр имени Николы Карабатича
Фото © 11h45
Спортивный центр имени Николы Карабатича
Фото © 11h45
Спортивный центр имени Николы Карабатича
Фото © 11h45
Спортивный центр имени Николы Карабатича
Фото © 11h45
Спортивный центр имени Николы Карабатича
Фото © 11h45
Спортивный центр имени Николы Карабатича
Фото © 11h45
Спортивный центр имени Николы Карабатича
Фото © 11h45
Спортивный центр имени Николы Карабатича
Фото © 11h45
Спортивный центр имени Николы Карабатича
Фото © 11h45
Спортивный центр имени Николы Карабатича
Фото © 11h45
Спортивный центр имени Николы Карабатича
Фото © 11h45
Спортивный центр имени Николы Карабатича
Фото © 11h45
Спортивный центр имени Николы Карабатича
Фото © 11h45
Спортивный центр имени Николы Карабатича
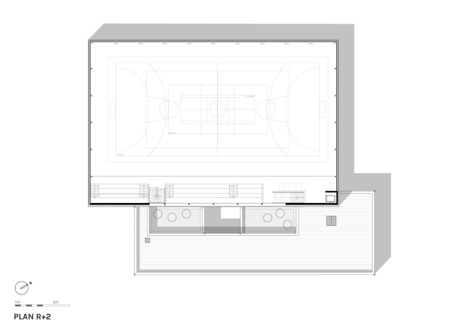
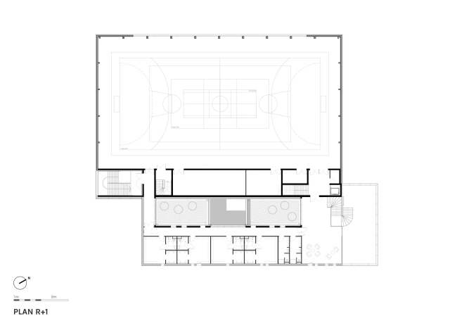
© Atelier Aconcept
Спортивный центр имени Николы Карабатича
© Atelier Aconcept
Спортивный центр имени Николы Карабатича
© Atelier Aconcept
Спортивный центр имени Николы Карабатича
© Atelier Aconcept
Спортивный центр имени Николы Карабатича
© Atelier Aconcept
Спортивный центр имени Николы Карабатича
© Atelier Aconcept
Спортивный центр имени Николы Карабатича
© Atelier Aconcept
Спортивный центр имени Николы Карабатича
© Atelier Aconcept

Избранные архитекторы:

  • Ричард Майер
  • Массимилиано Фуксас
  • Кэнго Кума
  • Жан Нувель
  • Ренцо Пьяно
  • Том Мейн
  • Оскар Нимейер
  • Одиль Декк
  • Заха Хадид

Проект из каталога (случайный выбор)

Избранные постройки:

  • Морской терминал в Салерно
  • Музей искусств Элая и Эдит Броуд
  • Реконструкция Палаццо деи-Диаманти
  • Центр океана и серфинга
  • Жилой комплекс Opus Hong Kong
  • Центр Гетти
  • Небоскрёб Main Tower
  • Национальный музей Китая
  • «Театр архипелага»

Зарубежные новости

Симулятор «зеленой» жизни
05.03.2026

Симулятор «зеленой» жизни

Томас Хезервик
От пещеры до звезды
04.03.2026

От пещеры до звезды

Станислав Субботин
Дарья Кириллова
Горный страж
03.03.2026

Горный страж

Артем Агекян