RSS
Столичный международный центр выставок и конгрессов (CIECC)
Фото © Virgile Simon Bertrand

Столичный международный центр выставок и конгрессов (CIECC)


/ Capital International Exhibition & Convention Centre (CIECC)

информация:

Zaha Hadid Architects
Zaha Hadid Architects / Великобритания
Столичный международный центр выставок и конгрессов (CIECC)
Фото © Virgile Simon Bertrand

Архи.ру об этом объекте:

25.02.2025

Нина Фролова. Ленты и складки

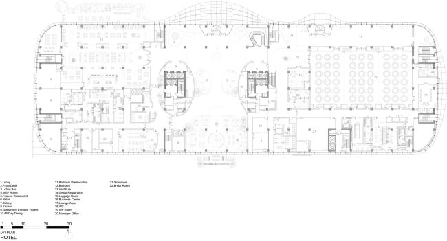
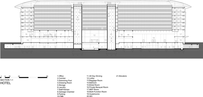
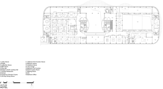
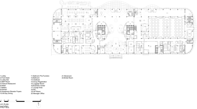
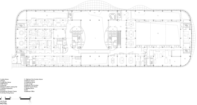
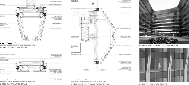
Выставочный центр по проекту Zaha Hadid Architects в Пекине реализован как модульное сооружение, что сократило затраты на строительство и его сроки.

читать дальше
Столичный международный центр выставок и конгрессов (CIECC)
Фото © Virgile Simon Bertrand
Столичный международный центр выставок и конгрессов (CIECC)
Фото © Virgile Simon Bertrand
Столичный международный центр выставок и конгрессов (CIECC)
Фото © Virgile Simon Bertrand
Столичный международный центр выставок и конгрессов (CIECC)
Фото © Virgile Simon Bertrand
Столичный международный центр выставок и конгрессов (CIECC)
Фото © Virgile Simon Bertrand
Столичный международный центр выставок и конгрессов (CIECC)
Фото © Virgile Simon Bertrand
Столичный международный центр выставок и конгрессов (CIECC)
Фото © Virgile Simon Bertrand
Столичный международный центр выставок и конгрессов (CIECC)
Фото © Virgile Simon Bertrand
Столичный международный центр выставок и конгрессов (CIECC)
Фото © Virgile Simon Bertrand
Столичный международный центр выставок и конгрессов (CIECC)
Фото © Virgile Simon Bertrand
Столичный международный центр выставок и конгрессов (CIECC)
Фото © Virgile Simon Bertrand
Столичный международный центр выставок и конгрессов (CIECC)
Фото © Virgile Simon Bertrand
Столичный международный центр выставок и конгрессов (CIECC)
Фото © Virgile Simon Bertrand
Столичный международный центр выставок и конгрессов (CIECC)
Фото © Virgile Simon Bertrand
Столичный международный центр выставок и конгрессов (CIECC)
Фото © Virgile Simon Bertrand
Столичный международный центр выставок и конгрессов (CIECC)
Фото © Virgile Simon Bertrand
Столичный международный центр выставок и конгрессов (CIECC)
Фото © Virgile Simon Bertrand
Столичный международный центр выставок и конгрессов (CIECC)
Фото © Virgile Simon Bertrand
Столичный международный центр выставок и конгрессов (CIECC)
Фото © Virgile Simon Bertrand
Столичный международный центр выставок и конгрессов (CIECC)
Фото © Virgile Simon Bertrand
Столичный международный центр выставок и конгрессов (CIECC)
Фото © Virgile Simon Bertrand
Столичный международный центр выставок и конгрессов (CIECC)
Фото © Virgile Simon Bertrand
Столичный международный центр выставок и конгрессов (CIECC)
© Zaha Hadid Architects
Столичный международный центр выставок и конгрессов (CIECC)
© Zaha Hadid Architects
Столичный международный центр выставок и конгрессов (CIECC)
© Zaha Hadid Architects
Столичный международный центр выставок и конгрессов (CIECC)
© Zaha Hadid Architects
Столичный международный центр выставок и конгрессов (CIECC)
© Zaha Hadid Architects
Столичный международный центр выставок и конгрессов (CIECC)
© Zaha Hadid Architects
Столичный международный центр выставок и конгрессов (CIECC)
© Zaha Hadid Architects
Столичный международный центр выставок и конгрессов (CIECC)
© Zaha Hadid Architects
Столичный международный центр выставок и конгрессов (CIECC)
© Zaha Hadid Architects
Столичный международный центр выставок и конгрессов (CIECC)
© Zaha Hadid Architects
Столичный международный центр выставок и конгрессов (CIECC)
© Zaha Hadid Architects
Столичный международный центр выставок и конгрессов (CIECC)
© Zaha Hadid Architects
Столичный международный центр выставок и конгрессов (CIECC)
© Zaha Hadid Architects
Столичный международный центр выставок и конгрессов (CIECC)
© Zaha Hadid Architects
Столичный международный центр выставок и конгрессов (CIECC)
© Zaha Hadid Architects
Столичный международный центр выставок и конгрессов (CIECC)
© Zaha Hadid Architects
Столичный международный центр выставок и конгрессов (CIECC)
© Zaha Hadid Architects
Столичный международный центр выставок и конгрессов (CIECC)
© Zaha Hadid Architects
Столичный международный центр выставок и конгрессов (CIECC)
© Zaha Hadid Architects
Столичный международный центр выставок и конгрессов (CIECC)
© Zaha Hadid Architects
Столичный международный центр выставок и конгрессов (CIECC)
© Zaha Hadid Architects
Столичный международный центр выставок и конгрессов (CIECC)
© Zaha Hadid Architects
Столичный международный центр выставок и конгрессов (CIECC)
© Zaha Hadid Architects
Столичный международный центр выставок и конгрессов (CIECC)
© Zaha Hadid Architects
Столичный международный центр выставок и конгрессов (CIECC)
© Zaha Hadid Architects
Столичный международный центр выставок и конгрессов (CIECC)
© Zaha Hadid Architects
Столичный международный центр выставок и конгрессов (CIECC)
© Zaha Hadid Architects
Столичный международный центр выставок и конгрессов (CIECC)
© Zaha Hadid Architects
Столичный международный центр выставок и конгрессов (CIECC)
© Zaha Hadid Architects
Столичный международный центр выставок и конгрессов (CIECC)
© Zaha Hadid Architects
Столичный международный центр выставок и конгрессов (CIECC)
© Zaha Hadid Architects
Столичный международный центр выставок и конгрессов (CIECC)
© Zaha Hadid Architects
Столичный международный центр выставок и конгрессов (CIECC)
© Zaha Hadid Architects
Столичный международный центр выставок и конгрессов (CIECC)
© Zaha Hadid Architects
Столичный международный центр выставок и конгрессов (CIECC)
© Zaha Hadid Architects
Столичный международный центр выставок и конгрессов (CIECC)
© Zaha Hadid Architects
Столичный международный центр выставок и конгрессов (CIECC)
© Zaha Hadid Architects
Столичный международный центр выставок и конгрессов (CIECC)
© Zaha Hadid Architects
Столичный международный центр выставок и конгрессов (CIECC)
© Zaha Hadid Architects

Избранные архитекторы:

  • Петер Цумтор
  • Алвару Сиза
  • Бернар Чуми
  • Джон Поусон
  • Том Мейн
  • Одиль Декк
  • Алехандро Аравена
  • Стивен Холл
  • Ренцо Пьяно

Проект из каталога (случайный выбор)

Избранные постройки:

  • Здание администрации порта Антверпена
  • Мусороперерабатывающий завод и ТЭЦ Amager Bakke (ARC) – CopenHill
  • Мастерская фотографа Грасиэлы Итурбиде
  • Башня One Central Park
  • Чайная и ресторан «Боа Нова»
  • Шанхайский всемирный финансовый центр
  • Онкологический центр Мэгги Больницы Найнвеллс
  • ВТЦ Башня 4
  • Романтический парк «Тучков буян»

Зарубежные новости

Симулятор «зеленой» жизни
05.03.2026

Симулятор «зеленой» жизни

Томас Хезервик
От пещеры до звезды
04.03.2026

От пещеры до звезды

Станислав Субботин
Дарья Кириллова
Горный страж
03.03.2026

Горный страж

Артем Агекян