Офисный комплекс в районе The Springs
Фото © CreatAR_Images
Офисный комплекс в районе The Springs
/ The Springs district office development
информация:
-
статус
реализовано -
даты
2018 / — 2024 -
место
Китай, Шанхай -
координаты
31.317380, 121.504579 -
функция
Административно-офисный / офисный комплекс -
теги
Солнцезащитные экраны -
общая площадь
193 540 м2

gmp /
gmp Architekten von Gerkan, Marg und Partner / ГерманияОфисный комплекс в районе The Springs
Фото © CreatAR_Images
Архи.ру об этом объекте:
05.02.2025
Нина Фролова. План-вертушка
Офисный комплекс в районе The Springs в Шанхае по проекту бюро gmp.
читать дальшеОфисный комплекс в районе The Springs
Фото © CreatAR_Images
Офисный комплекс в районе The Springs
Фото © CreatAR_Images
Офисный комплекс в районе The Springs
Фото © CreatAR_Images
Офисный комплекс в районе The Springs
Фото © CreatAR_Images
Офисный комплекс в районе The Springs
Фото © CreatAR_Images
Офисный комплекс в районе The Springs
Фото © CreatAR_Images
Офисный комплекс в районе The Springs
Фото © CreatAR_Images
Офисный комплекс в районе The Springs
Фото © CreatAR_Images
Офисный комплекс в районе The Springs
Фото © CreatAR_Images
Офисный комплекс в районе The Springs
© gmp Architekten
Офисный комплекс в районе The Springs
© gmp Architekten
Офисный комплекс в районе The Springs
© gmp Architekten
Офисный комплекс в районе The Springs
© gmp Architekten
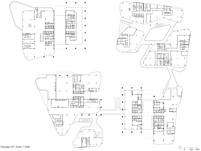
Офисный комплекс в районе The Springs
© gmp Architekten
Избранные архитекторы:
Проект из каталога (случайный выбор)
Избранные постройки:
Зарубежные новости
01.10.2025
Пиранези для первокурсников
30.09.2025
Больше арок
26.09.2025
Бумеранг на скалах
25.09.2025
Архитектурная «дипломатия»
24.09.2025