Многоквартирный дом Wood Up
Фото © Charly Broyez
Многоквартирный дом Wood Up
/ Wood Up residential development
информация:
-
статус
реализовано -
даты
2017 — 2020 / 10.2021 — 07.2024 -
место
Франция, Париж -
координаты
48.826926, 2.385546 -
функция
Жилой / многоквартирный дом -
теги
Дерево, Терраса, Эксплуатируемая кровля -
общая площадь
8949 м2

LAN /
LAN / ФранцияМногоквартирный дом Wood Up
Фото © Charly Broyez
Архи.ру об этом объекте:
24.12.2024
Нина Фролова. Французский лес
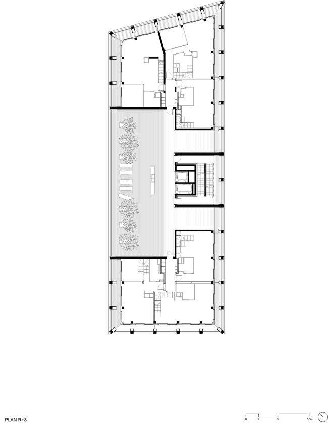
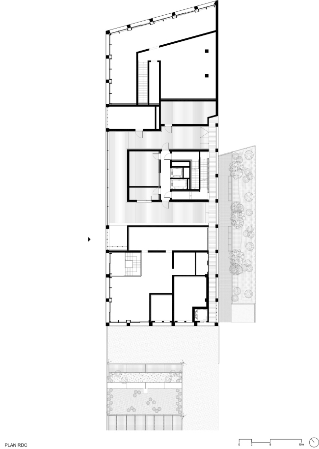
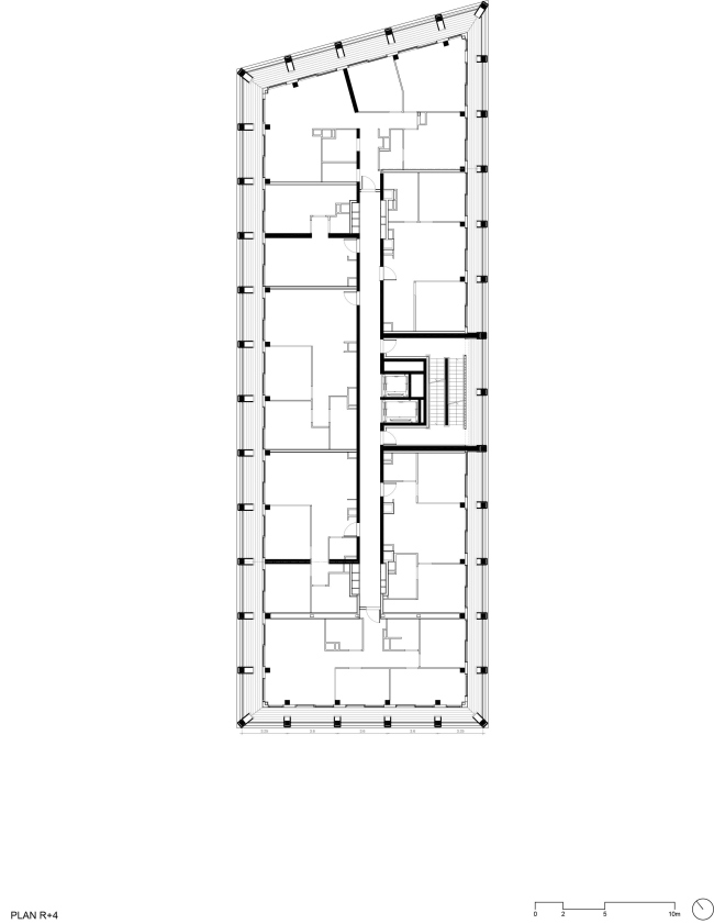
16-этажный жилой дом Wood Up на берегу Сены с гибридной конструкцией из дерева и бетона играет градостроительную роль на границе Парижа и пригородов. Авторы проекта – архитекторы LAN.
читать дальшеМногоквартирный дом Wood Up
Фото © Daisy Reillet
Многоквартирный дом Wood Up
Фото © Daisy Reillet
Многоквартирный дом Wood Up
Фото © Daisy Reillet
Многоквартирный дом Wood Up
Фото © Daisy Reillet
Многоквартирный дом Wood Up
Фото © Nicolas Grosmond
Многоквартирный дом Wood Up
Фото © Charly Broyez
Многоквартирный дом Wood Up
Фото © Charly Broyez
Многоквартирный дом Wood Up
Фото © Charly Broyez
Многоквартирный дом Wood Up
Фото © Charly Broyez
Многоквартирный дом Wood Up
Фото © Charly Broyez
Многоквартирный дом Wood Up
Фото © Charly Broyez
Многоквартирный дом Wood Up
Фото © Charly Broyez
Многоквартирный дом Wood Up
Фото © Charly Broyez
Многоквартирный дом Wood Up
Фото © Charly Broyez
Многоквартирный дом Wood Up
© LAN (Local Architecture Network)
Многоквартирный дом Wood Up
© LAN (Local Architecture Network)
Многоквартирный дом Wood Up
© LAN (Local Architecture Network)
Многоквартирный дом Wood Up
© LAN (Local Architecture Network)
Многоквартирный дом Wood Up
© LAN (Local Architecture Network)
Многоквартирный дом Wood Up
© LAN (Local Architecture Network)
Избранные архитекторы:
Проект из каталога (случайный выбор)
Избранные постройки:
Зарубежные новости
16.10.2025
Крыша из чешуек
15.10.2025
Равнение на Дунай
14.10.2025
«Вычислительная» архитектура
10.10.2025
Жителям каменоломни
09.10.2025