Экстрим-отель «Аврора»
                Фотография © Елизавета Гуровская / предоставлена Архитектурное бюро FANTALIS
        Экстрим-отель «Аврора», построенный в 2023 году по проекту Fantalis Group на излучине реки Камчатка, не имеет конкретного адреса, лишь только географические координаты. Внешне он похож на полярную станцию, перенесенную с бескрайних ледяных просторов в суровую и дикую природу заповедного края. Сходство усиливает и сложность заселения: сюда удобнее всего добираться на вертолете, но можно и шесть часов трястись на внедорожнике из Петропавловска-Камчатского.
Экстрим-отель «Аврора»
                Фотография © Елизавета Гуровская / предоставлена Архитектурное бюро FANTALIS
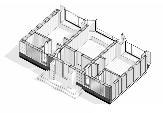
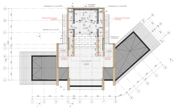
        При проектировании архитекторы учитывали природные особенности местности: рельеф, сезонные паводки, сейсмическую активность. Поэтому номера и ресторан расположены на трехметровой платформе из лиственницы, что кроме безопасности дает и превосходный обзор окрестностей. Именно из-за такого архитектурного решения одноэтажное здание кажется трехэтажным. Территория не огорожена забором, что подчеркивает заботу об экосистеме края и дает ощущение погружения в окружающую среду. В темноте здание почти не освещается снаружи: естественный полумрак дарит ощущение большего единения с природой и не отвлекает от бесконечности звездного неба.
Экстрим-отель «Аврора»
                Фотография © Елизавета Гуровская / предоставлена Архитектурное бюро FANTALIS
        Несмотря на изначальную идею уйти от стандартных домов-срубов в тайге, платформу выполнили из бревен, а разработанная концепция отсылает к древнему способу строительства мостов. Крыша смотровой площадки имитирует пагоду, намекая на историческую связь с буддизмом и близостью Японии и Поднебесной. Фасады выполнены из натуральных материалов: дерева, дранки, меди, стали и стекла.
Экстрим-отель «Аврора»
                Фотография © Елизавета Гуровская / предоставлена Архитектурное бюро FANTALIS
        Экстрим-отель «Аврора»
                Фотография © Елизавета Гуровская / предоставлена Архитектурное бюро FANTALIS
        Экстрим-отель «Аврора»
                Фотография © Елизавета Гуровская / предоставлена Архитектурное бюро FANTALIS
        Панорамные окна решают не только вопрос с дополнительным освещением, но и дают пространству больше легкости и воздуха, тогда как обилие дерева и металла больше отсылает к брутальному стилю, подходящему для сурового края.
Экстрим-отель «Аврора»
                Фотография © Елизавета Гуровская / предоставлена Архитектурное бюро FANTALIS
        Отель полностью автономен: электричество генерируют установленные на кровлю солнечные панели, есть собственное водоснабжение и канализация. Даже в сложных погодных условиях системы здания обеспечат бесперебойную работу.
Экстрим-отель «Аврора»
                Фотография © Елизавета Гуровская / предоставлена Архитектурное бюро FANTALIS
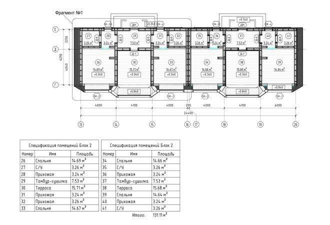
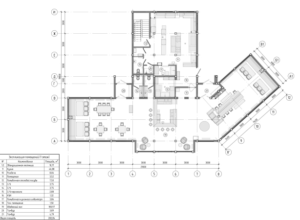
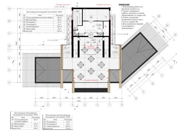
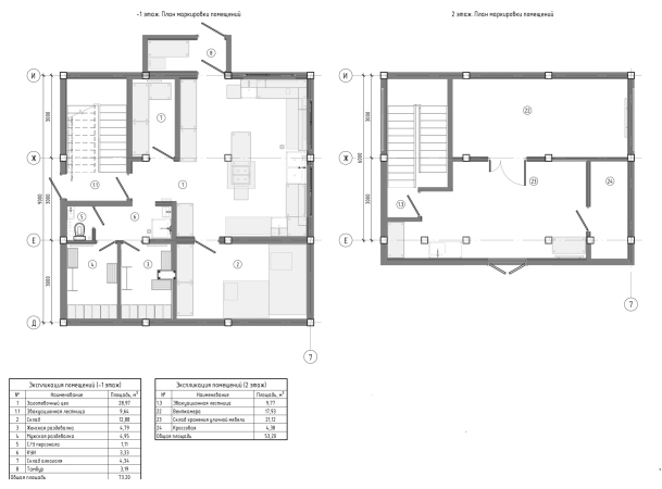
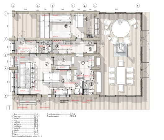
        Обстановка сродни закрытому клубу. Максимальная вместимость – 32 человека. Компактные номера разбиты на пары, каждую объединяет общая терраса. Сдержанные интерьеры спокойных тонов выполнены с использованием натуральных материалов и массивной мебели. Здесь нет никаких раздражителей, ничто не отвлекает от главного – невероятной красоты полуострова. При этом дозировано используются и этнические мотивы: расписное панно на потолке в ресторане, авторская люстра в обеденной зоне.
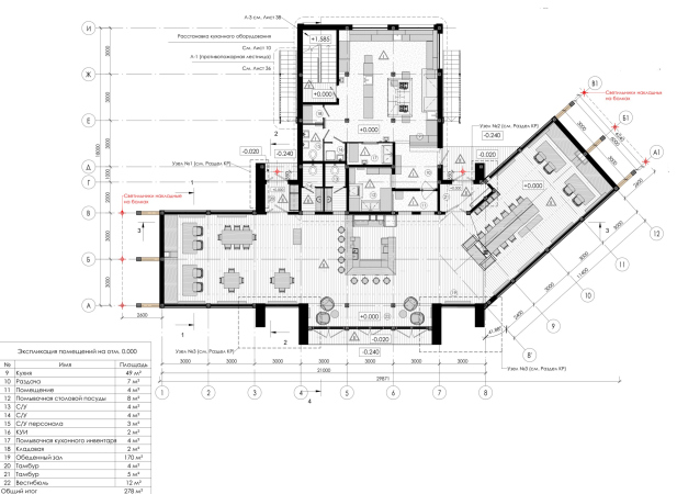
Вертолетная площадка и небольшое туристическое агентство на территории позволяют выполнить любой запрос искушенного туриста. Поскольку отель расположен в самом сердце Камчатки, за полчаса полета можно добраться до Кроноцкого заповедника, Курильского озера и Долины гейзеров. Также на территории есть парная с настоящей русской печью, ресторан с локальными специалитетами, летняя терраса с выходом на смотровую площадку.
Экстрим-отель «Аврора»
                Фотография © Елизавета Гуровская / предоставлена Архитектурное бюро FANTALIS
        Экстрим-отель «Аврора»
                Фотография © Елизавета Гуровская / предоставлена Архитектурное бюро FANTALIS
        Экстрим-отель «Аврора»
                Фотография © Елизавета Гуровская / предоставлена Архитектурное бюро FANTALIS
        Экстрим-отель «Аврора». Генеральный план
                © Территории / предоставлно Архитектурное бюро FANTALIS
        
 
            
            
        
 
                            
 
                             
                             
                             
                             
                             
                             
                             
                                         
                                         
                                         
                                         
                                         
                                         
                                         
                             
                             
                             
                             
                                         
                                         
                                         
                                         
                                         
                                         
                                         
                                         
                                         
                                         
                                         
                                         
                                         
                                         
                                         
                                         
                                         
                                        
 
                                                                        
                                                                     
                                                                        
                                                                     
                                                                        
                                                                     
                                                                        
                                                                     
                                                                        
                                                                     
                                                                        
                                                                     
                                                                        
                                                                     
                                                                        
                                                                     
                                                                        
                                                                     
                                                                        
                                                                     
                                                                        
                                                                     
                                                                        
                                                                     
                                                                        
                                                                     
                                                                        
                                                                     
                                                                        
                                                                     
                                                                        
                                                                     
                                                                        
                                                                     
                                                                        
                                                                     
                                                                        
                                                                     
                                                                        
                                                                     
                                                                        
                                                                     
                                                                        
                                                                     
                                                                        
                                                                     
                                                                        
                                                                     
                                                                        
                                                                     
                                                                        
                                                                     
                                                                        
                                                                     
                                                                        
                                                                     
                                                                        
                                                                     
                                                                        
                                                                     
                                                                        
                                                                     
                                                                        
                                                                     
                                                                        
                                                                     
                                                                        
                                                                     
                                                                        
                                                                     
                                                                        
                                                                     
                                                                        
                                                                     
                                                                        
                                                                     
                                                                        
                                                                     
                                                                        
                                                                     
                                                                        
                                                                     
                                                                        
                                                                     
                                                                        
                                                                     
                                                                        
                                                                     
                                                                        
                                                                     
                                                                        
                                                                     
                                                                        
                                                                     
                                                                        
                                                                     
                                                                        
                                                                     
                                                                        
                                                                     
                                                                        
                                                                     
                                                                        
                                                                     
                                                                        
                                                                     
                                                                        
                                                                     
                                                                        
                                                                     
                                                                        
                                                                     
                                                                        
                                                                     
                                                                        
                                                                     
                                                                        
                                                                     
                                                                        
                                                                     
                                                                        
                                                                     
                                                                        
                                                                     
                                                                        
                                                                     
                                                                        
                                                                     
                                                                        
                                                                     
                                                                        
                                                                     
                                                                        
                                                                     
                                                                        
                                                                     
                                                                        
                                                                     
                                                                        
                                                                     
                                                                        
                                                                     
                                         
                                                                        
                                                                    