Описание предоставлено архитекторами
DKC – один из крупнейших производителей кабеленесущих систем, решений для автоматизации, IT и распределения электроэнергии. В технопарке в Твери компания открыла Академию – отдельный корпус для обучения клиентов и сотрудников, рассчитанное на 200 человек. Фасадами, входной группой и интерьерами занималось бюро Nefa Architects.
Дмитрий Овчаров, Nefa Architects
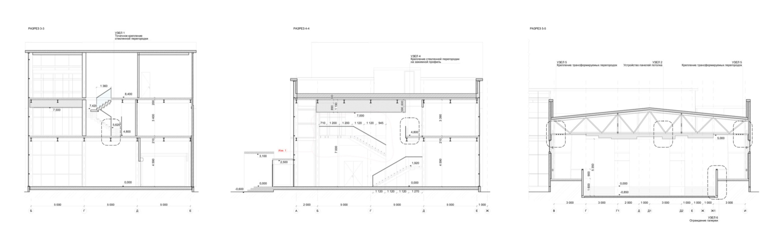
Всегда очень здорово, когда удается работать со зданием целиком, проектируя не только интерьеры, но и фасады. В данном проекте нам удалось создать образ легкого прозрачного пространства, перетекающего из экстерьера в интерьер.
DKС академия
Фотография © Илья Иванов / предоставлена ′nefa′architects′
DKС академия
Фотография © Илья Иванов / предоставлена ′nefa′architects′
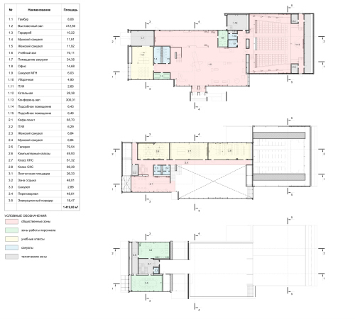
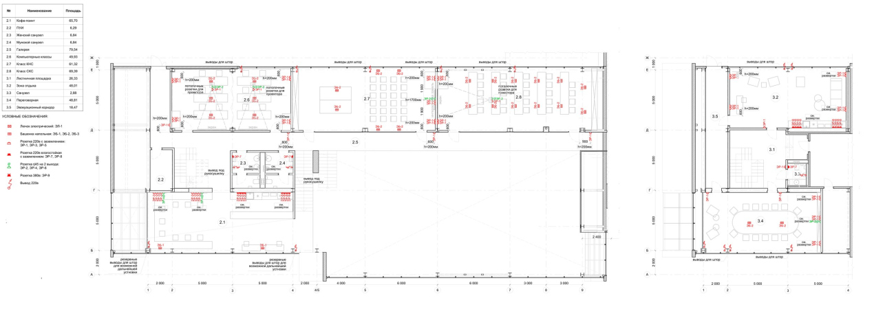
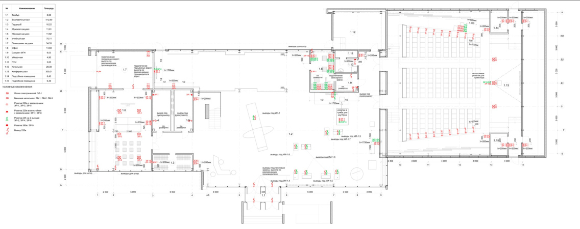
В здании разместился учебно-исследовательский центр, учебные аудитории и офисные помещения с переговорными комнатами, конференц-зал для общих собраний, кафетерий, а также музей, задача которого – продемонстрировать достижения предприятия и результаты многолетней производственной деятельности.
Интерьер оформлен в двух корпоративных цветах и наполнен производственной атмосферой. Отсутствие излишнего декора выводит на первый план цвет, свет, воздух и геометрию. В холле размещен макет территории технопарка, экспонируются новинки ДКС, а центральное место занял отреставрированный экструдер, который в 1998 году произвел первые метры ПВХ-трубы – первого продукта, выпущенного DKC. Экструдер установлен на постамент, обрамленный световым кольцом. Для технического оснащения использовалась продукция производства DKC.





