В 2022-2023 учебном году студентам были предложены территории вдоль Лиговского и Кондратьевского проспектов, а также знаковая для города площадка, расположенная на оконечности Петровского острова у здания яхт-клуба. В настоящий момент на Петровском острове возводится много новых жилых комплексов, а территория у яхт-клуба еще оставляет возможности для творческих вариаций.
Для публикации отобраны лучшие проекты последнего выпуска с проектами для Санкт-Петербурга, которые получили высокую оценку комиссии, а также награды на всероссийском конкурсе дипломных работ по архитектуре и дизайну.
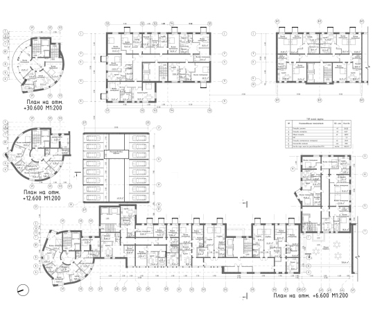
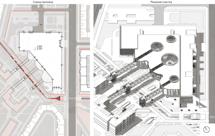
Музейно-выставочный комплекс на Петровском острове, СПбГАСУ 2023. Руководители: Перов Ф.В., Кокорина О.Г., Девятова Ю.А., Венатовская Л.А.
© Краснов Роман
Музейно-выставочный комплекс на Петровском острове
Краснов РоманРуководители: Перов Ф.В., Кокорина О.Г., Девятова Ю.А., Венатовская Л.А.
Предпроектные исследования включили изучение территория Петровского острова, выявление ее проблематики и градостроительного потенциала. Концепция предполагает появление новых общественных центров, пешеходных связей, рекреационных зон, а также развитие яхт-клуба на Петровском острове. Оно включает появление нового музейно-выставочного комплекса, который сформирует насыщенное функциями общественное пространство на набережной и станет акцентным завершением линии застройки Петровской улицы.
Учебно-тренировочный центр на Петровском острове
Слепченко АльбинаРуководители: Перов Ф.В., Кокорина О.Г., Девятова Ю.А., Венатовская Л.А.
Проект предлагает возведение комплекса учебно-тренировочного центра со спортивными функциями и гостиницей на Петровском острове. Новая организация территории создаст условия для обучения молодого поколения яхтенному делу, а также для ремонта и хранения яхт. Каждая функция вынесена в отдельное здание и имеет свой архитектурный облик. Здание гостиницы – высотная доминанта композиции, напоминающая парус. Ее продолжат объемы учебного и спортивного центров. Общий стилобат комплекса объединяет все три функциональных объема. На кровле расположен амфитеатр, с которого посетители могут пройти на открытый балкон, устроенный для наблюдения за тренировками яхтсменов. Рядом с яхт-клубом организована центральная площадь и зеленые площадки. Здание учебно-тренировочного центра формирует уличный фронт и водные панорамы. Планировка здания позволяет организовать у воды закрытое пространство для тренировок и хранения яхт спортсменов.
Культурный комплекс на Лиговском проспекте
Мисюра ЕкатеринаРуководители: Иванов И.А., Якуненкова М.С., Кузьмина А.А., Еремеева А.Ф.
Проектируемый многофункциональный культурный комплекс расположен на пересечении Тосиной улицы и Лиговского проспекта. Градостроительная роль комплекса – формирование застройки Тосиной улицы и обеспечение пешеходной связности между будущей станцией метро «Боровая» и пешеходным бульваром в квартале проектирования. Облик здания обусловлен историческим прошлым местности: четыре функциональных блока в сочетании с высотными акцентами в виде трубы и смотровой башни стилизованы под промышленную архитектуру. Планировочная структура здания и композиционное решение фасадов отсылают к искусству авангарда – периоду промышленного освоения территории проектирования.
Жилой комплекс в структуре квартала
Незнамова АлисаРуководители: Иванов И.А., Якуненкова М.С., Кузьмина А.А., Еремеева А.Ф.
Форма участка стремится к вытянутому прямоугольнику. Комплекс расположен вблизи Лиговского проспекта и железеной дороги и защищает от шума дворовое пространство, пространство пешеходного бульвара и детского сада. На первых этажах предусмотрены встроенные помещения.
Ряд шумозащитных секций расположен в 55 метрах от магистрали, что обеспечивает достаточное расстояние для рассеивания шума. Для защиты от шума жильцов западного корпуса предусмотрена особая планировка помещений: к примагистральному фасаду примыкают нежилые помещения (кухни, санузлы, холлы), жилые комнаты ориентированы во двор.
За счет деления основного объема здания на три формы, комплекс напоминает локомотив с вагонами. Благодаря этому создается пешеходный путь вдоль фасада с входными акцентами. Эркеры напоминают вращающийся механизм и позволяют создать в радиальном плане помещения с прямыми углами.
Культурный комплекс на Кондратьевском проспекте
Кирей НатальяРуководители: Михалычев А.В., Иванов С.И., Супранович В.М., Шедогубова Е.Ю.
Многофункциональный комплекс расположится на месте завода «Красный Выборжец». Главной особенностью выставочного центра являются сады в уровне третьего этажа с видом на многосветный атриум, перекрытый структурной плитой с системой зенитных фонарей. Комплекс связан с бизнес-кластером на территории ОКН надземными мостиками, напоминающими об историческом прошлом промышленных территорий и обрамляющими пешеходную аллею квартала с железнодорожными путями, продолжающими траекторию исторических путей на территории завода. На фасад выходят объемы, наполненные инсталляциями из растений (оборудованные системами поддержания температурно-влажностного режима), с целью привлечения внимания посетителей и идентификации комплекса.
