Бюро SLOI architects – единственное из молодых петербургских, регулярно проходящее через процедуру градсовета. Это означает, что архитекторам удается получать достаточно крупные заказы для важных городских территорий, но проекты по той или иной причине вызывают вопросы у главного архитектора. Некоторые из них в конечном итоге доходят до реализации, другие получают премии, но значительная часть все же уходит в стол, даже если была высоко оценена профессиональным сообществом. Тем не менее из года в год архитекторы SLOI продолжают гнуть оппозиционную линию, основывая творческие поиски не на петербургском стиле или идентичности, а на собственных предпочтениях – например, руководителю бюро Валентину Когану симпатично такое направление как метаболизм. В городе-памятнике это воспринимается не иначе как дерзость, поэтому каждый проект порождает деятельное сопротивление как минимум в социальных сетях.
Гостиничный комплекс на Воронежской улице – очень характерная для SLOI architects работа: по локации на периферии исторического центра, по непривычной для города эстетике и по сложному ее принятию.
Гостиница на Воронежской улице. Вид с Курской улицы
© Слои
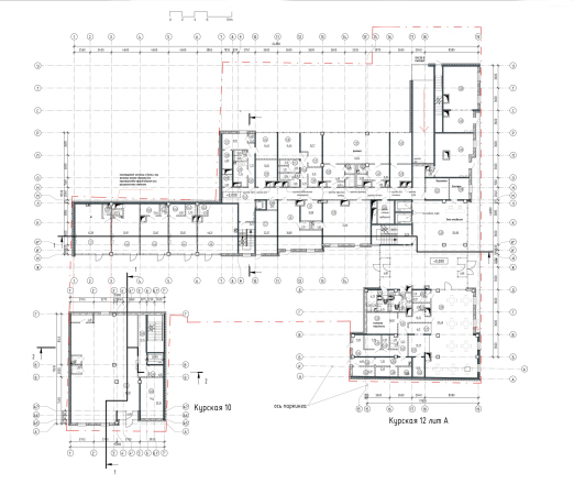
Здание планируют строить недалеко от Лиговского проспекта и Обводного канала – в тихих кварталах исторической и преимущественно рядовой застройки не выше шести этажей. Сложное пятно участка выходит сразу на две улицы и забирается во «двор», вплотную примыкая к скверу и двум дореволюционным домам и поглощая дворовый флигель, который будут сносить.
Планировка комплекса не уступает в своей сложности конфигурации участка, но при этом она предельно логична. Прежде всего, архитекторы приводят в порядок структуру двух улиц, закрывая «прорехи» Курской и Воронежской двумя корпусами. Их высота по сравнению с соседями значительна – 9 этажей против 4, но размер скрадывается постепенным наращиванием объемов, многочисленными террасами и отступами. Так, секция, выходящая на Воронежскую улицу, начинает расти, ориентируясь на конек крыши двухэтажного дома, постепенно достигает пика, а затем снова спускается до 7 этажей. При этом «слои» верхних этажей также постепенно «задвигаются», благодаря чему усиливается ощущение горы или скалы. Эту аллюзию усиливает и то, как решен главный вход, к которому пешехода постепенно подводит фасад: он располагается под «навесом» из выступающих этажей, напоминая грот или пещеру.
Из девятиэтажного фрагмента «главной» секции во двор прорастает еще несколько объемов. Прием ступенчатого фасада применяется и здесь, а за счет включения сплошного остекления «вырезается» кусок из общей массы, что делает ее значительно легче. Весь комплекс, таким образом, набран из ячеек-модулей, не имеет четких границ и являет собой пластичную композицию с определенной степенью недосказанности, которая позволяет зрителю додумывать и интерпретировать предложенный образ – все это является выражением идей метаболистов.
Гостиница на Воронежской улице. Вид Курской улицы
© Слои
Еще одна важная часть проекта – это срежиссированные пространства между зданиями. Двухсветный прозрачный вестибюль и сохраненные пустоты позволяют с улицы увидеть зеленый двор и сквер, тем самым создаются интригующие пространства и приглашающие ракурсы. Как это часто и бывает в Петербурге, когда идешь по улице, видишь открытую арку, в ней кусочек двора – и уже не можешь не зайти.
Гостиница на Воронежской улице. Вид из сквера
© Слои
Гостиница на Воронежской улице. Вид из дворика
© Слои
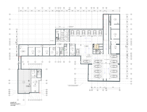
На первом этаже комплекса откроются кафе, офисы, а также коворкинг и фитнес центр. Подземная автостоянка вместит 33 машины.
Проект, при всей своей свежести и заключенной в нем энергии, не встретил большой поддержки: на градсовете получил больше «против», чем «за», а в городских сообществах критиковался за высоту и уплотнительный характер застройки, которые к архитекторам, в общем-то, не имеют отношения. Валентин Коган рассказывал, что борясь за сохранение чистоты идеи на приеме у главного архитектора даже ставил Баха – и это каким-то образом в помогало. Так или иначе, шанс на реализацию есть – сейчас бюро разрабатывает стадию проекта, так что архитектурный ландшафт Петербурга вскоре может получить прецедент чего-то действительно нового и самобытного.
