От редакции
Цвет имеет решающее значение для восприятия интерьера. В некоторых случаях точно подобранный оттенок способен стать главным героем всего проекта и выразителем ценностей и преимуществ содержимого и функции пространства. Особенно в тех случаях, когда архитекторы и дизайнеры сознательно выбирают путь минимизации пластических интервенций и словно отдают пространство во власть цвета.Примером именно такого дизайна, на наш взгляд, является интерьер магазина Lavarice в ТРЦ «Саларьево». Этот бренд известен своими линиями одежды и нижнего белья, а также купальников из современных высокотехнологичных тканей, в которых в оптимальной пропорции сочетаются натуральные и искусственные материалы. Бренд уделяет особое внимание комфорту и тактильности белья, вплоть до разработки отдельной линии с красноречивым названием «Вторая кожа».
Магазин Lavarice Store
Фотография @ Дмитрий Суворов / предоставлена Sinitsa Buro
И вот для такого бренда, ставящего во главу угла чувственное удовольствие от использования его продукции, бюро «Синица» разработало интерьер магазина, в котором пластика и колористика подчинены той же задаче – добиться максимального комфорта покупателя: визуального, тактильного и психологического.
Поставленная задача достигается двумя способами: максимальной сдержанностью в планировочных и пластических решениях и тотальным внедрением фирменного цвета, в который окрашено буквально все в интерьере. Стены, пол, потолок, мебель и даже рейлы для одежды и встроенные в потолок светильники – все выполнено в одном и том же цвете. Тут было бы уместно назвать этот оттенок, но приходится признать, что точное название или RAL нам неизвестны.
Магазин Lavarice Store
Фотография @ Дмитрий Суворов / предоставлена Sinitsa Buro
Быстрый поиск в интернете дает огромное количество очень похожих и крайне соблазнительных по названиям светло-розовато-бежево-сероватых оттенков. Судите сами: «цвет ангельского крыла», «цвет розовой пуховки», «жемчужный», «цвет морской пены». Скорее всего, и у Lavarice, и у архитекторов есть свое название для выбранного цвета, но нас интересует не оно, а то, как этот цвет работает в интерьере.
А работает он прекрасно. Сочетание этой светлой теплой цветовой дымки и плавно изгибающихся стен создает ощущение зыбкой реальности, в которой одно пространство мягко перетекает в другое, а один элемент, например колонна, соединяется с другим – со стеной или демонстрационной нишей. Мягкость и текучесть торгового зала исподволь завлекают покупателя вглубь помещения, в круглую комнату перед примерочными, чья выверенная идеальность ставит финальный акцент.
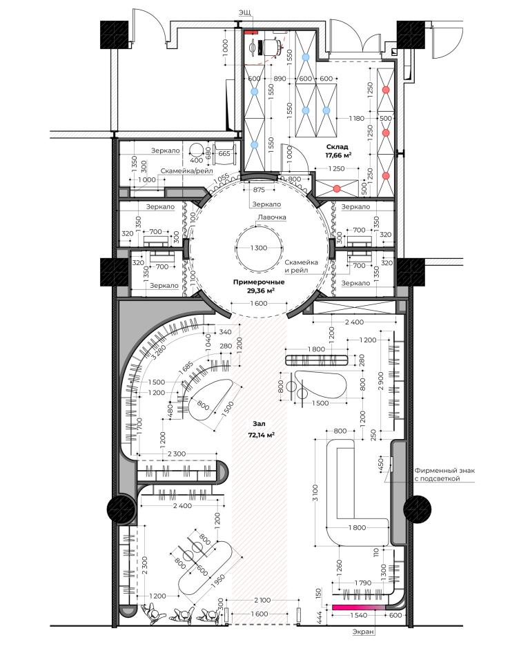
Магазин Lavarice Store. Общий план
@ Sinitsa Buro
Некоторое время назад мы публиковали один из магазинов бренда Lavarice, интерьер которого создало бюро Gulyaev+Tsakharias, и, сравнивая его с новым магазином в ТРЦ «Саларьево», видно, какой путь прошел бренд и как именно влияют архитекторы и дизайнеры на его имидж. Казалось бы, и там, и там посетителя встречает достаточно лаконичный интерьер с уже узнаваемым цветом. В пространстве доминируют криволинейные поверхности и элементы.
Но 3 года назад для привлечения внимания клиентов интерьеру требовались дополнительные арт- и дизайн-объекты: имитация каменной стены и настоящие каменные валуны, зоны селфи и свето-цветовое шоу в коридоре. Сегодняшний интерьер от бюро «Синица» – это пространство, которое излучает спокойную уверенность и не нуждается в спецэффектах. Бренд заслужил свое место на рынке и своих преданных покупателей. И в дизайне магазина чувствуется этот класс и уровень самопозиционирования.
Сохранилась атмосфера магазина, но кажется, что все ее компоненты – ощущение чувственности и комфорта, выверенности каждой детали и продуманности ее до мелочей, почти гипнотической колористики и тактильности залитых рассеянным светом поверхностей – как будто доведены до своего абсолюта.
Описание предоставлено архитекторами
Интерьер Lavarice в ТРЦ «Саларис» – это развитие архитектурной концепции бренда через форму, масштаб и свет. Пространство построено на контрасте мягкой пластики и четкой геометрии: цилиндрическая примерочная вступает в диалог с прямыми линиями колонн и потолка, формируя динамичную, но уравновешенную композицию.
Магазин Lavarice Store
Фотография @ Дмитрий Суворов / предоставлена Sinitsa Buro
Центральным элементом стала скульптурная примерочная – объем со своим световым сценарием, ставший эмоциональным ядром интерьера и прототипом для дальнейших магазинов сети. Свет здесь работает как архитектурный инструмент: он мягко переотражается в зеркалах, не искажает оттенки кожи и создает камерную атмосферу.
Монохромная песочная палитра, матовые фактуры штукатурки и тонкие металлические рейлы формируют ощущение естественности и визуальной чистоты. Пространство выстроено как прозрачная последовательность – от входа к демонстрационной зоне и далее к примерочным – с сохранением глубины перспективы и игры отражений.
Проект демонстрирует, как архитектура может транслировать ценности бренда не через декор, а через объем, материал и свет, превращая коммерческий интерьер в личный, почти ритуальный опыт.
