Горка Дом
© Snegiri Architects
Дом использует природные достоинства контекста по-максимуму: он приближен к теневому торцу сравнительно небольшого прямоугольного участка и обращен к нему «спиной» – два этажа, внешние стены покрыты черным деревом, окон не очень много, хотя среди них встречаются светоносные угловые. Справа от бокового входа в нише очаровательная поленница, вход отмечен козырьком с подсветкой и уголком из стеклоблоков: они красивы, днем освещают прихожую, а вечером дают понять, включен ли внутри свет. И все же с этих трех сторон дом – скорее «крепость», строго-черная и довольно суровая.
Самое интересное – с четвертой стороны, обращенной к участку и на солнечную южную сторону. Таким образом удалось оставить участок светлым и максимально «поймать» солнечные лучи и тепло.
С этой стороны объем дома «срезан» – от крыши до земли образуется «горка», вверху цельная, в уровне нижнего этажа двухчастная, поскольку крылья (или ноги?) расступаются, оставляя место для выреза просторной террасы, приподнятой над уровнем земли сантиметров на 50, с большими стеклами двухъярусной гостиной за ней. В скосах проделаны проходы для удобного передвижения между террасой и участком.
Горка Дом
© Snegiri Architects
Скошенная часть кровли полностью озеленена, ее «пирог», – рассказывают авторы – «хитроумно составлен на базе плоских зелёных крыш Технониколь», и засажен неприхотливым очитком. Как будто лужайка в какой-то момент начинает подъем и превращается в газон. У скоса кровли, конечно, нет цели обмануть глаз и прикинуться естественным склоном, для этого он слишком прям, но издали дом отлично «маскируется» в зеленом окружении.
С южной стороны облицовочная лиственница в основном перестает быть черной, появляется желтоватый естественный цвет, который перекликается с деревом в интерьере – дом не только становится более теплым, но и «раскрывается» к лужайке.
Зимой же дом, надо признать, становится похож на «катальную горку» Екатерины II в Ораниенбауме – так и хочется предавить себе, что здесь можно прокатиться. Но нет, нельзя.
Горка Дом
© Snegiri Architects
Зеленая природная составляющая важнее. Тем более что терраса отступает не просто так, а оставляя место для пары сосен, которые архитектор и заказчик решили сохранить. То есть форма мотивирована и вписана в окружение – хотя нельзя сказать, что подчинена: дом вполне заметен, скоре перед нами союз человеческого ratio с естественными материалами, в том числе – землей и растениями, и удачными условиями.
Как бы ни было все аккуратно сделано и как бы ни был красив очиток, но в какой-то момент все же скажешь – блиндаж. Вокруг лес, из зеленого склона торчит металлическая труба, ну точно блиндаж. Есть в нем что-то крепостное. Вот и возвышающаяся справа башня хозяйской спальни – этакий микро-донжон – поддерживает некоторую толику оборонительных ассоциаций: три скорее закрытые черные стены, скосы-контрфорсы... В конце концов, дом-замок, дом с башней стал до некоторой степени паттерном коттеджного Подмосковья. Но здесь не то. Всякое сходство, как говорится, случайно. Скорее это сфинкс с треугольными лапами, улегшийся понаблюдать за березами на своей лужайке.
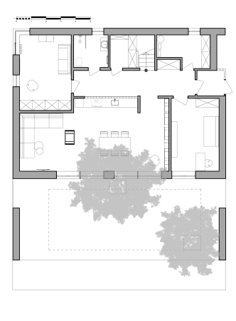
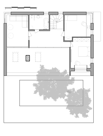
Внутри дом устроен логично: двусветная кухня-гостиная за террасой полностью помещена под скатом, внизу ее пространство освещено окнами в пол, вверху – двумя мансардными окнами в зеленом скосе. Над кухней – балкон второго этажа, чуть сбоку камин, его-то труба и возвышается над зеленой кровлей.
Внутри, как и снаружи, дом лаконичен и стремится к естественным материалам, белое сочетается в черным, «бетонным» серым и деревом естественного оттенка. Замечательна лестница без перил и черная ретро-ванна с деревянным потолком.
Впрочем, конструктивно дом состоит из монолитного бетонного каркаса и обшит лиственницей, пропитанной, как подчеркивает автор, натуральным льняным маслом. Так что дерево здесь – в отделке, но его много и внутри, и снаружи.
Помимо «зеленой» внешности дом стремится к пассивности и энергоэффективности: «оснащен энергосберегающими окнами, системой вентиляции с рекуперацией воздуха и полностью утеплен по периметру <...> предусмотрена многоступенчатая система очистки воды». Заказчик увлечен инновациями, так что внутри установлена система «умного дома», которая включает охранную систему, а на парковке рядом с домом планируется установить зарядку для Tesla.
Автор проекта Никита Капитуров с макетом Горки Дома
© Snegiri Architects
