От участников конкурса ждали такое планировочное и архитектурное решение квартала, которое отвечало бы всем современным требованиям к комфортной городской среде. Необходимо было предусмотреть качественные дворовые и общественные пространства, продумать пешеходные связи, создать необходимую инфраструктуру.
Состязание проходило в два этапа: квалификационный отбор и собственно разработка проектов командами-финалистами. В тройку лучших вошли бюро Citizenstudio, Semrén & Månsson и Архитектурная мастерская Максима Атаянца. По условиям конкурса, проект победителя планировалось реализовать, но победителями признали сразу двоих участников – Citizenstudio и Semrén & Månsson. Что будет дальше – не сообщается. А мы пока представляем проекты всех финалистов.
Citizenstudio
Концепция жилой застройки центрального квартала Белгорода
© Citizenstudio
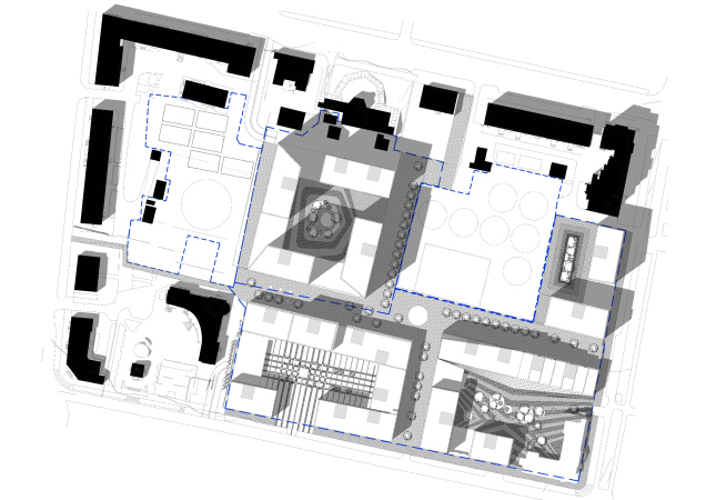
Суть концепции Citizenstudio ясна из ее названия – «Четыре двора». Среди ключевых тезисов проекта: дворы комфортного городского масштаба, постепенное повышение высотности зданий (от 2 до 20 этажей), внутриквартальные пешеходные связи, единое общественное пространство, возможность поэтапной реализации.
Концепция жилой застройки центрального квартала Белгорода. Генеральный план
© Citizenstudio
Архитекторы стремились максимально деликатно вписать свои четыре двора в существующий контекст центральной части города. Малоэтажная застройка первой линии не спорит с масштабом исторических зданий, а вальмовые кровли выходящих на Свято-Троицкий бульвар зданий подчеркивают органичность современного вмешательства. Высотность домов повышается к центру квартала, и самые высокие из них оказываются наименее заметными. Объединить новые постройки с существующими призвана и облицовка выходящих на бульвар домов светлым камнем. Фасады зданий второй линии – кирпичные.
Четыре лота/двора пронизаны пешеходными связями, на пересечении которых образуется небольшая внутриквартальная площадь. Жители квартала, находясь прямо в сердце города, смогут чувствовать себя уединенно благодаря закрытым дворам и тихому, защищенному от шума и суеты общественному пространству.
Semrén & Månsson
Концепция жилой застройки центрального квартала Белгорода
© Semrén & Månsson
Этот проект посвящен поиску оптимального баланса между приватностью и публичностью. Архитекторы постарались одновременно обеспечить жителей квартала личным пространством, а всех горожан – новыми возможностями для прогулок, отдыха и общения.
Концепция предполагает: бережное отношение к архитектурному наследию, уплотнение сети городских пешеходных улиц и бульваров, формирование замкнутых безопасных жилых дворов без автомобилей, использование особенностей рельефа для создания общественных пространств.
Концепция жилой застройки центрального квартала Белгорода. Генеральный план
© Semrén & Månsson
Высотность зданий меняется от периметра к центру участка с 8 до 20 этажей. Кровли – активно эксплуатируемые. Цветовая гамма и текстура фасадных материалов подбирались с учетом местного контекста: в регионе добывают известняк, мел и песок.
Все стоянки «спрятаны» под землей – так территория квартала полностью освобождается от движения личного транспорта. Благодаря перепадам рельефа, архитекторам удалось создать вертикальное зонирование – общедоступные и приватные зоны расположены на разных уровнях.
Максим Атаянц
Концепция жилой застройки центрального квартала Белгорода
© Максим Атаянц
Миссия третьего проекта, который жюри отметило как финалиста конкурса – «закрепить историческую память о наследии» Белгорода, города Засечной черты. Участок занимает примерно четвертую часть территории бастионных укреплений третьей крепости Белгорода, и в значительной степени совпадает с прямоугольником митрополичьего двора, впоследствии Троицкого монастыря, что хорошо видно из наложения планов (см. заметку краеведа и статью археолога).
Концепция жилой застройки центрального квартала Белгорода. Наложение плана XVIII в. и территории проектирования
© Максим Атаянц
И хотя от белгородской крепости не осталось практически ничего, а от Троицкого собора (1690-1707) только контуры лепесткового плана на площади к юго-западу от рассматриваемого участка, – Максим Атаянц, в память об исторических укреплениях, превратил свой вариант ЖК в подобие крепости с двумя контурами: внутренний дом, высокий, 12-этажный, представляет собой замкнутый прямоугольный контур с арками, трактованный как «детинец», внешний – крупную П-образную рамку 7-этажной высоты, «крепость».
Концепция жилой застройки центрального квартала Белгорода
© Максим Атаянц
Вместе здания приобретают силуэт горы, что усилено рельефом и множеством лестниц, открывающихся через высокие арки. Территорию между внешним и внутренним домом Максим Атаянц предлагал превратить во «внутреннюю пешеходную зону отдыха «светлый сад», закрытый для проезда машин, но с полуподземной трехуровневой парковкой под ним. В «саду» было предложено посадить плодовые деревья и разместить частные палисадники жителей первых этажей. «Сад» планировался как открытый для горожан, с прогулочной галереей и общественной зоной в северной части.
Предложенная архитектура напоминает здания 1930-х годов, созвучные окружающей послевоенной застройке. Вариант спокойной классики с горизонтальными полосами руста, балконами и эркерами, фронтонами, вальмовыми кровлями и чередой лестниц в арочных проемах может напомнить как дом Военно-инженерной академии архитектора Ильи Голосова на Покровском бульваре, так и дом Моспроекта-3 на Садовом кольце недалеко от Яузы. Безусловно привлекательную часть проекта, помимо исторических аллюзий, составляет «фирменная» графика Максима Атаянца, хотя, по собственному признанию автора, он сам остался не очень доволен результатом.
