|
В июле завершилась Летняя архитектурная школа 2.0 Санкт-Петербурга и Ленинградской области. В этом году она проводилась уже во второй раз и включала четыре проекта по развитию и благоустройству территорий деревни Низино. Знакомим с работами победителей.
Подведены итоги Летней архитектурной школы 2.0 Санкт-Петербурга и Ленинградской области, посвященной творчеству А.И. Штакеншнейдера.
Школа организована Комитетом градостроительной политики Ленинградской области при содействии Совета по архитектуре и градостроительству ЛО и Северо-Запада РФ Санкт-Петербургского союза архитекторов. Партнеры: «ЛСР. Стеновые», «Краски Фридлендеръ», ГК «Невский Альянс», «BERKANO», «Брусника».
Организаторы представили школу как «экспериментальную площадку для формирования межотраслевого сотрудничества студентов и выпускников вузов различных направлений на основе решения архитектурно-градостроительных, дизайнерских и управленческих задач».
В этом году школа проводилась во второй раз. Первое аналогичное архитектурное событие проводилось в 2024 году в поселке Колтуши.
Место проведения в этом году: деревня Низино Ломоносовского района Ленинградской области. Выбор и смена локаций связаны с решением одной из важных для Ленинградской области практических задач: ежегодно в рамках конкурсного проектирования силами межвузовских студенческих команд прорабатывается архитектурно-градостроительный потенциал той или иной территории, находящейся в зоне нового туристического пояса области. Каждая такая локация интересна своим историко-культурным наследием, рельефом, панорамными видами и природными достопримечательностями.
В этом году большинство студентов прошли предварительный отбор по анкетированию, учитывающему навыки участия в конкурсах, успехи и награды за учебные проекты. Участники представляли все вузы Санкт-Петербурга, где готовят будущих бакалавров, магистров и специалистов в области архитектуры и градостроительства. Студентов распределили так, чтобы в каждую команду входили студенты младших и старших курсов из разных вузов Санкт-Петербурга, занимающихся подготовкой архитекторов, градостроителей, дизайнеров.
Основные темы для проектирования были связаны с концепцией застройки территории деревни Низино, концепцией территориального развития поселка Троицкая гора и проектом благоустройства территории школы-интерната «Красные Зори».
Показываем проекты победителей. Дипломы 1 степениКонцепция территориального развития поселка Троицкая гора Команда под руководством Юсупова И.А.
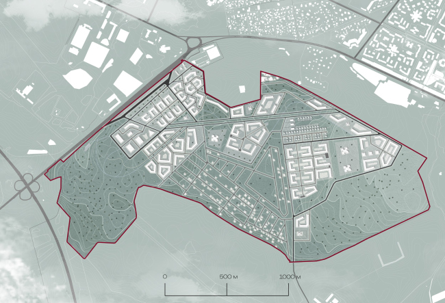
Концепция застройки территории деревни Низино Команда под руководством Манова О.В.
 Команда под руководством Гречухиной Е.В.
 Проект благоустройства территории рекреационной зоны вдоль Старопетергофского канала. Разработка дизайн-кода территории Команда под руководством Манова О.В.
 Проект благоустройства территории школы-интерната «Красные зори»Команда под руководством Едемского И.В. и Маковой И.В.
 Команда под руководством Лушниковой М.В. и Мухлисовой Р.Р.
 Дипломы 2 степениКонцепция территориального развития поселка Троицкая гора Команда под руководством Гречухиной Е.В.
 Концепция застройки территории деревни Низино Команда под руководством Кораблева А.Е.
 Проект благоустройства территории рекреационной зоны вдоль Старопетергофского канала. Разработка дизайн-кода территории Команда под руководством Гречухиной Е.В.
 Проект благоустройства территории школы-интерната «Красные зори»Команда под руководством Атаянца Б.М. и Маковой И.В.
 Команда под руководством Юсупова И.А. и Мухлисовой Р.Р.
 Дипломы 3 степениКонцепция территориального развития поселка Троицкая гора Команда под руководством Настаса Д.А.
 Концепция застройки территории деревни Низино Команда под руководством Бродача М.А.
 Проект благоустройства территории рекреационной зоны вдоль Старопетергофского канала. Разработка дизайн-кода территории Команда под руководством Настаса Д.А.
 Концепция территориального развития поселка Троицкая гора Диплом 1 степени.© Команда под руководством Юсупова И.А.
Концепция застройки территории деревни Низино. Диплом 1 степени© Команда под руководством Манова О.В.Концепция застройки территории деревни Низино. Диплом 1 степени© Команда под руководством Манова О.В.Концепция застройки территории деревни Низино. Диплом 1 степени© Команда под руководством Манова О.В.Концепция застройки территории деревни Низино. Диплом 1 степени© Команда под руководством Манова О.В.Концепция застройки территории деревни Низино. Диплом 1 степени© Команда под руководством Манова О.В.Концепция застройки территории деревни Низино. Диплом 1 степени© Команда под руководством Манова О.В.Концепция застройки территории деревни Низино. Диплом 1 степени© Команда под руководством Манова О.В.Концепция застройки территории деревни Низино. Диплом 1 степени© Команда под руководством Гречухиной Е.В.Концепция застройки территории деревни Низино. Диплом 1 степени© Команда под руководством Гречухиной Е.В.Концепция застройки территории деревни Низино. Диплом 1 степени© Команда под руководством Гречухиной Е.В.Концепция застройки территории деревни Низино. Диплом 1 степени© Команда под руководством Гречухиной Е.В.Концепция застройки территории деревни Низино. Диплом 1 степени© Команда под руководством Гречухиной Е.В.Концепция застройки территории деревни Низино. Диплом 1 степени© Команда под руководством Гречухиной Е.В.Концепция застройки территории деревни Низино. Диплом 1 степени© Команда под руководством Гречухиной Е.В.Проект благоустройства территории рекреационной зоны вдоль Старопетергофского канала. Разработка дизайн-кода территории. Диплом 1 степени© Команда под руководством Манова О.В.Проект благоустройства территории рекреационной зоны вдоль Старопетергофского канала. Разработка дизайн-кода территории. Диплом 1 степени© Команда под руководством Манова О.В.Проект благоустройства территории рекреационной зоны вдоль Старопетергофского канала. Разработка дизайн-кода территории. Диплом 1 степени© Команда под руководством Манова О.В.Проект благоустройства территории рекреационной зоны вдоль Старопетергофского канала. Разработка дизайн-кода территории. Диплом 1 степени© Команда под руководством Манова О.В.Проект благоустройства территории рекреационной зоны вдоль Старопетергофского канала. Разработка дизайн-кода территории. Диплом 1 степени© Команда под руководством Манова О.В.Проект благоустройства территории школы-интерната «Красные зори». Диплом 1 степени© Команда под руководством Едемского И.В. и Маковой И.В.Проект благоустройства территории школы-интерната «Красные зори». Диплом 1 степени© Команда под руководством Едемского И.В. и Маковой И.В.Проект благоустройства территории школы-интерната «Красные зори». Диплом 1 степени© Команда под руководством Лушниковой М.В. и Мухлисовой Р.Р.Проект благоустройства территории школы-интерната «Красные зори». Диплом 1 степени© Команда под руководством Лушниковой М.В. и Мухлисовой Р.Р.Концепция территориального развития поселка Троицкая гора. Диплом 2 степени© Команда под руководством Гречухиной Е.В.
Концепция застройки территории деревни Низино. Диплом 2 степени© Команда под руководством Кораблева А.Е.Концепция застройки территории деревни Низино. Диплом 2 степени© Команда под руководством Кораблева А.Е.Концепция застройки территории деревни Низино. Диплом 2 степени© Команда под руководством Кораблева А.Е.Концепция застройки территории деревни Низино. Диплом 2 степени© Команда под руководством Кораблева А.Е.Концепция застройки территории деревни Низино. Диплом 2 степени© Команда под руководством Кораблева А.Е.Проект благоустройства территории рекреационной зоны вдоль Старопетергофского канала.
Разработка дизайн-кода территории. Диплом 2 степени© Команда под руководством Гречухиной Е.В.Проект благоустройства территории рекреационной зоны вдоль Старопетергофского канала.
Разработка дизайн-кода территории. Диплом 2 степени© Команда под руководством Гречухиной Е.В.Проект благоустройства территории рекреационной зоны вдоль Старопетергофского канала.
Разработка дизайн-кода территории. Диплом 2 степени© Команда под руководством Гречухиной Е.В.Проект благоустройства территории рекреационной зоны вдоль Старопетергофского канала.
Разработка дизайн-кода территории. Диплом 2 степени© Команда под руководством Гречухиной Е.В.Проект благоустройства территории школы-интерната «Красные зори». Диплом 2 степени© Команда под руководством Атаянца Б.М. и Маковой И.В.Проект благоустройства территории школы-интерната «Красные зори». Диплом 2 степени© Команда под руководством Атаянца Б.М. и Маковой И.В.Проект благоустройства территории школы-интерната «Красные зори». Диплом 2 степени© Команда под руководством Атаянца Б.М. и Маковой И.В.Проект благоустройства территории школы-интерната «Красные зори». Диплом 2 степени© Команда под руководством Атаянца Б.М. и Маковой И.В.Проект благоустройства территории школы-интерната «Красные зори». Диплом 2 степени © Команда под руководством Юсупова И.А. и Мухлисовой Р.Р.
Концепция территориального развития поселка Троицкая гора. Диплом 3 степени© Команда под руководством Настаса Д.А.
Концепция застройки территории деревни Низино. Диплом 3 степени© Команда под руководством Бродача М.А.Концепция застройки территории деревни Низино. Диплом 3 степени© Команда под руководством Бродача М.А.Концепция застройки территории деревни Низино. Диплом 3 степени© Команда под руководством Бродача М.А.Концепция застройки территории деревни Низино. Диплом 3 степени© Команда под руководством Бродача М.А.Концепция застройки территории деревни Низино. Диплом 3 степени© Команда под руководством Бродача М.А.Проект благоустройства территории рекреационной зоны вдоль Старопетергофского канала. Разработка дизайн-кода территории. Диплом 3 степени© Команда под руководством Настаса Д.А.
|