Описание предоставлено архитекорами
Школы, в особенности на вновь осваиваемых девелоперами территориях, становятся главными социально-культурными центрами застройки. Общественная доминанта района больше не может быть тиражированным объектом, это должно быть актуальное здание, готовое к будущим внутренним изменениям.
Общеобразовательная школа на 1050 учеников с центром прикладных искусств. Ситуационная схема. Расположение участка в г.п. Новоселье
© Архитектурная мастерская Юсупова
Общеобразовательная школа на 1050 учеников с центром прикладных искусств
© Архитектурная мастерская Юсупова
Общеобразовательная школа на 1050 учеников с центром прикладных искусств. Входная группа
© Архитектурная мастерская Юсупова
Что можно предусмотреть в проекте для его актуальности и будущих трансформаций? Какие есть возможности и инструменты? Решение этих задач сопряжено с массой ограничений: стандартный бюджет, фиксированная общая площадь и работа в рамках норм (проект выполнен без отступлений и СТУ). Несмотря на все «но» мастерской Юсупова удалось реализовать ряд ключевых тенденций в проектировании школ: заложить в планировки возможности для трансформации и уплотнения, дополнительно предусмотреть пространства для всестороннего развития, создать возможности для инфраструктурной связи школы и жилого района.
Общеобразовательная школа на 1050 учеников с центром прикладных искусств. Схема доступности территории
© Архитектурная мастерская Юсупова
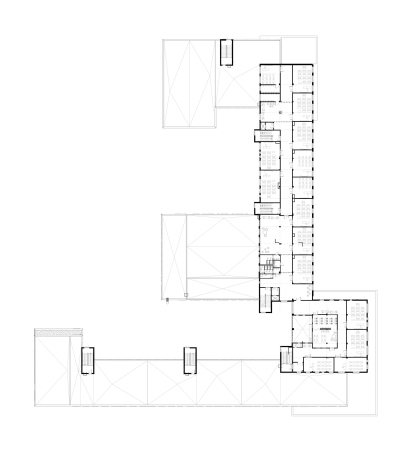
Общеобразовательная школа на 1050 учеников с центром прикладных искусств. Схема генерального плана
© Архитектурная мастерская Юсупова
При формировании облика здания целью было создать живую объемно-пространственную композицию с логичными акцентами, вписанными как в структуру здания, так и в образуемую среду квартала. Форма здания является рациональным продолжением его функции. Вместо однородного объема школа визуально разделяется на корпуса, отличающиеся по функции, ритмике фасадов и цветовой палитре. Блок с главным входом выполняет роль объемной доминанты, ориентированной на градостроительную ось улицы нового квартала.
Общеобразовательная школа на 1050 учеников с центром прикладных искусств
© Архитектурная мастерская Юсупова
Общеобразовательная школа на 1050 учеников с центром прикладных искусств
© Архитектурная мастерская Юсупова
Общеобразовательная школа на 1050 учеников с центром прикладных искусств. Вид со стороны бульвара
© Архитектурная мастерская Юсупова
Входы выделены длинными консольными навесами – ключевыми акцентами здания. Колористическое решение школы лаконичное, выдержано в общей цветовой гамме квартала, однако усложнено текстурами и фактурами используемых отделочных материалов. Облицовка кирпичом составляет 25% от общей площади фасадов, остальное – штукатурка, детализированная фасадными профилями.
Общеобразовательная школа на 1050 учеников с центром прикладных искусств
© Архитектурная мастерская Юсупова
Общеобразовательная школа на 1050 учеников с центром прикладных искусств
© Архитектурная мастерская Юсупова
Общеобразовательная школа на 1050 учеников с центром прикладных искусств
© Архитектурная мастерская Юсупова
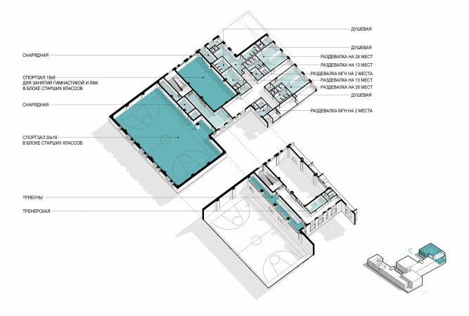
В школе предусмотрен автономный Центр прикладных искусств. На его базе проходят занятия по керамике, обработке металла и дерева, работа с тканями и кожей в швейной мастерской, мастер-классы по кулинарии, уроки по основам конструирования и робототехнике, а также занятия в художественных студиях живописи, рисунка и скульптурной лепки. Внутри выделено выставочное пространство для демонстрации работ и проведения мероприятий.
Общеобразовательная школа на 1050 учеников с центром прикладных искусств. Вход в Центр прикладных искусств
© Архитектурная мастерская Юсупова
Общеобразовательная школа на 1050 учеников с центром прикладных искусств. Центр прикладных искусств
© Архитектурная мастерская Юсупова
