Общеобразовательная школа на 1050 учеников с центром прикладных искусств
© Архитектурная мастерская Юсупова
Общеобразовательная школа на 1050 учеников с центром прикладных искусств
информация:
-
статус
проект -
даты
04.2024 -
место
Новоселье Ленинградская область квартал 3 -
координаты
59.809808, 30.036788 -
функция
Образование и наука / Школа -
теги
send.project -
площадь участка
2,5 га -
площадь застройки
6 400 м2 -
общая площадь
20 630 м2 -
высота
21 -
этажность
4 - Вместимость – 1 050 учебных мест

Илья Юсупов
Россия
Дарья Кирса
РоссияАрхитектурная мастерская Юсупова
Yusupov architects / Россияавторский коллектив
Руководитель архитектурной мастерской: Илья Юсупов
ГАП: Дарья Кирса
Ведущий архитектор: Евгения Ширяева-Ожинская
Архитектор: Алина Сокур
Ведущий специалист генплана: Светлана Комиссарова
Гл. конструктор: Ирина Каява
ГИП: Маргарита Вдовиченко
ГАП: Дарья Кирса
Ведущий архитектор: Евгения Ширяева-Ожинская
Архитектор: Алина Сокур
Ведущий специалист генплана: Светлана Комиссарова
Гл. конструктор: Ирина Каява
ГИП: Маргарита Вдовиченко
партнеры, заказчики, смежники
Заказчик: Специализированный застройщик «Новоселье-2»
Общеобразовательная школа на 1050 учеников с центром прикладных искусств. Входная группа
© Архитектурная мастерская Юсупова
Архи.ру об этом объекте:
29.04.2025
Все в школу
Проектируя школу на 1500 учеников в районе Новоселье, архитектурная мастерская Юсупова подошла к зданию как к общественной и пространственной доминанте. Ее объемы отражают функцию и реагируют на градостроительные оси, а центр прикладных искусств и спорткомплекс доступны не только детям, но и взрослым жителям квартала.
Описание предоставлено архитекорами Школы, в особенности на вновь осваиваемых девелоперами территориях, становятся главными социально-культурными центрами застройки. Общественная доминанта района больше не может быть тиражированным объектом, это дол... читать дальшеОбщеобразовательная школа на 1050 учеников с центром прикладных искусств
© Архитектурная мастерская Юсупова
описание:
Какой может быть обыкновенная новая школа в регионе?
Школы, в особенности на вновь осваиваемых девелоперами территориях, становятся главными социально-культурными центрами застройки. Общественная доминанта района больше не может быть тиражированным объектом повторного применения, это должно быть актуальное здание, при этом приспособленное к будущим внутренним изменениям.
Что мы можем предусмотреть в проекте для его актуальности и будущих трансформаций? Какие у нас есть возможности и инструменты? Решение этих задач сопряжено с массой ограничений: стандартный бюджет, фиксированная общая площадь и работа в рамках норм (проект выполнен без отступлений и СТУ). Несмотря на все «но» удалось реализовать ряд ключевых тенденций в проектировании школ: заложить в планировки возможности для трансформации и уплотнения, дополнительно предусмотреть пространства для всестороннего развития, создать возможности для инфраструктурной связи школы и жилого района.
При формировании облика здания целью было создать живую объемно-пространственную композицию с логичными акцентами, вписанными как в структуру здания, так и в образуемую среду квартала. Форма здания является рациональным продолжением её функции. Вместо однородного объема школа визуально разделяется на корпуса, отличающиеся по функции, ритмике фасадов и цветовой палитре. Блок с главным входом выполняет роль объемной доминанты, ориентированной на градостроительную ось улицы нового квартала. Входы выделены длинными консольными навесами – ключевыми акцентами здания. Колористическое решение школы лаконичное, выдержано в общей цветовой гамме квартала, однако усложнено текстурами и фактурами используемых отделочных материалов. Облицовка кирпичом составляет всего 25% от общей площади фасадов, остальное – штукатурка, детализированная фасадными профилями.
В школе предусмотрен отдельный Центр прикладных искусств. На базе центра проходят занятия по керамике, обработке металла и дерева, работа с тканями и кожей в швейной мастерской, мастер-классы по кулинарии, уроки по основам конструирования и робототехнике, а также занятия в художественных студиях живописи, рисунка и скульптурной лепки. Внутри выделено выставочное пространство для демонстрации работ и проведения мероприятий.
Школы, в особенности на вновь осваиваемых девелоперами территориях, становятся главными социально-культурными центрами застройки. Общественная доминанта района больше не может быть тиражированным объектом повторного применения, это должно быть актуальное здание, при этом приспособленное к будущим внутренним изменениям.
Что мы можем предусмотреть в проекте для его актуальности и будущих трансформаций? Какие у нас есть возможности и инструменты? Решение этих задач сопряжено с массой ограничений: стандартный бюджет, фиксированная общая площадь и работа в рамках норм (проект выполнен без отступлений и СТУ). Несмотря на все «но» удалось реализовать ряд ключевых тенденций в проектировании школ: заложить в планировки возможности для трансформации и уплотнения, дополнительно предусмотреть пространства для всестороннего развития, создать возможности для инфраструктурной связи школы и жилого района.
При формировании облика здания целью было создать живую объемно-пространственную композицию с логичными акцентами, вписанными как в структуру здания, так и в образуемую среду квартала. Форма здания является рациональным продолжением её функции. Вместо однородного объема школа визуально разделяется на корпуса, отличающиеся по функции, ритмике фасадов и цветовой палитре. Блок с главным входом выполняет роль объемной доминанты, ориентированной на градостроительную ось улицы нового квартала. Входы выделены длинными консольными навесами – ключевыми акцентами здания. Колористическое решение школы лаконичное, выдержано в общей цветовой гамме квартала, однако усложнено текстурами и фактурами используемых отделочных материалов. Облицовка кирпичом составляет всего 25% от общей площади фасадов, остальное – штукатурка, детализированная фасадными профилями.
В школе предусмотрен отдельный Центр прикладных искусств. На базе центра проходят занятия по керамике, обработке металла и дерева, работа с тканями и кожей в швейной мастерской, мастер-классы по кулинарии, уроки по основам конструирования и робототехнике, а также занятия в художественных студиях живописи, рисунка и скульптурной лепки. Внутри выделено выставочное пространство для демонстрации работ и проведения мероприятий.
Общеобразовательная школа на 1050 учеников с центром прикладных искусств
© Архитектурная мастерская Юсупова
Общеобразовательная школа на 1050 учеников с центром прикладных искусств. Вход в Центр прикладных искусств
© Архитектурная мастерская Юсупова
Общеобразовательная школа на 1050 учеников с центром прикладных искусств
© Архитектурная мастерская Юсупова
Общеобразовательная школа на 1050 учеников с центром прикладных искусств. Вид со стороны бульвара
© Архитектурная мастерская Юсупова
Общеобразовательная школа на 1050 учеников с центром прикладных искусств
© Архитектурная мастерская Юсупова
Общеобразовательная школа на 1050 учеников с центром прикладных искусств
© Архитектурная мастерская Юсупова
Общеобразовательная школа на 1050 учеников с центром прикладных искусств. Ситуационная схема. Расположение участка в г.п. Новоселье
© Архитектурная мастерская Юсупова
Общеобразовательная школа на 1050 учеников с центром прикладных искусств. Схема доступности территории
© Архитектурная мастерская Юсупова
Общеобразовательная школа на 1050 учеников с центром прикладных искусств. Схема генерального плана
© Архитектурная мастерская Юсупова
Общеобразовательная школа на 1050 учеников с центром прикладных искусств. Схема благоустройства территории
© Архитектурная мастерская Юсупова
Общеобразовательная школа на 1050 учеников с центром прикладных искусств. Схема озеленения территории
© Архитектурная мастерская Юсупова
Общеобразовательная школа на 1050 учеников с центром прикладных искусств. Аксонометрия 1 этаж
© Архитектурная мастерская Юсупова
Общеобразовательная школа на 1050 учеников с центром прикладных искусств. Аксонометрия 2 этаж
© Архитектурная мастерская Юсупова
Общеобразовательная школа на 1050 учеников с центром прикладных искусств. Аксонометрия 3 этаж
© Архитектурная мастерская Юсупова
Общеобразовательная школа на 1050 учеников с центром прикладных искусств. Аксонометрия 4 этаж
© Архитектурная мастерская Юсупова
Общеобразовательная школа на 1050 учеников с центром прикладных искусств. Основные функциональные блоки
© Архитектурная мастерская Юсупова
Общеобразовательная школа на 1050 учеников с центром прикладных искусств. Вестибюли
© Архитектурная мастерская Юсупова
Общеобразовательная школа на 1050 учеников с центром прикладных искусств. Центр прикладных искусств
© Архитектурная мастерская Юсупова
Общеобразовательная школа на 1050 учеников с центром прикладных искусств. Библиотека-Медиатека
© Архитектурная мастерская Юсупова
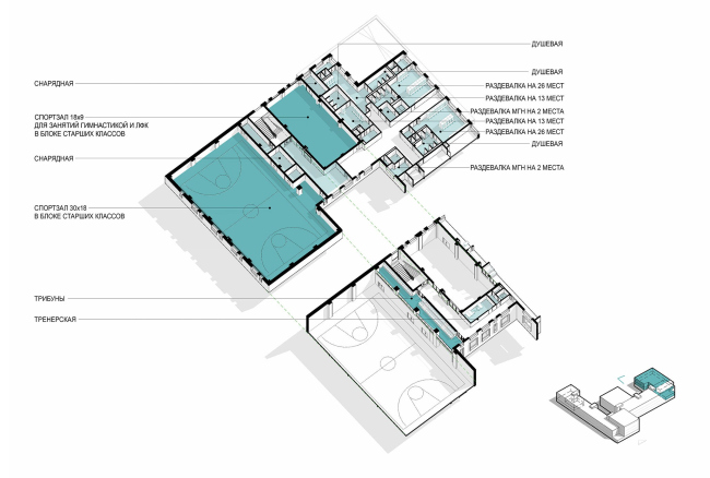
Общеобразовательная школа на 1050 учеников с центром прикладных искусств. Спортблок старшей школы
© Архитектурная мастерская Юсупова
Общеобразовательная школа на 1050 учеников с центром прикладных искусств. Спортблок младшей школы
© Архитектурная мастерская Юсупова
Общеобразовательная школа на 1050 учеников с центром прикладных искусств. Общешкольный форум
© Архитектурная мастерская Юсупова
Общеобразовательная школа на 1050 учеников с центром прикладных искусств. План 1 этажа
© Архитектурная мастерская Юсупова
Общеобразовательная школа на 1050 учеников с центром прикладных искусств. План 2 этажа
© Архитектурная мастерская Юсупова
Общеобразовательная школа на 1050 учеников с центром прикладных искусств. План 3 этажа
© Архитектурная мастерская Юсупова
Общеобразовательная школа на 1050 учеников с центром прикладных искусств. План 4 этажа
© Архитектурная мастерская Юсупова
Архитекторы – партнеры Архи.ру:
Проект из каталога (случайный выбор)
Постройки и проекты (новые записи):
Новости российской архитектуры:
21.10.2025
Кто в Сити, кто в горы?
Сергей Скуратов21.10.2025
На династической тропе
Сергей Никешкин20.10.2025
Крылья Маяковского
Алексей Гуров20.10.2025