Описание предоставлено архитекторами
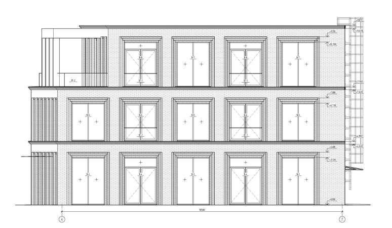
Проект строился вокруг идеи рационального использования участка, что определило лаконичную конфигурацию здания. Простота формы стала платформой для работы с деталями. Главный акцент фасада – сложная кирпичная кладка. Она добавляет ритмичность и объем, превращая здание в эстетически насыщенный объект. В качестве материала был выбран кирпич ручной формовки Engels насыщенного красного цвета, который отсылает к исторической архитектуре Краснодара.
Офисное здание в Краснодаре
Фотография © Влад Феоктистов / предоставлена Axis Project
Офисное здание в Краснодаре
Фотография © Влад Феоктистов / предоставлена Axis Project
На третьем этаже архитекторы предложили организовать террасу, которая не только расширила функционал, но и помогла визуально облегчить верхнюю часть здания, улучшив его пропорции. Объект органично сочетает функциональность, локальную идентичность и архитектурную выразительность.
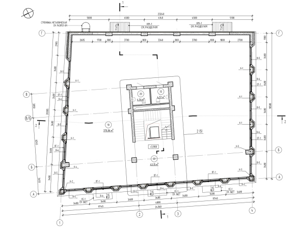
Офисное здание в Краснодаре. Генплан
© Axis Project
